Account: R3421386
April 5, 2026
| Account | Parcel | Account Type | Tax Year | Buildings | Actual Value | Local Govt Assessed Value | School Assessed Value |
|---|---|---|---|---|---|---|---|
| R3421386 | 096116207014 | Residential | 2026 | 1 | 305,265 | 19,080 | 21,530 |
| Legal |
|---|
| GR WE3-10 L10 BLK3 WEDGWOOD PUD |
| Subdivision | Block | Lot | Land Economic Area |
|---|---|---|---|
| WEDGWOOD PUD | 3 | 10 | WEDGEWOOD SUB |
| Property Address | Property City | Section | Township | Range |
|---|---|---|---|---|
| 2003 WEDGEWOOD DR | GREELEY | 16 | 05 | 65 |
| Account | Parcel | Account Type | Tax Year | Buildings | Actual Value | Local Govt Assessed Value | School Assessed Value |
|---|---|---|---|---|---|---|---|
| R3421386 | 096116207014 | Residential | 2026 | 1 | 305,265 | 19,080 | 21,530 |
| Account | Owner Name | Address |
|---|---|---|
| R3421386 | RHODES JOSEPH A | 2003 WEDGEWOOD DR GREELEY, CO 806316044 |
| Account | Parcel | Account Type | Tax Year | Buildings | Actual Value | Local Govt Assessed Value | School Assessed Value |
|---|---|---|---|---|---|---|---|
| R3421386 | 096116207014 | Residential | 2026 | 1 | 305,265 | 19,080 | 21,530 |
| Reception | Rec Date | Type | Grantor | Grantee | Doc Fee | Sale Date | Sale Price |
|---|---|---|---|---|---|---|---|
| 01952688 | 01-11-1984 | QCN | 0.00 | 01-01-1900 | 0 | ||
| 1720220 | NA | SUB | SUBDIVISION | WEDGWOOD PUD | 0.00 | NA | 0 |
| 3833634 | 03-22-2012 | SWDN | HAMMON LEE ANN | DOC2 LIVING TRUST DATED FEBRUARY 4 2012 | 0.00 | 03-16-2012 | 0 |
| 4562856 | 01-31-2020 | WD | DOC2 LIVING TRUST | RIGLI KYLE JOSEPH | 22.00 | 01-29-2020 | 220,000 |
| 4850695 | 08-24-2022 | PTD | RIGLI KYLE JOSEPH | COLORADO HOUSING AND FINANCE AUTHORITY | 0.00 | 08-23-2022 | 0 |
| 4873126 | 12-20-2022 | SWDN | COLORADO HOUSING AND FINANCE AUTHORITY | SECRETARY OF HOUSING AND URBAN DEVELOPMENT | 0.00 | 08-30-2022 | 0 |
| 4899327 | 05-19-2023 | SWD | SECRETARY OF HOUSING AND URBAN DEVELOPMENT | RHODES JOSEPH A | 26.64 | 05-16-2023 | 266,400 |
| X0008911 | 01-11-1984 | CON | HAMMOND LEE ANN | 3.35 | 01-11-1984 | 33,500 |
*If the hyperlink for the reception number does not work, try a manual search in the Clerk and Recorder records. Use the Grantor or Grantee in your search.
| Account | Parcel | Account Type | Tax Year | Buildings | Actual Value | Local Govt Assessed Value | School Assessed Value |
|---|---|---|---|---|---|---|---|
| R3421386 | 096116207014 | Residential | 2026 | 1 | 305,265 | 19,080 | 21,530 |
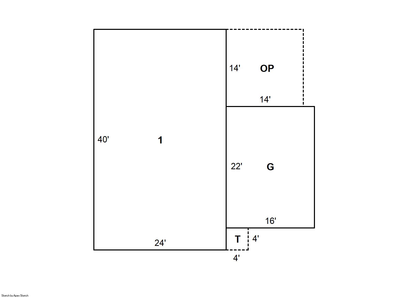
Building 1
| AccountNo | Building ID | Occupancy |
|---|---|---|
| R3421386 | 1 | Single Family Residential |
| ID | Type | NBHD | Occupancy | % Complete | Bedrooms | Baths |
|---|---|---|---|---|---|---|
| 1 | Residential | 6G0035 | Single Family Residential | 100 | 2 | 1.00 |
| ID | Exterior | Roof Cover | Interior | HVAC | Perimeter | Units | Unit Type | Make |
|---|---|---|---|---|---|---|---|---|
| 1 | Frame Hardboard | Composition Shingle | Drywall | Central Air to Air | 128 | 0 | NA | NA |
| ID | Square Ft | Condo SF | Total Basement SF | Finished Basement SF | Garage SF | Carport SF | Balcony SF | Porch SF |
|---|---|---|---|---|---|---|---|---|
| 1 | 960 | 0 | 0 | 0 | 352 | 0 | 0 | 16 |
| ID | Built As | Square Ft | Year Built | Stories | Length | Width |
|---|---|---|---|---|---|---|
| 1.00 | Ranch 1 Story | 960 | 1978 | 1 | 0 | 0 |
| ID | Detail Type | Description | Units |
|---|---|---|---|
| 1 | Fixture | Full Bath | 1.00 |
| 1 | Garage | Attached | 352.00 |
| 1 | Porch | Open Slab | 16.00 |
| 1 | Porch | Slab Roof Ceil | 196.00 |
| Account | Parcel | Account Type | Tax Year | Buildings | Actual Value | Local Govt Assessed Value | School Assessed Value |
|---|---|---|---|---|---|---|---|
| R3421386 | 096116207014 | Residential | 2026 | 1 | 305,265 | 19,080 | 21,530 |
| Type | Code | Description | Actual Value | Local Govt Assessed Value | School Assessed Value | Acres | Land SqFt |
|---|---|---|---|---|---|---|---|
| Improvement | 1212 | SINGLE FAMILY RESIDENTIAL IMPROVEMENTS | 255,265 | 15,950 | 18,000 | 0.000 | 0 |
| Land | 1112 | SINGLE FAMILY RESIDENTIAL-LAND | 50,000 | 3,130 | 3,530 | 0.105 | 4,576 |
| Totals | - | - | 305,265 | 19,080 | 21,530 | 0.105 | 4,576 |
Comparable sales for your Residential or Commercial property may be found using our SALES SEARCH TOOL
Values are updated annually on May 1st for Real Property and June 15th for Personal Property and Oil and Gas.
| Account | Parcel | Account Type | Tax Year | Buildings | Actual Value | Local Govt Assessed Value | School Assessed Value |
|---|---|---|---|---|---|---|---|
| R3421386 | 096116207014 | Residential | 2026 | 1 | 305,265 | 19,080 | 21,530 |
| Tax Area | District ID | District Name | Local Govt Mill Levy |
School Mill Levy |
Estimated Taxes |
|---|---|---|---|---|---|
| 0600 | 0700 | AIMS JUNIOR COLLEGE | 6.313 | 0.000 | $120.45 |
| 0600 | 0411 | GREELEY CITY | 11.274 | 0.000 | $215.11 |
| 0600 | 1050 | HIGH PLAINS LIBRARY | 3.044 | 0.000 | $58.08 |
| 0600 | 0301 | NORTHERN COLORADO WATER (NCW) | 1.000 | 0.000 | $19.08 |
| 0600 | 0206 | SCHOOL DIST 6-GREELEY | 0.000 | 47.615 | $1,025.15 |
| 0600 | 0100 | WELD COUNTY | 15.956 | 0.000 | $304.44 |
| Total | - | - | 37.587 | 47.615 | $1,742.31 |
The estimate of tax is based on the prior year mill levy and the 2025 projected assessment rates. Mill levies and tax estimates will be updated yearly on December 22nd for the current year. Additional information can be found at https://assessor.weld.gov


