Account: R3467305
April 1, 2026
| Account | Parcel | Account Type | Tax Year | Buildings | Actual Value | Local Govt Assessed Value | School Assessed Value |
|---|---|---|---|---|---|---|---|
| R3467305 | 131316101019 | Residential | 2026 | 1 | 2,250,000 | 140,630 | 158,630 |
| Legal |
|---|
| LC L6 LIGHTHOUSE COVE RPLT L6 & 7 |
| Subdivision | Block | Lot | Land Economic Area |
|---|---|---|---|
| LIGHTHOUSE COVE RPLT | 6 | LIGHTHOUSE COVE |
| Property Address | Property City | Section | Township | Range |
|---|---|---|---|---|
| 9895 HARBOR DR | WELD | 16 | 02 | 68 |
| Account | Parcel | Account Type | Tax Year | Buildings | Actual Value | Local Govt Assessed Value | School Assessed Value |
|---|---|---|---|---|---|---|---|
| R3467305 | 131316101019 | Residential | 2026 | 1 | 2,250,000 | 140,630 | 158,630 |
| Account | Owner Name | Address |
|---|---|---|
| R3467305 | ZUCCARO BRUCE | 9895 HARBOR DR LONGMONT, CO 805045531 |
| R3467305 | ZUCCARO FRANCESCA M |
| Account | Parcel | Account Type | Tax Year | Buildings | Actual Value | Local Govt Assessed Value | School Assessed Value |
|---|---|---|---|---|---|---|---|
| R3467305 | 131316101019 | Residential | 2026 | 1 | 2,250,000 | 140,630 | 158,630 |
| Reception | Rec Date | Type | Grantor | Grantee | Doc Fee | Sale Date | Sale Price |
|---|---|---|---|---|---|---|---|
| 2747731 | 02-03-2000 | COZ | WELD COUNTY ZONING | CASE: Z-522 ZONING R-1, PUD | 0.00 | NA | 0 |
| 3254273 | NA | SUB | SUBDIVISION | LIGHTHOUSE COVE REPLAT | 0.00 | NA | 0 |
| 3533638 | 02-06-2008 | PTD | VANLERBERGHE KENNETH | STATE BANK DOWNS | 0.00 | 02-06-2008 | 0 |
| 3688389 | 04-22-2010 | WD | STATE BANK DOWNS | ZUCCARO BRUCE | 94.80 | 04-16-2010 | 948,000 |
| 4751012 | 08-30-2021 | BN | ZUCCARO BRUCE; ZUCCARO FRANCESCA M | ZUCCARO BRUCE; ZUCCARO FRANCESCA M | 0.00 | 08-13-2021 | 0 |
*If the hyperlink for the reception number does not work, try a manual search in the Clerk and Recorder records. Use the Grantor or Grantee in your search.
| Account | Parcel | Account Type | Tax Year | Buildings | Actual Value | Local Govt Assessed Value | School Assessed Value |
|---|---|---|---|---|---|---|---|
| R3467305 | 131316101019 | Residential | 2026 | 1 | 2,250,000 | 140,630 | 158,630 |
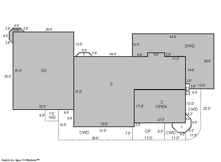
Building 1
| AccountNo | Building ID | Occupancy |
|---|---|---|
| R3467305 | 1 | Single Family Residential |
| ID | Type | NBHD | Occupancy | % Complete | Bedrooms | Baths |
|---|---|---|---|---|---|---|
| 1 | Residential | 3R1023 | Single Family Residential | 100 | 4 | 4.00 |
| ID | Exterior | Roof Cover | Interior | HVAC | Perimeter | Units | Unit Type | Make |
|---|---|---|---|---|---|---|---|---|
| 1 | Frame Stucco | Composition Shingle | Drywall | Central Air to Air | 0 | 0 | NA | NA |
| ID | Square Ft | Condo SF | Total Basement SF | Finished Basement SF | Garage SF | Carport SF | Balcony SF | Porch SF |
|---|---|---|---|---|---|---|---|---|
| 1 | 5,966 | 0 | 0 | 0 | 1,312 | 0 | 0 | 785 |
| ID | Built As | Square Ft | Year Built | Stories | Length | Width |
|---|---|---|---|---|---|---|
| 1.00 | 2 Story | 5,966 | 2001 | 2 | 0 | 0 |
| ID | Detail Type | Description | Units |
|---|---|---|---|
| 1 | Add On | Fireplace Gas | 3.00 |
| 1 | Fixture | Full Bath | 4.00 |
| 1 | Fixture | Wet Bar | 1.00 |
| 1 | Garage | Built In | 1312.00 |
| 1 | Porch | Cvrd Wood Deck | 590.00 |
| 1 | Porch | Slab Roof Ceil | 151.00 |
| 1 | Porch | Wood Deck | 785.00 |
| 1 | Rough In | Laundry Facility | 1.00 |
| Account | Parcel | Account Type | Tax Year | Buildings | Actual Value | Local Govt Assessed Value | School Assessed Value |
|---|---|---|---|---|---|---|---|
| R3467305 | 131316101019 | Residential | 2026 | 1 | 2,250,000 | 140,630 | 158,630 |
| Type | Code | Description | Actual Value | Local Govt Assessed Value | School Assessed Value | Acres | Land SqFt |
|---|---|---|---|---|---|---|---|
| Improvement | 1212 | SINGLE FAMILY RESIDENTIAL IMPROVEMENTS | 1,800,000 | 112,500 | 126,900 | 0.000 | 0 |
| Land | 1112 | SINGLE FAMILY RESIDENTIAL-LAND | 450,000 | 28,130 | 31,730 | 0.838 | 36,511 |
| Totals | - | - | 2,250,000 | 140,630 | 158,630 | 0.838 | 36,511 |
Comparable sales for your Residential or Commercial property may be found using our SALES SEARCH TOOL
Values are updated annually on May 1st for Real Property and June 15th for Personal Property and Oil and Gas.
| Account | Parcel | Account Type | Tax Year | Buildings | Actual Value | Local Govt Assessed Value | School Assessed Value |
|---|---|---|---|---|---|---|---|
| R3467305 | 131316101019 | Residential | 2026 | 1 | 2,250,000 | 140,630 | 158,630 |
| Tax Area | District ID | District Name | Local Govt Mill Levy |
School Mill Levy |
Estimated Taxes |
|---|---|---|---|---|---|
| 2341 | 1050 | HIGH PLAINS LIBRARY | 3.044 | 0.000 | $428.08 |
| 2341 | 0311 | LEFT HAND WATER | 0.000 | 0.000 | $0.00 |
| 2341 | 1202 | LONGMONT CONSERVATION | 0.000 | 0.000 | $0.00 |
| 2341 | 0512 | MOUNTAIN VIEW FIRE PROTECTION DISTRICT | 16.342 | 0.000 | $2,298.18 |
| 2341 | 0301 | NORTHERN COLORADO WATER (NCW) | 1.000 | 0.000 | $140.63 |
| 2341 | 0213 | SCHOOL DIST RE1J-LONGMONT | 0.000 | 57.717 | $9,155.65 |
| 2341 | 0620 | ST VRAIN SANITATION | 0.316 | 0.000 | $44.44 |
| 2341 | 0100 | WELD COUNTY | 15.956 | 0.000 | $2,243.89 |
| Total | - | - | 36.658 | 57.717 | $14,310.86 |
The estimate of tax is based on the prior year mill levy and the 2025 projected assessment rates. Mill levies and tax estimates will be updated yearly on December 22nd for the current year. Additional information can be found at https://assessor.weld.gov



