Account: R3542386

April 1, 2026

Account Parcel Account Type Tax Year Buildings Actual Value Local Govt Assessed Value School Assessed Value
R3542386 096117309006 Residential 2026 1 322,092 20,130 22,710

Legal
GR 1579 L26 WHEELER ADD AKA L26 BLK12 WHEELER ADD

Subdivision Block Lot Land Economic Area
WHEELERS ADD 26 ARLINGTON

Property Address Property City Section Township Range
2526 10TH AVE GREELEY 17 05 65




Account Parcel Account Type Tax Year Buildings Actual Value Local Govt Assessed Value School Assessed Value
R3542386 096117309006 Residential 2026 1 322,092 20,130 22,710

Account Owner Name Address
R3542386 KING LAURA KATHLEEN 555 MEADOWLAKE DR BLACK HAWK, CO 804224207


Account Parcel Account Type Tax Year Buildings Actual Value Local Govt Assessed Value School Assessed Value
R3542386 096117309006 Residential 2026 1 322,092 20,130 22,710

Reception Rec Date Type Grantor Grantee Doc Fee Sale Date Sale Price
01844926 12-22-1980 WDN 0.00 01-01-1900 0
02381294 03-31-1994 QCN 0.00 03-31-1994 0
2552393 06-10-1997 QCN SNYDER SHIRLEY M & SNYDER SHIRLEY MAE & 0.00 05-30-1997 0
3012005 12-05-2002 WD SNYDER SHIRLEY MAE & SNYDER LOREN ELTON HOUSER KEVIN C 12.60 11-26-2002 126,000
3041067 03-11-2003 QCN HOUSER KEVIN C HOUSER KEVIN C & LAUREL 0.00 02-21-2003 0
3444449 01-02-2007 QCN HOUSER KEVIN C & NORLARCO CREDIT UNION 0.00 12-12-2006 0
3444450 01-02-2007 WD NORLARCO CREDIT UNION LOPEZ LILIAN GALDAMEZ 11.10 12-22-2006 111,000
3715359 08-31-2010 PTD LOPEZ LILIAN GALDAMEZ SECRETARY OF HOUSING AND URBAN DEVELOPMENT 0.00 08-30-2010 0
3754828 03-09-2011 SWD USA HUD KING LAURA KATHLEEN 0.00 03-08-2011 52,000
985642 NA SUB SUBDIVISION WHEELER ADD 0.00 NA 0
985642 08-02-1946 PLT WHEELER ADDITION WHEELER ADDITION 0.00 07-22-1946 0



Account Parcel Account Type Tax Year Buildings Actual Value Local Govt Assessed Value School Assessed Value
R3542386 096117309006 Residential 2026 1 322,092 20,130 22,710

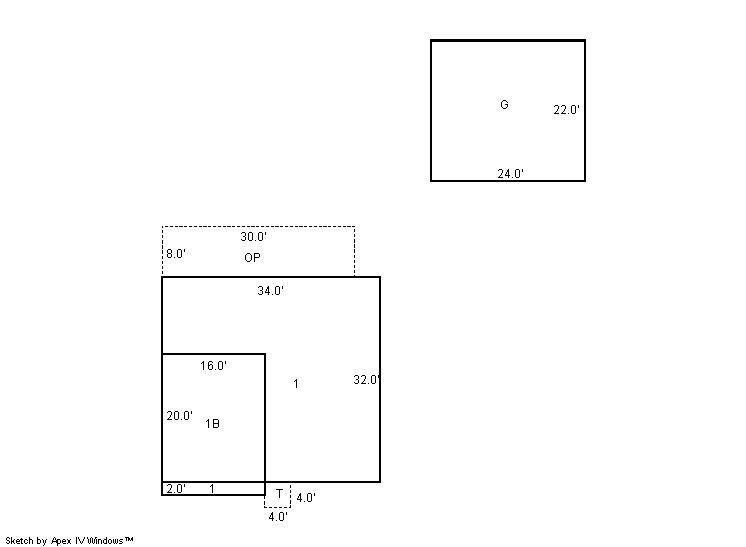
Building 1

AccountNo Building ID Occupancy
R3542386 1 Single Family Residential


ID Type NBHD Occupancy % Complete Bedrooms Baths
1 Residential 6G4045 Single Family Residential 100 3 2.00


ID Exterior Roof Cover Interior HVAC Perimeter Units Unit Type Make
1 Frame Hardboard Composition Shingle Drywall Forced Air 0 0 NA NA


ID Square Ft Condo SF Total Basement SF Finished Basement SF Garage SF Carport SF Balcony SF Porch SF
1 1,120 0 320 320 528 0 0 16


Built As Details for Building 1
ID Built As Square Ft Year Built Stories Length Width
1.00 Ranch 1 Story 1,120 1947 1 0 0


Additional Details for Building 1
ID Detail Type Description Units
1 Basement Fair Finish 320.00
1 Basement Total Basement SF 320.00
1 Fixture Full Bath 1.00
1 Fixture Half Bath 1.00
1 Garage Detached 528.00
1 Porch Open Slab 16.00
1 Porch Slab Roof Ceil 240.00





Account Parcel Account Type Tax Year Buildings Actual Value Local Govt Assessed Value School Assessed Value
R3542386 096117309006 Residential 2026 1 322,092 20,130 22,710

Type Code Description Actual Value Local Govt Assessed Value School Assessed Value Acres Land SqFt
Improvement 1212 SINGLE FAMILY RESIDENTIAL IMPROVEMENTS 278,892 17,430 19,660 0.000 0
Land 1112 SINGLE FAMILY RESIDENTIAL-LAND 43,200 2,700 3,050 0.165 7,200
Totals - - 322,092 20,130 22,710 0.165 7,200


Account Parcel Account Type Tax Year Buildings Actual Value Local Govt Assessed Value School Assessed Value
R3542386 096117309006 Residential 2026 1 322,092 20,130 22,710

Tax Area District ID District Name Local Govt
Mill Levy
School
Mill Levy
Estimated
Taxes
0600 0700 AIMS JUNIOR COLLEGE 6.313 0.000 $127.08
0600 0411 GREELEY CITY 11.274 0.000 $226.95
0600 1050 HIGH PLAINS LIBRARY 3.044 0.000 $61.28
0600 0301 NORTHERN COLORADO WATER (NCW) 1.000 0.000 $20.13
0600 0206 SCHOOL DIST 6-GREELEY 0.000 47.615 $1,081.34
0600 0100 WELD COUNTY 15.956 0.000 $321.19
Total - - 37.587 47.615 $1,837.96


The estimate of tax is based on the prior year mill levy and the 2025 projected assessment rates. Mill levies and tax estimates will be updated yearly on December 22nd for the current year. Additional information can be found at https://assessor.weld.gov










Select Reports to Print: