Account: R3543086

April 1, 2026

Account Parcel Account Type Tax Year Buildings Actual Value Local Govt Assessed Value School Assessed Value
R3543086 096117309013 Residential 2026 1 285,112 17,820 20,100

Legal
GR 1566 L13 WHEELER ADD AKA L13 BLK12 WHEELER ADD

Subdivision Block Lot Land Economic Area
WHEELERS ADD 13 ARLINGTON

Property Address Property City Section Township Range
2537 9TH AVENUE CT GREELEY 17 05 65




Account Parcel Account Type Tax Year Buildings Actual Value Local Govt Assessed Value School Assessed Value
R3543086 096117309013 Residential 2026 1 285,112 17,820 20,100

Account Owner Name Address
R3543086 RIVERA-ESCARCEGA ELIANET 2537 9TH AVENUE CT GREELEY, CO 806316908


Account Parcel Account Type Tax Year Buildings Actual Value Local Govt Assessed Value School Assessed Value
R3543086 096117309013 Residential 2026 1 285,112 17,820 20,100

Reception Rec Date Type Grantor Grantee Doc Fee Sale Date Sale Price
1278869 05-23-1958 WDN CLEMENS EUGENE A ALLISON EDWARD & ALLISON LOIS IRENE 0.00 05-15-1958 0
2916184 01-11-2002 DTHC ALLISON EDWARD ALLISON LOIS IRENE 0.00 05-14-2001 0
2916185 01-11-2002 WD ALLISON LOIS IRENE PETERSON MICHAEL J 9.00 01-10-2002 90,000
2947602 05-01-2002 WD PETERSON MICHAEL J SWANSON TAMERA J 11.40 04-23-2002 114,000
3644988 08-26-2009 PTD WELD CO PUBLIC TRUSTEE USA HUD 0.00 08-25-2009 0
3675124 02-09-2010 SWD USA HUD HERMAN LAUREN A 0.00 02-08-2010 55,800
4207749 06-01-2016 WD HERMAN LAUREN A FILONGE RANDY L 15.20 05-31-2016 152,000
4839899 07-06-2022 PTD FILONGE RANDY L CATAMOUNT PROPERTIES 2018 LLC 0.00 07-01-2022 0
4863573 10-27-2022 SWD CATAMOUNT PROPERTIES 2018 LLC RIVERA-ESCARCEGA ELIANET 30.00 10-12-2022 300,000
985642 NA SUB SUBDIVISION WHEELER ADD 0.00 NA 0
985642 08-02-1946 PLT WHEELER ADDITION WHEELER ADDITION 0.00 07-22-1946 0



Account Parcel Account Type Tax Year Buildings Actual Value Local Govt Assessed Value School Assessed Value
R3543086 096117309013 Residential 2026 1 285,112 17,820 20,100

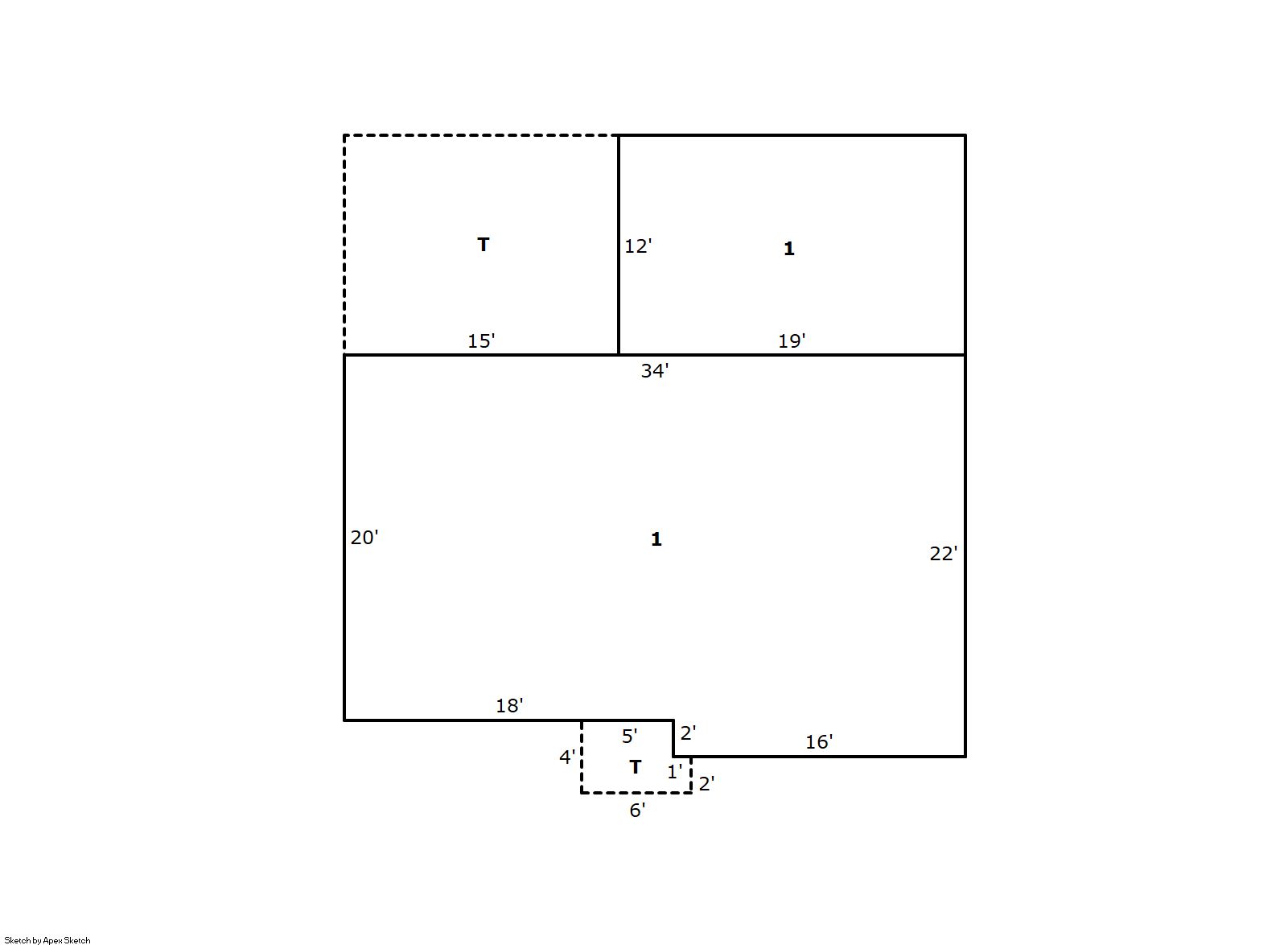
Building 1

AccountNo Building ID Occupancy
R3543086 1 Single Family Residential


ID Type NBHD Occupancy % Complete Bedrooms Baths
1 Residential 6G4045 Single Family Residential 100 3 2.00


ID Exterior Roof Cover Interior HVAC Perimeter Units Unit Type Make
1 Frame Vinyl Composition Shingle Drywall Hot Water Baseboard 174 0 NA NA


ID Square Ft Condo SF Total Basement SF Finished Basement SF Garage SF Carport SF Balcony SF Porch SF
1 940 0 0 0 0 0 0 202


Built As Details for Building 1
ID Built As Square Ft Year Built Stories Length Width
1.00 Ranch 1 Story 940 1945 1 0 0


Additional Details for Building 1
ID Detail Type Description Units
1 Fixture Full Bath 1.00
1 Fixture Half Bath 1.00
1 Porch Open Slab 202.00





Account Parcel Account Type Tax Year Buildings Actual Value Local Govt Assessed Value School Assessed Value
R3543086 096117309013 Residential 2026 1 285,112 17,820 20,100

Type Code Description Actual Value Local Govt Assessed Value School Assessed Value Acres Land SqFt
Improvement 1212 SINGLE FAMILY RESIDENTIAL IMPROVEMENTS 241,912 15,120 17,050 0.000 0
Land 1112 SINGLE FAMILY RESIDENTIAL-LAND 43,200 2,700 3,050 0.165 7,200
Totals - - 285,112 17,820 20,100 0.165 7,200


Account Parcel Account Type Tax Year Buildings Actual Value Local Govt Assessed Value School Assessed Value
R3543086 096117309013 Residential 2026 1 285,112 17,820 20,100

Tax Area District ID District Name Local Govt
Mill Levy
School
Mill Levy
Estimated
Taxes
0600 0700 AIMS JUNIOR COLLEGE 6.313 0.000 $112.50
0600 0411 GREELEY CITY 11.274 0.000 $200.90
0600 1050 HIGH PLAINS LIBRARY 3.044 0.000 $54.24
0600 0301 NORTHERN COLORADO WATER (NCW) 1.000 0.000 $17.82
0600 0206 SCHOOL DIST 6-GREELEY 0.000 47.615 $957.06
0600 0100 WELD COUNTY 15.956 0.000 $284.34
Total - - 37.587 47.615 $1,626.86


The estimate of tax is based on the prior year mill levy and the 2025 projected assessment rates. Mill levies and tax estimates will be updated yearly on December 22nd for the current year. Additional information can be found at https://assessor.weld.gov










Select Reports to Print: