Account: R3598605
April 1, 2026
| Account | Parcel | Account Type | Tax Year | Buildings | Actual Value | Local Govt Assessed Value | School Assessed Value |
|---|---|---|---|---|---|---|---|
| R3598605 | 105701137017 | Residential | 2026 | 1 | 474,701 | 29,670 | 33,460 |
| Legal |
|---|
| LAS DHER L17 BLK9 DOVE HILL ESTATES SUB RPLT L1-10 B7,9,10 L1-11 B11 L1-8 B12 |
| Subdivision | Block | Lot | Land Economic Area |
|---|---|---|---|
| DOVE HILL ESTATES SUB RPLT L1-10 B7,9,10 L1-11 B11 L1-8 B12 | 9 | 17 | DOVE HILL |
| Property Address | Property City | Section | Township | Range |
|---|---|---|---|---|
| 944 DOVE HILL RD | LA SALLE | 01 | 04 | 66 |
| Account | Parcel | Account Type | Tax Year | Buildings | Actual Value | Local Govt Assessed Value | School Assessed Value |
|---|---|---|---|---|---|---|---|
| R3598605 | 105701137017 | Residential | 2026 | 1 | 474,701 | 29,670 | 33,460 |
| Account | Owner Name | Address |
|---|---|---|
| R3598605 | PIERCE JUSTIN LEE | 944 DOVE HILL RD LA SALLE, CO 806453088 |
| Account | Parcel | Account Type | Tax Year | Buildings | Actual Value | Local Govt Assessed Value | School Assessed Value |
|---|---|---|---|---|---|---|---|
| R3598605 | 105701137017 | Residential | 2026 | 1 | 474,701 | 29,670 | 33,460 |
| Reception | Rec Date | Type | Grantor | Grantee | Doc Fee | Sale Date | Sale Price |
|---|---|---|---|---|---|---|---|
| 3277414 | NA | SUB | SUBDIVISION | DOVE HILL ESTATES RPLT BLKS 9-10-11 & PT BLKS 7-8 & 12 | 0.00 | NA | 0 |
| 3670670 | 01-18-2010 | PTD | WELD CO PUBLIC TRUSTEE | FIRST NATIONAL BANK | 0.00 | 01-15-2010 | 0 |
| 3874238 | 09-19-2012 | QC | FIRST NATIONAL BANK | WESTERN CONSTRUCTORS INC | 55.00 | 09-14-2012 | 550,000 |
| 3960737 | 09-03-2013 | QCN | WESTERN CONSTRUCTORS INC | CONSTRUCTORS WEST INC | 0.00 | 08-29-2013 | 0 |
| 4120182 | 06-30-2015 | SWD | CONSTRUCTORS WEST INC | VILLALOBOS OMAR; MEDINA SYLVIA S | 23.30 | 06-24-2015 | 233,000 |
| 4311771 | 06-20-2017 | QCN | MEDINA SYLVIA S | VILLALOBOS SYLVIA S | 0.00 | 06-15-2017 | 0 |
| 4461615 | 01-23-2019 | PTD | VILLALOBOS OMAR; VILLALOBOS SYLVIA S | ROCKY MOUNTAIN INVESTMENT GROUP LLC | 0.00 | 01-22-2019 | 0 |
| 4490667 | 05-21-2019 | WD | ROCKY MOUNTAIN INVESTMENT GROUP LLC | PIERCE JUSTIN LEE | 32.95 | 05-13-2019 | 329,500 |
*If the hyperlink for the reception number does not work, try a manual search in the Clerk and Recorder records. Use the Grantor or Grantee in your search.
| Account | Parcel | Account Type | Tax Year | Buildings | Actual Value | Local Govt Assessed Value | School Assessed Value |
|---|---|---|---|---|---|---|---|
| R3598605 | 105701137017 | Residential | 2026 | 1 | 474,701 | 29,670 | 33,460 |
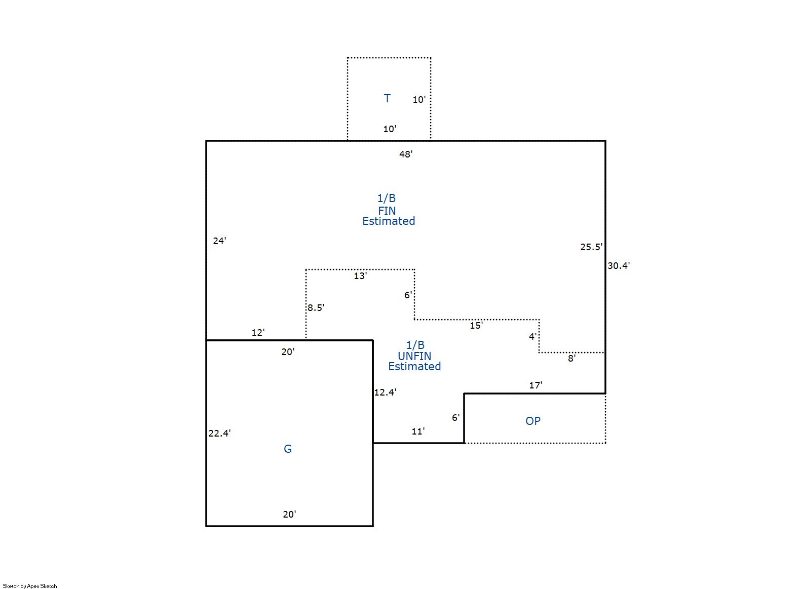
Building 1
| AccountNo | Building ID | Occupancy |
|---|---|---|
| R3598605 | 1 | Single Family Residential |
| ID | Type | NBHD | Occupancy | % Complete | Bedrooms | Baths |
|---|---|---|---|---|---|---|
| 1 | Residential | 6L0051 | Single Family Residential | 100 | 4 | 3.00 |
| ID | Exterior | Roof Cover | Interior | HVAC | Perimeter | Units | Unit Type | Make |
|---|---|---|---|---|---|---|---|---|
| 1 | Frame Siding | Composition Shingle | Drywall | Central Air to Air | 169 | 0 | NA | NA |
| ID | Square Ft | Condo SF | Total Basement SF | Finished Basement SF | Garage SF | Carport SF | Balcony SF | Porch SF |
|---|---|---|---|---|---|---|---|---|
| 1 | 1,397 | 0 | 1,397 | 1,016 | 448 | 0 | 0 | 102 |
| ID | Built As | Square Ft | Year Built | Stories | Length | Width |
|---|---|---|---|---|---|---|
| 1.00 | Ranch 1 Story | 1,397 | 2015 | 1 | 0 | 0 |
| ID | Detail Type | Description | Units |
|---|---|---|---|
| 1 | Add On | Fireplace Gas | 1.00 |
| 1 | Basement | Finished | 1016.00 |
| 1 | Basement | Total Basement SF | 1397.00 |
| 1 | Fixture | Full Bath | 4.00 |
| 1 | Garage | Attached | 448.00 |
| 1 | Porch | Open Slab | 100.00 |
| 1 | Porch | Slab Roof Ceil | 102.00 |
| Account | Parcel | Account Type | Tax Year | Buildings | Actual Value | Local Govt Assessed Value | School Assessed Value |
|---|---|---|---|---|---|---|---|
| R3598605 | 105701137017 | Residential | 2026 | 1 | 474,701 | 29,670 | 33,460 |
| Type | Code | Description | Actual Value | Local Govt Assessed Value | School Assessed Value | Acres | Land SqFt |
|---|---|---|---|---|---|---|---|
| Improvement | 1212 | SINGLE FAMILY RESIDENTIAL IMPROVEMENTS | 409,701 | 25,610 | 28,880 | 0.000 | 0 |
| Land | 1112 | SINGLE FAMILY RESIDENTIAL-LAND | 65,000 | 4,060 | 4,580 | 0.149 | 6,510 |
| Totals | - | - | 474,701 | 29,670 | 33,460 | 0.149 | 6,510 |
Comparable sales for your Residential or Commercial property may be found using our SALES SEARCH TOOL
Values are updated annually on May 1st for Real Property and June 15th for Personal Property and Oil and Gas.
| Account | Parcel | Account Type | Tax Year | Buildings | Actual Value | Local Govt Assessed Value | School Assessed Value |
|---|---|---|---|---|---|---|---|
| R3598605 | 105701137017 | Residential | 2026 | 1 | 474,701 | 29,670 | 33,460 |
| Tax Area | District ID | District Name | Local Govt Mill Levy |
School Mill Levy |
Estimated Taxes |
|---|---|---|---|---|---|
| 0160 | 0700 | AIMS JUNIOR COLLEGE | 6.313 | 0.000 | $187.31 |
| 0160 | 1050 | HIGH PLAINS LIBRARY | 3.044 | 0.000 | $90.32 |
| 0160 | 0511 | LASALLE FIRE | 5.154 | 0.000 | $152.92 |
| 0160 | 0418 | LASALLE TOWN | 22.837 | 0.000 | $677.57 |
| 0160 | 0301 | NORTHERN COLORADO WATER (NCW) | 1.000 | 0.000 | $29.67 |
| 0160 | 0201 | SCHOOL DIST RE1-GILCREST | 0.000 | 15.382 | $514.68 |
| 0160 | 0100 | WELD COUNTY | 15.956 | 0.000 | $473.41 |
| Total | - | - | 54.304 | 15.382 | $2,125.88 |
The estimate of tax is based on the prior year mill levy and the 2025 projected assessment rates. Mill levies and tax estimates will be updated yearly on December 22nd for the current year. Additional information can be found at https://assessor.weld.gov


