Account: R3621005

April 5, 2026

Account Parcel Account Type Tax Year Buildings Actual Value Local Govt Assessed Value School Assessed Value
R3621005 131323306011 Residential 2026 1 657,936 41,130 46,390

Legal
FRE RHS L11 BLK5 RASPBERRY HILL SUBDIVISION

Subdivision Block Lot Land Economic Area
RASPBERRY HILL SUB FINAL PLAT 5 11 RASPBERRY HILL

Property Address Property City Section Township Range
8139 RASPBERRY DR FREDERICK 23 02 68




Account Parcel Account Type Tax Year Buildings Actual Value Local Govt Assessed Value School Assessed Value
R3621005 131323306011 Residential 2026 1 657,936 41,130 46,390

Account Owner Name Address
R3621005 MCMANN DOUGLAS E 8139 RASPBERRY DR FREDERICK, CO 805046769


Account Parcel Account Type Tax Year Buildings Actual Value Local Govt Assessed Value School Assessed Value
R3621005 131323306011 Residential 2026 1 657,936 41,130 46,390

Reception Rec Date Type Grantor Grantee Doc Fee Sale Date Sale Price
3277613 NA SUB SUBDIVISION RASPBERRY HILL 0.00 NA 0
3538845 03-03-2008 SWD MELODY HOMES INC MCMANN DOUGLAS E 27.50 02-29-2008 275,000



Account Parcel Account Type Tax Year Buildings Actual Value Local Govt Assessed Value School Assessed Value
R3621005 131323306011 Residential 2026 1 657,936 41,130 46,390

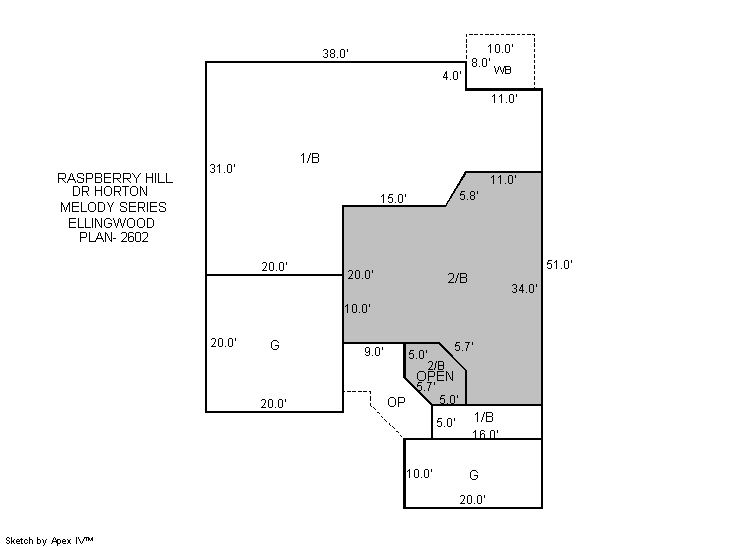
Building 1

AccountNo Building ID Occupancy
R3621005 1 Single Family Residential


ID Type NBHD Occupancy % Complete Bedrooms Baths
1 Residential 3K2026 Single Family Residential 100 3 3.00


ID Exterior Roof Cover Interior HVAC Perimeter Units Unit Type Make
1 Frame Hardboard Composition Shingle Drywall Central Air to Air 0 0 NA NA


ID Square Ft Condo SF Total Basement SF Finished Basement SF Garage SF Carport SF Balcony SF Porch SF
1 2,766 0 2,017 0 600 0 80 114


Built As Details for Building 1
ID Built As Square Ft Year Built Stories Length Width
1.00 2 Story 2,766 2006 2 0 0


Additional Details for Building 1
ID Detail Type Description Units
1 Add On Fireplace Gas 1.00
1 Balcony Wood Wood Fin 80.00
1 Basement Full Daylight 1.00
1 Basement Total Basement SF 2017.00
1 Fixture Full Bath 2.00
1 Fixture Half Bath 1.00
1 Garage Attached 600.00
1 Porch Slab Roof Ceil 114.00
1 Rough In Rough In 1.00





Account Parcel Account Type Tax Year Buildings Actual Value Local Govt Assessed Value School Assessed Value
R3621005 131323306011 Residential 2026 1 657,936 41,130 46,390

Type Code Description Actual Value Local Govt Assessed Value School Assessed Value Acres Land SqFt
Improvement 1212 SINGLE FAMILY RESIDENTIAL IMPROVEMENTS 539,936 33,750 38,070 0.000 0
Land 1112 SINGLE FAMILY RESIDENTIAL-LAND 118,000 7,380 8,320 0.184 8,001
Totals - - 657,936 41,130 46,390 0.184 8,001


Account Parcel Account Type Tax Year Buildings Actual Value Local Govt Assessed Value School Assessed Value
R3621005 131323306011 Residential 2026 1 657,936 41,130 46,390

Tax Area District ID District Name Local Govt
Mill Levy
School
Mill Levy
Estimated
Taxes
1459 0900 CARBON VALLEY REC 4.427 0.000 $182.08
1459 0408 FREDERICK TOWN 6.555 0.000 $269.61
1459 0507 FREDERICK-FIRESTONE FIRE 15.559 0.000 $639.94
1459 1050 HIGH PLAINS LIBRARY 3.044 0.000 $125.20
1459 0301 NORTHERN COLORADO WATER (NCW) 1.000 0.000 $41.13
1459 0213 SCHOOL DIST RE1J-LONGMONT 0.000 57.717 $2,677.49
1459 0620 ST VRAIN SANITATION 0.316 0.000 $13.00
1459 0100 WELD COUNTY 15.956 0.000 $656.27
Total - - 46.857 57.717 $4,604.72


The estimate of tax is based on the prior year mill levy and the 2025 projected assessment rates. Mill levies and tax estimates will be updated yearly on December 22nd for the current year. Additional information can be found at https://assessor.weld.gov










Select Reports to Print: