Account: R3636486

April 1, 2026

Account Parcel Account Type Tax Year Buildings Actual Value Local Govt Assessed Value School Assessed Value
R3636486 096118318027 Residential 2026 1 1,893,600 118,350 133,490

Legal
GR 2H2-6 L6 & 7 BLK2 2ND HILLSIDE

Subdivision Block Lot Land Economic Area
HILLSIDE 2ND ADD 2 6 GREELEY'S CONDOS

Property Address Property City Section Township Range
1731 28TH ST GREELEY 18 05 65




Account Parcel Account Type Tax Year Buildings Actual Value Local Govt Assessed Value School Assessed Value
R3636486 096118318027 Residential 2026 1 1,893,600 118,350 133,490

Account Owner Name Address
R3636486 1715 28TH STREET LLC PO BOX 566 CASTLE ROCK, CO 801040566


Account Parcel Account Type Tax Year Buildings Actual Value Local Govt Assessed Value School Assessed Value
R3636486 096118318027 Residential 2026 1 1,893,600 118,350 133,490

Reception Rec Date Type Grantor Grantee Doc Fee Sale Date Sale Price
01802027 08-31-1979 WDN 0.00 01-01-1900 0
02405052 09-01-1994 SWDN 0.00 08-13-1994 0
1381162 NA SUB SUBDIVISION HILLSIDE 2ND ADD 0.00 NA 0
2715734 08-23-1999 WD SPRAGUE OREN WALTER TRUST (50 1817 28 ST LLC 170.00 08-10-1999 1,700,000
2737185 12-07-1999 WD 1817 28 ST LLC MOSER RANDY L & CHRISTINE M(50 53.00 12-03-1999 530,000
3345061 12-06-2005 QCN MOSER RANDY L & CHRISTINE M (50% INT) & SCHUMACHER KEVIN L 0.00 11-30-2005 0
3653863 10-13-2009 QCN SCHUMACHER KEVIN L M A S INVESTMENTS LLC 0.00 10-06-2009 0
3728092 10-27-2010 WD M A S INVESTMENTS L L C NEW BRIGHTON LATERAL LLC 50.00 10-26-2010 500,000
4168242 12-28-2015 QCN NEW BRIGHTON LATERAL LLC THREE ANGELS LLC 0.00 12-24-2015 0
4293533 04-13-2017 WD THREE ANGELS LLC 1715 28TH STREET LLC 247.50 04-12-2017 2,475,000



Account Parcel Account Type Tax Year Buildings Actual Value Local Govt Assessed Value School Assessed Value
R3636486 096118318027 Residential 2026 1 1,893,600 118,350 133,490

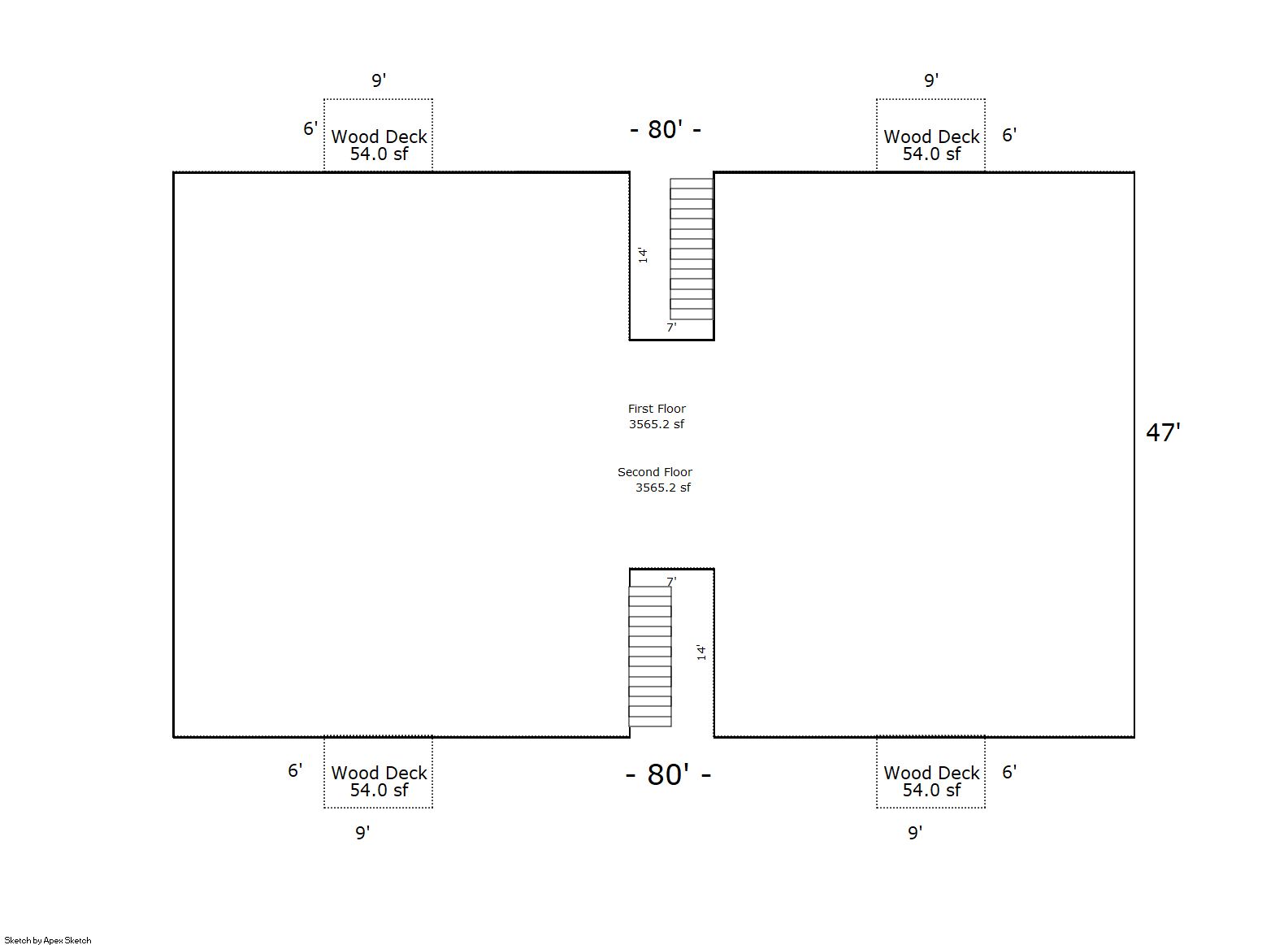
Building 1

AccountNo Building ID Occupancy
R3636486 1 Apartment w/9 + Units


ID Type NBHD Occupancy % Complete Bedrooms Baths
1 Multiple Unit 6G4029 Apartment w/9 + Units 100 NA 12.00


ID Exterior Roof Cover Interior HVAC Perimeter Units Unit Type Make
1 Frame Masonry Veneer Built Up Rock Drywall Central Air to Air 620 12 NA NA


ID Square Ft Condo SF Total Basement SF Finished Basement SF Garage SF Carport SF Balcony SF Porch SF
1 7,130 0 3,565 3,565 0 0 0 216


Built As Details for Building 1
ID Built As Square Ft Year Built Stories Length Width
1.00 Apartment <= 3 Stories 7,130 1971 2 0 0


Additional Details for Building 1
ID Detail Type Description Units
1 Add On Asphalt 15196.00
1 Basement Finished 3565.00
1 Basement Total Basement SF 3565.00
1 Fixture Full Bath 12.00
1 Porch Ceiling 216.00
1 Porch Open Slab 216.00
1 Stairway Stair Cement Exterior Fin 8.00





Account Parcel Account Type Tax Year Buildings Actual Value Local Govt Assessed Value School Assessed Value
R3636486 096118318027 Residential 2026 1 1,893,600 118,350 133,490

Type Code Description Actual Value Local Govt Assessed Value School Assessed Value Acres Land SqFt
Improvement 1225 MULTI-UNITS(9 +)-IMPRVMTS 1,749,990 109,370 123,370 0.000 0
Land 1125 MULTI-UNITS(9 +)-LAND 143,610 8,980 10,120 0.550 23,935
Totals - - 1,893,600 118,350 133,490 0.550 23,935


Account Parcel Account Type Tax Year Buildings Actual Value Local Govt Assessed Value School Assessed Value
R3636486 096118318027 Residential 2026 1 1,893,600 118,350 133,490

Tax Area District ID District Name Local Govt
Mill Levy
School
Mill Levy
Estimated
Taxes
0600 0700 AIMS JUNIOR COLLEGE 6.313 0.000 $747.14
0600 0411 GREELEY CITY 11.274 0.000 $1,334.28
0600 1050 HIGH PLAINS LIBRARY 3.044 0.000 $360.26
0600 0301 NORTHERN COLORADO WATER (NCW) 1.000 0.000 $118.35
0600 0206 SCHOOL DIST 6-GREELEY 0.000 47.615 $6,356.13
0600 0100 WELD COUNTY 15.956 0.000 $1,888.39
Total - - 37.587 47.615 $10,804.55


The estimate of tax is based on the prior year mill levy and the 2025 projected assessment rates. Mill levies and tax estimates will be updated yearly on December 22nd for the current year. Additional information can be found at https://assessor.weld.gov










Select Reports to Print: