Account: R3637005
April 1, 2026
| Account | Parcel | Account Type | Tax Year | Buildings | Actual Value | Local Govt Assessed Value | School Assessed Value |
|---|---|---|---|---|---|---|---|
| R3637005 | 131323301018 | Commercial | 2026 | 1 | 2,889,055 | 780,040 | 780,040 |
| Legal |
|---|
| FRE RBHP L18 RASPBERRY HILL BUSINESS PARK |
| Subdivision | Block | Lot | Land Economic Area |
|---|---|---|---|
| RASPBERRY HILL BUSINESS PARK | 18 | FREDERICK RASPBERRY HILL BUSINESS PARK |
| Property Address | Property City | Section | Township | Range |
|---|---|---|---|---|
| 8478 RASPBERRY WAY | FREDERICK | 23 | 02 | 68 |
| Account | Parcel | Account Type | Tax Year | Buildings | Actual Value | Local Govt Assessed Value | School Assessed Value |
|---|---|---|---|---|---|---|---|
| R3637005 | 131323301018 | Commercial | 2026 | 1 | 2,889,055 | 780,040 | 780,040 |
| Account | Owner Name | Address |
|---|---|---|
| R3637005 | MAHNKE GARY | 15700 ULSTER ST THORNTON, CO 806027542 |
| R3637005 | MAHNKE JUDY |
| Account | Parcel | Account Type | Tax Year | Buildings | Actual Value | Local Govt Assessed Value | School Assessed Value |
|---|---|---|---|---|---|---|---|
| R3637005 | 131323301018 | Commercial | 2026 | 1 | 2,889,055 | 780,040 | 780,040 |
| Reception | Rec Date | Type | Grantor | Grantee | Doc Fee | Sale Date | Sale Price |
|---|---|---|---|---|---|---|---|
| 3268884 | NA | SUB | SUBDIVISION | RASPBERRY HILL BUSINESS PARK | 0.00 | NA | 0 |
| 3475564 | 05-14-2007 | SWD | D & H LAND DEVELOPMENT LLC | MAHNKE GARY & | 33.99 | 05-04-2007 | 339,900 |
*If the hyperlink for the reception number does not work, try a manual search in the Clerk and Recorder records. Use the Grantor or Grantee in your search.
| Account | Parcel | Account Type | Tax Year | Buildings | Actual Value | Local Govt Assessed Value | School Assessed Value |
|---|---|---|---|---|---|---|---|
| R3637005 | 131323301018 | Commercial | 2026 | 1 | 2,889,055 | 780,040 | 780,040 |
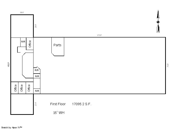
Building 1
| AccountNo | Building ID | Occupancy |
|---|---|---|
| R3637005 | 1 | Warehouse |
| ID | Type | NBHD | Occupancy | % Complete | Bedrooms | Baths |
|---|---|---|---|---|---|---|
| 1 | Commercial | 3903 | Warehouse | 100 | 0 | 0.00 |
| ID | Exterior | Roof Cover | Interior | HVAC | Perimeter | Units | Unit Type | Make |
|---|---|---|---|---|---|---|---|---|
| 1 | NA | NA | NA | Package Unit | 675 | 0 | NA | NA |
| ID | Square Ft | Condo SF | Total Basement SF | Finished Basement SF | Garage SF | Carport SF | Balcony SF | Porch SF |
|---|---|---|---|---|---|---|---|---|
| 1 | 17,095 | 0 | 0 | 0 | 0 | 0 | 0 | 0 |
| ID | Built As | Square Ft | Year Built | Stories | Length | Width |
|---|---|---|---|---|---|---|
| 1.00 | Service Garage | 17,095 | 2008 | 1 | 0 | 0 |
| ID | Detail Type | Description | Units |
|---|---|---|---|
| 1 | Add On | Asphalt Average | 22000.00 |
| 1 | Add On | Concrete Slab Average | 2700.00 |
| Account | Parcel | Account Type | Tax Year | Buildings | Actual Value | Local Govt Assessed Value | School Assessed Value |
|---|---|---|---|---|---|---|---|
| R3637005 | 131323301018 | Commercial | 2026 | 1 | 2,889,055 | 780,040 | 780,040 |
| Type | Code | Description | Actual Value | Local Govt Assessed Value | School Assessed Value | Acres | Land SqFt |
|---|---|---|---|---|---|---|---|
| Improvement | 2230 | SPECIAL PURPOSE-IMPROVEMENTS | 2,468,232 | 666,420 | 666,420 | 0.000 | 0 |
| Land | 2130 | SPECIAL PURPOSE-LAND | 420,823 | 113,620 | 113,620 | 1.486 | 64,742 |
| Totals | - | - | 2,889,055 | 780,040 | 780,040 | 1.486 | 64,742 |
Comparable sales for your Residential or Commercial property may be found using our SALES SEARCH TOOL
Values are updated annually on May 1st for Real Property and June 15th for Personal Property and Oil and Gas.
| Account | Parcel | Account Type | Tax Year | Buildings | Actual Value | Local Govt Assessed Value | School Assessed Value |
|---|---|---|---|---|---|---|---|
| R3637005 | 131323301018 | Commercial | 2026 | 1 | 2,889,055 | 780,040 | 780,040 |
| Tax Area | District ID | District Name | Local Govt Mill Levy |
School Mill Levy |
Estimated Taxes |
|---|---|---|---|---|---|
| 1459 | 0900 | CARBON VALLEY REC | 4.427 | 0.000 | $3,453.24 |
| 1459 | 0408 | FREDERICK TOWN | 6.555 | 0.000 | $5,113.16 |
| 1459 | 0507 | FREDERICK-FIRESTONE FIRE | 15.559 | 0.000 | $12,136.64 |
| 1459 | 1050 | HIGH PLAINS LIBRARY | 3.044 | 0.000 | $2,374.44 |
| 1459 | 0301 | NORTHERN COLORADO WATER (NCW) | 1.000 | 0.000 | $780.04 |
| 1459 | 0213 | SCHOOL DIST RE1J-LONGMONT | 0.000 | 57.717 | $45,021.57 |
| 1459 | 0620 | ST VRAIN SANITATION | 0.316 | 0.000 | $246.49 |
| 1459 | 0100 | WELD COUNTY | 15.956 | 0.000 | $12,446.32 |
| Total | - | - | 46.857 | 57.717 | $81,571.90 |
The estimate of tax is based on the prior year mill levy and the 2025 projected assessment rates. Mill levies and tax estimates will be updated yearly on December 22nd for the current year. Additional information can be found at https://assessor.weld.gov



