Account: R3676286
April 1, 2026
| Account | Parcel | Account Type | Tax Year | Buildings | Actual Value | Local Govt Assessed Value | School Assessed Value |
|---|---|---|---|---|---|---|---|
| R3676286 | 096118418012 | Residential | 2026 | 1 | 336,076 | 21,010 | 23,700 |
| Legal |
|---|
| GR 6607 L9 BLK24 FARRS 5TH ADD |
| Subdivision | Block | Lot | Land Economic Area |
|---|---|---|---|
| FARRS 5TH ADD | 24 | 9 | FARRS SUB |
| Property Address | Property City | Section | Township | Range |
|---|---|---|---|---|
| 2650 12TH AVE | GREELEY | 18 | 05 | 65 |
| Account | Parcel | Account Type | Tax Year | Buildings | Actual Value | Local Govt Assessed Value | School Assessed Value |
|---|---|---|---|---|---|---|---|
| R3676286 | 096118418012 | Residential | 2026 | 1 | 336,076 | 21,010 | 23,700 |
| Account | Owner Name | Address |
|---|---|---|
| R3676286 | ALVAREZ GERARDO ARRELLANO | 2618 APPLE AVE GREELEY, CO 806317354 |
| R3676286 | ARRELLANO JULIA |
| Account | Parcel | Account Type | Tax Year | Buildings | Actual Value | Local Govt Assessed Value | School Assessed Value |
|---|---|---|---|---|---|---|---|
| R3676286 | 096118418012 | Residential | 2026 | 1 | 336,076 | 21,010 | 23,700 |
| Reception | Rec Date | Type | Grantor | Grantee | Doc Fee | Sale Date | Sale Price |
|---|---|---|---|---|---|---|---|
| 01986250 | 10-25-1984 | WDN | 0.00 | 01-01-1900 | 0 | ||
| 02198630 | 11-29-1989 | PTD | 0.00 | 11-28-1989 | 0 | ||
| 1229749 | NA | SUB | SUBDIVISION | FARRS 5TH ADD | 0.00 | NA | 0 |
| 2239723 | 01-28-1991 | WD | SWANSON JUANITA A | SARGENT TODD WESLEY | 4.70 | 01-28-1991 | 47,000 |
| 2456952 | 09-26-1995 | WD | SARGENT TODD WESLEY | STONER JASON W & KATHI R | 8.79 | 09-22-1995 | 87,900 |
| 3143842 | 01-13-2004 | QCN | STONER JASON W & KATHI R | MIKESELL JASON W & | 0.00 | 01-12-2004 | 0 |
| 3157698 | 03-01-2004 | WD | MIKESELL JASON W & | BOCKIUS WALTER J & | 13.50 | 02-19-2004 | 135,000 |
| 3608794 | 03-04-2009 | PRDN | BOCKIUS WALTER J | BOCKIUS WALTER J FAMILY TRUST | 0.00 | 02-07-2009 | 0 |
| 3608796 | 03-04-2009 | DTHC | BOCKIUS WALTER J | 0.00 | 03-09-2006 | 0 | |
| 3951533 | 07-29-2013 | WDE | BOCKIUS CAROL L | DAUM CHARLES W | 13.70 | 07-26-2013 | 137,000 |
| 4251645 | 11-07-2016 | DTHC | DAUM DOROTHY B; DAUM CHARLES W | DAUM CHARLES W | 0.00 | 10-29-2016 | 0 |
| 4654388 | 11-24-2020 | PRD | DAUM CHARLES W | ALVAREZ GERARDO ARRELLANO; ARRELLANO JULIA | 24.50 | 11-13-2020 | 245,000 |
| X0009477 | 10-25-1984 | CON | LEWIS MICHAEL J & VICKE V | 5.75 | 10-25-1984 | 57,500 |
*If the hyperlink for the reception number does not work, try a manual search in the Clerk and Recorder records. Use the Grantor or Grantee in your search.
| Account | Parcel | Account Type | Tax Year | Buildings | Actual Value | Local Govt Assessed Value | School Assessed Value |
|---|---|---|---|---|---|---|---|
| R3676286 | 096118418012 | Residential | 2026 | 1 | 336,076 | 21,010 | 23,700 |
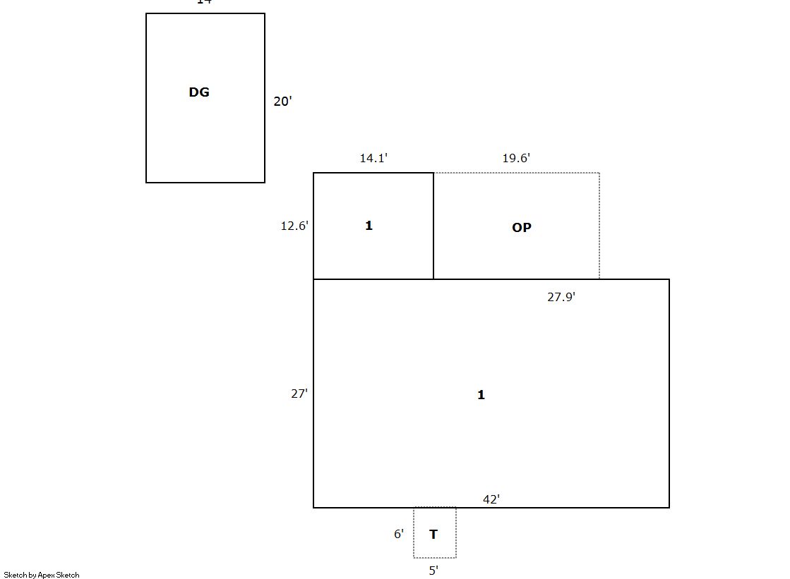
Building 1
| AccountNo | Building ID | Occupancy |
|---|---|---|
| R3676286 | 1 | Single Family Residential |
| ID | Type | NBHD | Occupancy | % Complete | Bedrooms | Baths |
|---|---|---|---|---|---|---|
| 1 | Residential | 6G4029 | Single Family Residential | 100 | 2 | 2.00 |
| ID | Exterior | Roof Cover | Interior | HVAC | Perimeter | Units | Unit Type | Make |
|---|---|---|---|---|---|---|---|---|
| 1 | Frame Masonry Veneer | Composition Shingle | Drywall | Central Air to Air | 0 | 0 | NA | NA |
| ID | Square Ft | Condo SF | Total Basement SF | Finished Basement SF | Garage SF | Carport SF | Balcony SF | Porch SF |
|---|---|---|---|---|---|---|---|---|
| 1 | 1,312 | 0 | 0 | 0 | 280 | 0 | 0 | 30 |
| ID | Built As | Square Ft | Year Built | Stories | Length | Width |
|---|---|---|---|---|---|---|
| 1.00 | Ranch 1 Story | 1,312 | 1957 | 1 | 0 | 0 |
| ID | Detail Type | Description | Units |
|---|---|---|---|
| 1 | Fixture | Full Bath | 2.00 |
| 1 | Garage | Detached | 280.00 |
| 1 | Porch | Open Slab | 30.00 |
| 1 | Porch | Slab Roof Ceil | 247.00 |
| Account | Parcel | Account Type | Tax Year | Buildings | Actual Value | Local Govt Assessed Value | School Assessed Value |
|---|---|---|---|---|---|---|---|
| R3676286 | 096118418012 | Residential | 2026 | 1 | 336,076 | 21,010 | 23,700 |
| Type | Code | Description | Actual Value | Local Govt Assessed Value | School Assessed Value | Acres | Land SqFt |
|---|---|---|---|---|---|---|---|
| Improvement | 1212 | SINGLE FAMILY RESIDENTIAL IMPROVEMENTS | 281,076 | 17,570 | 19,820 | 0.000 | 0 |
| Land | 1112 | SINGLE FAMILY RESIDENTIAL-LAND | 55,000 | 3,440 | 3,880 | 0.193 | 8,400 |
| Totals | - | - | 336,076 | 21,010 | 23,700 | 0.193 | 8,400 |
Comparable sales for your Residential or Commercial property may be found using our SALES SEARCH TOOL
Values are updated annually on May 1st for Real Property and June 15th for Personal Property and Oil and Gas.
| Account | Parcel | Account Type | Tax Year | Buildings | Actual Value | Local Govt Assessed Value | School Assessed Value |
|---|---|---|---|---|---|---|---|
| R3676286 | 096118418012 | Residential | 2026 | 1 | 336,076 | 21,010 | 23,700 |
| Tax Area | District ID | District Name | Local Govt Mill Levy |
School Mill Levy |
Estimated Taxes |
|---|---|---|---|---|---|
| 0600 | 0700 | AIMS JUNIOR COLLEGE | 6.313 | 0.000 | $132.64 |
| 0600 | 0411 | GREELEY CITY | 11.274 | 0.000 | $236.87 |
| 0600 | 1050 | HIGH PLAINS LIBRARY | 3.044 | 0.000 | $63.95 |
| 0600 | 0301 | NORTHERN COLORADO WATER (NCW) | 1.000 | 0.000 | $21.01 |
| 0600 | 0206 | SCHOOL DIST 6-GREELEY | 0.000 | 47.615 | $1,128.48 |
| 0600 | 0100 | WELD COUNTY | 15.956 | 0.000 | $335.24 |
| Total | - | - | 37.587 | 47.615 | $1,918.18 |
The estimate of tax is based on the prior year mill levy and the 2025 projected assessment rates. Mill levies and tax estimates will be updated yearly on December 22nd for the current year. Additional information can be found at https://assessor.weld.gov



