Account: R3677305
April 1, 2026
| Account | Parcel | Account Type | Tax Year | Buildings | Actual Value | Local Govt Assessed Value | School Assessed Value |
|---|---|---|---|---|---|---|---|
| R3677305 | 080716129003 | Residential | 2026 | 1 | 782,740 | 48,930 | 55,190 |
| Legal |
|---|
| WIN GRNS L3 BLK26 GREENSPIRE |
| Subdivision | Block | Lot | Land Economic Area |
|---|---|---|---|
| GREENSPIRE SUB FINAL PLAT | 26 | 3 | GREENSPIRE |
| Property Address | Property City | Section | Township | Range |
|---|---|---|---|---|
| 842 LITTLE LEAF DR | WINDSOR | 16 | 06 | 67 |
| Account | Parcel | Account Type | Tax Year | Buildings | Actual Value | Local Govt Assessed Value | School Assessed Value |
|---|---|---|---|---|---|---|---|
| R3677305 | 080716129003 | Residential | 2026 | 1 | 782,740 | 48,930 | 55,190 |
| Account | Owner Name | Address |
|---|---|---|
| R3677305 | DEVENPORT KENT EDWARD | 842 LITTLELEAF DR WINDSOR, CO 805503846 |
| R3677305 | DEVENPORT MARIA PYNAERT |
| Account | Parcel | Account Type | Tax Year | Buildings | Actual Value | Local Govt Assessed Value | School Assessed Value |
|---|---|---|---|---|---|---|---|
| R3677305 | 080716129003 | Residential | 2026 | 1 | 782,740 | 48,930 | 55,190 |
| Reception | Rec Date | Type | Grantor | Grantee | Doc Fee | Sale Date | Sale Price |
|---|---|---|---|---|---|---|---|
| 3284984 | NA | SUB | SUBDIVISION | GREENSPIRE | 0.00 | NA | 0 |
| 4150948 | 10-19-2015 | PTD | LOT HOLDING INVESTMENTS LLC | 2010-1 RADC/CADC PROPERTY XI LLC | 0.00 | 10-16-2015 | 0 |
| 4303369 | 05-18-2017 | SWDN | 2010-1 RADC/CADC PROPERTY XI LLC | LOT HOLDING INVESTMENTS LLC | 0.00 | 05-12-2017 | 0 |
| 4741757 | 08-02-2021 | QC | LOT HOLDING INVESTMENTS LLC | WINDMILL HOMES COMPANY | 612.50 | 07-28-2021 | 6,125,000 |
| 4849420 | 08-18-2022 | SWD | WINDMILL HOMES COMPANY | DEVENPORT KENT EDWARD; DEVENPORT MARIA PYNAERT | 82.72 | 08-17-2022 | 827,200 |
*If the hyperlink for the reception number does not work, try a manual search in the Clerk and Recorder records. Use the Grantor or Grantee in your search.
| Account | Parcel | Account Type | Tax Year | Buildings | Actual Value | Local Govt Assessed Value | School Assessed Value |
|---|---|---|---|---|---|---|---|
| R3677305 | 080716129003 | Residential | 2026 | 1 | 782,740 | 48,930 | 55,190 |
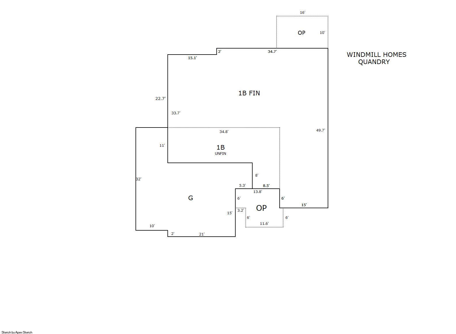
Building 1
| AccountNo | Building ID | Occupancy |
|---|---|---|
| R3677305 | 1 | Single Family Residential |
| ID | Type | NBHD | Occupancy | % Complete | Bedrooms | Baths |
|---|---|---|---|---|---|---|
| 1 | Residential | 2W0013 | Single Family Residential | 100 | 5 | 4.00 |
| ID | Exterior | Roof Cover | Interior | HVAC | Perimeter | Units | Unit Type | Make |
|---|---|---|---|---|---|---|---|---|
| 1 | Frame Siding | Composition Shingle | Drywall | Central Air to Air | 199 | 0 | NA | NA |
| ID | Square Ft | Condo SF | Total Basement SF | Finished Basement SF | Garage SF | Carport SF | Balcony SF | Porch SF |
|---|---|---|---|---|---|---|---|---|
| 1 | 2,026 | 0 | 2,026 | 1,575 | 845 | 0 | 0 | 312 |
| ID | Built As | Square Ft | Year Built | Stories | Length | Width |
|---|---|---|---|---|---|---|
| 1.00 | Ranch 1 Story | 2,026 | 2022 | 1 | 0 | 0 |
| ID | Detail Type | Description | Units |
|---|---|---|---|
| 1 | Add On | Fireplace Gas | 1.00 |
| 1 | Basement | Finished | 1575.00 |
| 1 | Basement | Total Basement SF | 2026.00 |
| 1 | Fixture | Full Bath | 3.00 |
| 1 | Fixture | Half Bath | 1.00 |
| 1 | Fixture | Wet Bar | 1.00 |
| 1 | Garage | Attached | 845.00 |
| 1 | Porch | Slab Roof Ceil | 312.00 |
| Account | Parcel | Account Type | Tax Year | Buildings | Actual Value | Local Govt Assessed Value | School Assessed Value |
|---|---|---|---|---|---|---|---|
| R3677305 | 080716129003 | Residential | 2026 | 1 | 782,740 | 48,930 | 55,190 |
| Type | Code | Description | Actual Value | Local Govt Assessed Value | School Assessed Value | Acres | Land SqFt |
|---|---|---|---|---|---|---|---|
| Improvement | 1212 | SINGLE FAMILY RESIDENTIAL IMPROVEMENTS | 652,740 | 40,800 | 46,020 | 0.000 | 0 |
| Land | 1112 | SINGLE FAMILY RESIDENTIAL-LAND | 130,000 | 8,130 | 9,170 | 0.172 | 7,482 |
| Totals | - | - | 782,740 | 48,930 | 55,190 | 0.172 | 7,482 |
Comparable sales for your Residential or Commercial property may be found using our SALES SEARCH TOOL
Values are updated annually on May 1st for Real Property and June 15th for Personal Property and Oil and Gas.
| Account | Parcel | Account Type | Tax Year | Buildings | Actual Value | Local Govt Assessed Value | School Assessed Value |
|---|---|---|---|---|---|---|---|
| R3677305 | 080716129003 | Residential | 2026 | 1 | 782,740 | 48,930 | 55,190 |
| Tax Area | District ID | District Name | Local Govt Mill Levy |
School Mill Levy |
Estimated Taxes |
|---|---|---|---|---|---|
| 2735 | 0700 | AIMS JUNIOR COLLEGE | 6.313 | 0.000 | $308.90 |
| 2735 | 1051 | CLEARVIEW LIBRARY | 3.546 | 0.000 | $173.51 |
| 2735 | 1339 | GREENSPIRE METRO 3 | 44.248 | 0.000 | $2,165.05 |
| 2735 | 0304 | NORTH WELD COUNTY WATER (NWC) | 0.000 | 0.000 | $0.00 |
| 2735 | 0301 | NORTHERN COLORADO WATER (NCW) | 1.000 | 0.000 | $48.93 |
| 2735 | 0204 | SCHOOL DIST RE4-WINDSOR | 0.000 | 46.646 | $2,574.39 |
| 2735 | 0100 | WELD COUNTY | 15.956 | 0.000 | $780.73 |
| 2735 | 1200 | WEST GREELEY CONSERVATION | 0.414 | 0.000 | $20.26 |
| 2735 | 0428 | WINDSOR TOWN | 12.030 | 0.000 | $588.63 |
| 2735 | 0521 | WINDSOR-SEVERANCE FIRE | 8.535 | 0.000 | $417.62 |
| Total | - | - | 92.042 | 46.646 | $7,078.01 |
The estimate of tax is based on the prior year mill levy and the 2025 projected assessment rates. Mill levies and tax estimates will be updated yearly on December 22nd for the current year. Additional information can be found at https://assessor.weld.gov


