Account: R3788886
April 4, 2026
| Account | Parcel | Account Type | Tax Year | Buildings | Actual Value | Local Govt Assessed Value | School Assessed Value |
|---|---|---|---|---|---|---|---|
| R3788886 | 096119303002 | Residential | 2026 | 1 | 374,984 | 23,440 | 26,440 |
| Legal |
|---|
| EVS 3VS3-23 L23 BLK3 VILLAGE SUB 3RD FILING |
| Subdivision | Block | Lot | Land Economic Area |
|---|---|---|---|
| VILLAGE SUB 3RD FG | 3 | 23 | VILLAGE SUB |
| Property Address | Property City | Section | Township | Range |
|---|---|---|---|---|
| 3402 MAGNOLIA ST | EVANS | 19 | 05 | 65 |
| Account | Parcel | Account Type | Tax Year | Buildings | Actual Value | Local Govt Assessed Value | School Assessed Value |
|---|---|---|---|---|---|---|---|
| R3788886 | 096119303002 | Residential | 2026 | 1 | 374,984 | 23,440 | 26,440 |
| Account | Owner Name | Address |
|---|---|---|
| R3788886 | ADAMS JAMES JOSEPH | 3402 MAGNOLIA ST EVANS, CO 806201814 |
| Account | Parcel | Account Type | Tax Year | Buildings | Actual Value | Local Govt Assessed Value | School Assessed Value |
|---|---|---|---|---|---|---|---|
| R3788886 | 096119303002 | Residential | 2026 | 1 | 374,984 | 23,440 | 26,440 |
| Reception | Rec Date | Type | Grantor | Grantee | Doc Fee | Sale Date | Sale Price |
|---|---|---|---|---|---|---|---|
| 01976086 | 08-01-1984 | WDN | 0.00 | 01-01-1900 | 0 | ||
| 1578034 | NA | SUB | SUBDIVISION | VILLAGE 3RD FG | 0.00 | NA | 0 |
| 2987663 | 09-16-2002 | WD | CASTEEL TIMOTHY L | TELLEZ CIPRIANO | 13.35 | 09-06-2002 | 133,500 |
| 3096029 | 08-15-2003 | QCN | TELLEZ CIPRIANO | TELLEZ CIPRIANO & | 0.00 | 08-15-2003 | 0 |
| 3516981 | 11-13-2007 | QCN | TELLEZ CIPRIANO & | CHAPARRO JUAN M & | 0.00 | 10-06-2007 | 0 |
| 3921101 | 04-01-2013 | PTDE | CHAPARRO JUAN M | JPMORGAN CHASE BANK NATIONAL ASSOCIATION | 0.00 | 03-29-2013 | 0 |
| 3921603 | 04-02-2013 | SWDN | JPMORGAN CHASE BANK NATIONAL ASSOCIATION | FEDERAL NATIONAL MORTGAGE ASSOCIATION | 0.00 | 03-21-2013 | 0 |
| 3979219 | 11-20-2013 | SWD | FEDERAL NATIONAL MORTGAGE ASSN | FERGUSON MARK | 9.75 | 11-18-2013 | 97,500 |
| 4050425 | 10-01-2014 | QCN | FERGUSON MARK | 3402 MAGNOLIA LLC | 0.00 | 10-01-2014 | 0 |
| 4791965 | 01-06-2022 | WD | 3402 MAGNOLIA LLC | LEWIS MIKELDI GRACE; CUNNINGHAM TRAVIS DONN | 36.00 | 12-30-2021 | 360,000 |
| 5028567 | 05-12-2025 | WD | LEWIS MIKELDI GRACE; CUNNINGHAM TRAVIS DONN | ADAMS JAMES JOSEPH | 38.50 | 05-09-2025 | 385,000 |
| 5033692 | 06-04-2025 | AFFD | LEWIS MIKELDI GRACE; CUNNINGHAM TRAVIS DONN | ADAMS JAMES JOSEPH | 0.00 | 06-02-2025 | 0 |
| X0009968 | 08-01-1984 | CON | CASTEEL TIMOTHY L | 3.80 | 08-01-1984 | 38,000 |
*If the hyperlink for the reception number does not work, try a manual search in the Clerk and Recorder records. Use the Grantor or Grantee in your search.
| Account | Parcel | Account Type | Tax Year | Buildings | Actual Value | Local Govt Assessed Value | School Assessed Value |
|---|---|---|---|---|---|---|---|
| R3788886 | 096119303002 | Residential | 2026 | 1 | 374,984 | 23,440 | 26,440 |
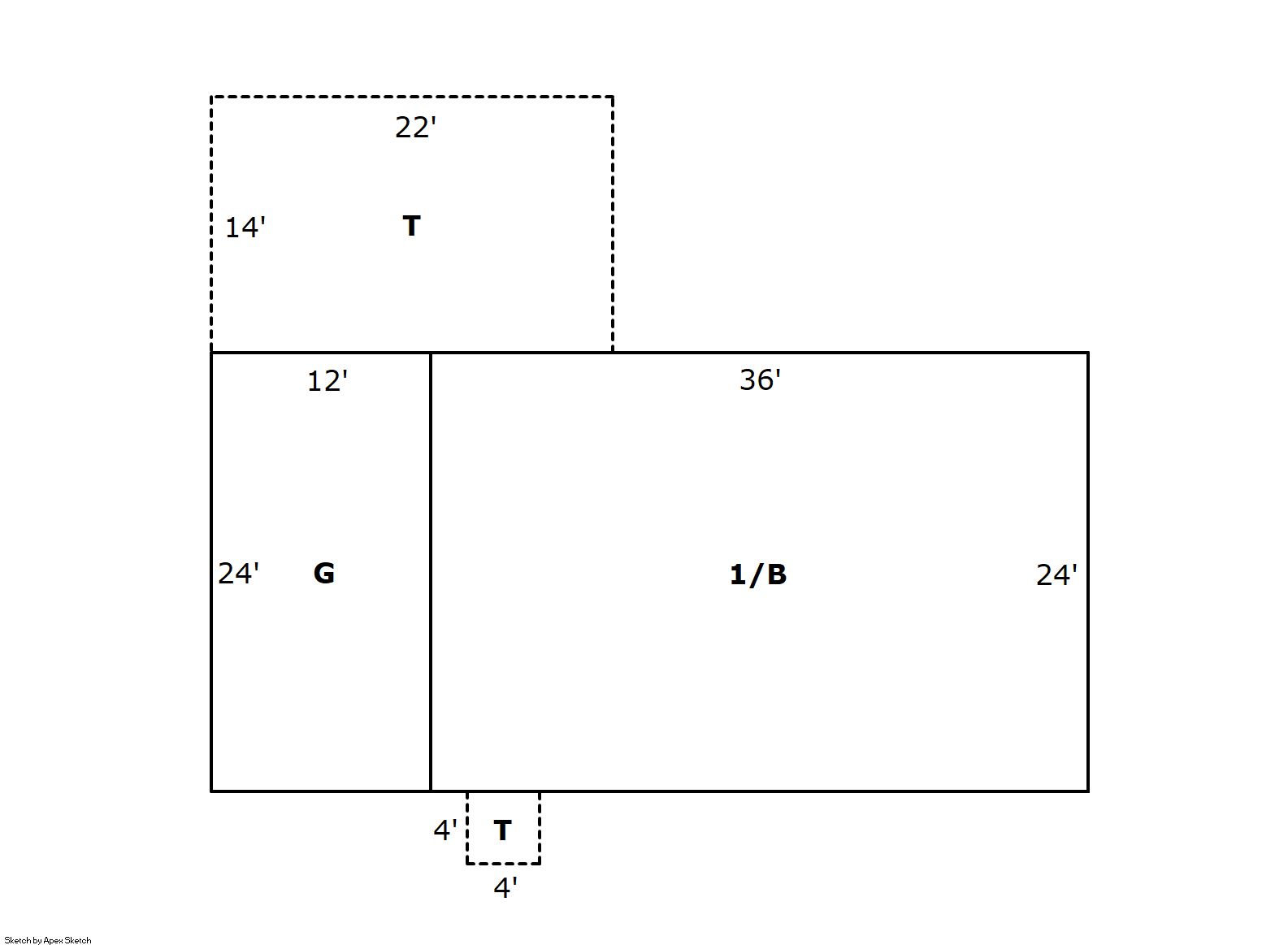
Building 1
| AccountNo | Building ID | Occupancy |
|---|---|---|
| R3788886 | 1 | Single Family Residential |
| ID | Type | NBHD | Occupancy | % Complete | Bedrooms | Baths |
|---|---|---|---|---|---|---|
| 1 | Residential | 6E0021 | Single Family Residential | 100 | 5 | 2.00 |
| ID | Exterior | Roof Cover | Interior | HVAC | Perimeter | Units | Unit Type | Make |
|---|---|---|---|---|---|---|---|---|
| 1 | Frame Hardboard | Composition Shingle | Drywall | Central Air to Air | 120 | 0 | NA | NA |
| ID | Square Ft | Condo SF | Total Basement SF | Finished Basement SF | Garage SF | Carport SF | Balcony SF | Porch SF |
|---|---|---|---|---|---|---|---|---|
| 1 | 864 | 0 | 864 | 864 | 288 | 0 | 0 | 324 |
| ID | Built As | Square Ft | Year Built | Stories | Length | Width |
|---|---|---|---|---|---|---|
| 1.00 | Ranch 1 Story | 864 | 1974 | 1 | 0 | 0 |
| ID | Detail Type | Description | Units |
|---|---|---|---|
| 1 | Basement | Finished | 864.00 |
| 1 | Basement | Total Basement SF | 864.00 |
| 1 | Fixture | Full Bath | 2.00 |
| 1 | Garage | Attached | 288.00 |
| 1 | Porch | Open Slab | 324.00 |
| Account | Parcel | Account Type | Tax Year | Buildings | Actual Value | Local Govt Assessed Value | School Assessed Value |
|---|---|---|---|---|---|---|---|
| R3788886 | 096119303002 | Residential | 2026 | 1 | 374,984 | 23,440 | 26,440 |
| Type | Code | Description | Actual Value | Local Govt Assessed Value | School Assessed Value | Acres | Land SqFt |
|---|---|---|---|---|---|---|---|
| Improvement | 1212 | SINGLE FAMILY RESIDENTIAL IMPROVEMENTS | 314,984 | 19,690 | 22,210 | 0.000 | 0 |
| Land | 1112 | SINGLE FAMILY RESIDENTIAL-LAND | 60,000 | 3,750 | 4,230 | 0.155 | 6,747 |
| Totals | - | - | 374,984 | 23,440 | 26,440 | 0.155 | 6,747 |
Comparable sales for your Residential or Commercial property may be found using our SALES SEARCH TOOL
Values are updated annually on May 1st for Real Property and June 15th for Personal Property and Oil and Gas.
| Account | Parcel | Account Type | Tax Year | Buildings | Actual Value | Local Govt Assessed Value | School Assessed Value |
|---|---|---|---|---|---|---|---|
| R3788886 | 096119303002 | Residential | 2026 | 1 | 374,984 | 23,440 | 26,440 |
| Tax Area | District ID | District Name | Local Govt Mill Levy |
School Mill Levy |
Estimated Taxes |
|---|---|---|---|---|---|
| 0650 | 0700 | AIMS JUNIOR COLLEGE | 6.313 | 0.000 | $147.98 |
| 0650 | 0405 | EVANS CITY | 3.536 | 0.000 | $82.88 |
| 0650 | 0534 | EVANS FIRE | 15.500 | 0.000 | $363.32 |
| 0650 | 1050 | HIGH PLAINS LIBRARY | 3.044 | 0.000 | $71.35 |
| 0650 | 0301 | NORTHERN COLORADO WATER (NCW) | 1.000 | 0.000 | $23.44 |
| 0650 | 0206 | SCHOOL DIST 6-GREELEY | 0.000 | 47.615 | $1,258.94 |
| 0650 | 0100 | WELD COUNTY | 15.956 | 0.000 | $374.01 |
| Total | - | - | 45.349 | 47.615 | $2,321.92 |
The estimate of tax is based on the prior year mill levy and the 2025 projected assessment rates. Mill levies and tax estimates will be updated yearly on December 22nd for the current year. Additional information can be found at https://assessor.weld.gov


