Account: R3803605

April 1, 2026

Account Parcel Account Type Tax Year Buildings Actual Value Local Govt Assessed Value School Assessed Value
R3803605 080718101003 Residential 2026 1 628,384 39,270 44,300

Legal
WIN WP L3 BLK 1 WINDSHIRE PARK SUB

Subdivision Block Lot Land Economic Area
WINDSHIRE PARK SUB 1 3 WINDSHIRE PARK

Property Address Property City Section Township Range
659 CLARENDON DR WINDSOR 18 06 67




Account Parcel Account Type Tax Year Buildings Actual Value Local Govt Assessed Value School Assessed Value
R3803605 080718101003 Residential 2026 1 628,384 39,270 44,300

Account Owner Name Address
R3803605 HUSSAI ATHAR 659 CLARENDON DR WINDSOR, CO 805502820
R3803605 HUSSAIN STEFANIE D


Account Parcel Account Type Tax Year Buildings Actual Value Local Govt Assessed Value School Assessed Value
R3803605 080718101003 Residential 2026 1 628,384 39,270 44,300

Reception Rec Date Type Grantor Grantee Doc Fee Sale Date Sale Price
3294769 NA SUB SUBDIVISION WINDSHIRE PARK 0.00 NA 0
3337448 11-04-2005 WD WINDSOR FARM INVESTMENTS LLC WINDSHIRE GROUP DEVELOPMENT INC 554.30 10-31-2005 0
3337449 11-04-2005 WD WINDSHIRE GROUP DEVELOPMENT INC MELODY HOMES INC 602.50 11-02-2005 6,025,000
3917793 03-18-2013 SWD MELODY HOMES INC DAHLGREN JOSEPH P 34.25 03-15-2013 342,500
4110861 05-28-2015 WD DAHLGREN JOSEPH P; DAHLGREN ANDREA M HUSSAI ATHAR; HUSSAIN STEFANIE D 39.30 05-28-2015 393,000



Account Parcel Account Type Tax Year Buildings Actual Value Local Govt Assessed Value School Assessed Value
R3803605 080718101003 Residential 2026 1 628,384 39,270 44,300

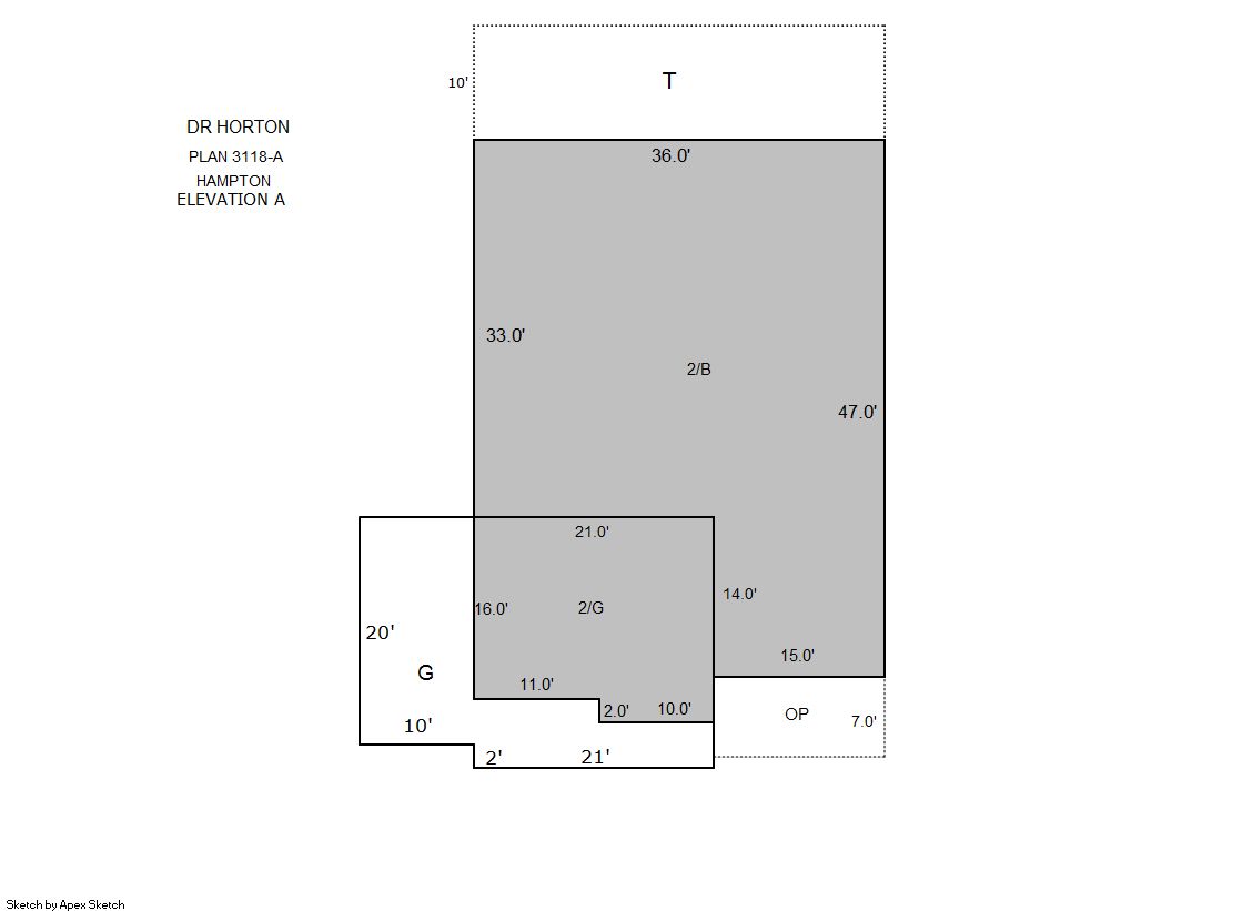
Building 1

AccountNo Building ID Occupancy
R3803605 1 Single Family Residential


ID Type NBHD Occupancy % Complete Bedrooms Baths
1 Residential 2W0016 Single Family Residential 100 4 4.00


ID Exterior Roof Cover Interior HVAC Perimeter Units Unit Type Make
1 Frame Siding Composition Shingle Drywall Central Air to Air 340 0 NA NA


ID Square Ft Condo SF Total Basement SF Finished Basement SF Garage SF Carport SF Balcony SF Porch SF
1 3,152 0 1,398 0 662 0 0 105


Built As Details for Building 1
ID Built As Square Ft Year Built Stories Length Width
1.00 2 Story 3,152 2012 2 0 0


Additional Details for Building 1
ID Detail Type Description Units
1 Add On Fireplace Gas 1.00
1 Basement Total Basement SF 1398.00
1 Fixture Full Bath 3.00
1 Fixture Half Bath 1.00
1 Garage Attached 662.00
1 Porch Open Slab 360.00
1 Porch Slab Roof Ceil 105.00
1 Rough In Rough In 1.00





Account Parcel Account Type Tax Year Buildings Actual Value Local Govt Assessed Value School Assessed Value
R3803605 080718101003 Residential 2026 1 628,384 39,270 44,300

Type Code Description Actual Value Local Govt Assessed Value School Assessed Value Acres Land SqFt
Improvement 1212 SINGLE FAMILY RESIDENTIAL IMPROVEMENTS 523,384 32,710 36,900 0.000 0
Land 1112 SINGLE FAMILY RESIDENTIAL-LAND 105,000 6,560 7,400 0.164 7,150
Totals - - 628,384 39,270 44,300 0.164 7,150


Account Parcel Account Type Tax Year Buildings Actual Value Local Govt Assessed Value School Assessed Value
R3803605 080718101003 Residential 2026 1 628,384 39,270 44,300

Tax Area District ID District Name Local Govt
Mill Levy
School
Mill Levy
Estimated
Taxes
3480 0700 AIMS JUNIOR COLLEGE 6.313 0.000 $247.91
3480 1051 CLEARVIEW LIBRARY 3.546 0.000 $139.25
3480 0304 NORTH WELD COUNTY WATER (NWC) 0.000 0.000 $0.00
3480 0301 NORTHERN COLORADO WATER (NCW) 1.000 0.000 $39.27
3480 0204 SCHOOL DIST RE4-WINDSOR 0.000 46.646 $2,066.42
3480 0100 WELD COUNTY 15.956 0.000 $626.59
3480 1200 WEST GREELEY CONSERVATION 0.414 0.000 $16.26
3480 1386 WINDSHIRE PARK METRO 2 38.695 0.000 $1,519.55
3480 0428 WINDSOR TOWN 12.030 0.000 $472.42
3480 0521 WINDSOR-SEVERANCE FIRE 8.535 0.000 $335.17
Total - - 86.489 46.646 $5,462.84


The estimate of tax is based on the prior year mill levy and the 2025 projected assessment rates. Mill levies and tax estimates will be updated yearly on December 22nd for the current year. Additional information can be found at https://assessor.weld.gov










Select Reports to Print: