Account: R3815005
April 2, 2026
| Account | Parcel | Account Type | Tax Year | Buildings | Actual Value | Local Govt Assessed Value | School Assessed Value |
|---|---|---|---|---|---|---|---|
| R3815005 | 080718104016 | Residential | 2026 | 1 | 549,183 | 34,320 | 38,710 |
| Legal |
|---|
| WIN WP L16 BLK 4 WINDSHIRE PARK SUB |
| Subdivision | Block | Lot | Land Economic Area |
|---|---|---|---|
| WINDSHIRE PARK SUB | 4 | 16 | WINDSHIRE PARK |
| Property Address | Property City | Section | Township | Range |
|---|---|---|---|---|
| 604 BOTLEY DR | WINDSOR | 18 | 06 | 67 |
| Account | Parcel | Account Type | Tax Year | Buildings | Actual Value | Local Govt Assessed Value | School Assessed Value |
|---|---|---|---|---|---|---|---|
| R3815005 | 080718104016 | Residential | 2026 | 1 | 549,183 | 34,320 | 38,710 |
| Account | Owner Name | Address |
|---|---|---|
| R3815005 | BEHRLE GARY J | 604 BOTLEY DR WINDSOR, CO 805502856 |
| R3815005 | BEHRLE ADAM F | |
| R3815005 | BEHRLE RUTH O | |
| R3815005 | CAYLOR CHRISTOPHER S | |
| R3815005 | ENGLES MEREDITH E | |
| R3815005 | MCNATT LINDSAY R |
| Account | Parcel | Account Type | Tax Year | Buildings | Actual Value | Local Govt Assessed Value | School Assessed Value |
|---|---|---|---|---|---|---|---|
| R3815005 | 080718104016 | Residential | 2026 | 1 | 549,183 | 34,320 | 38,710 |
| Reception | Rec Date | Type | Grantor | Grantee | Doc Fee | Sale Date | Sale Price |
|---|---|---|---|---|---|---|---|
| 3294769 | NA | SUB | SUBDIVISION | WINDSHIRE PARK | 0.00 | NA | 0 |
| 3337448 | 11-04-2005 | WD | WINDSOR FARM INVESTMENTS LLC | WINDSHIRE GROUP DEVELOPMENT INC | 554.30 | 10-31-2005 | 0 |
| 3337449 | 11-04-2005 | WD | WINDSHIRE GROUP DEVELOPMENT INC | MELODY HOMES INC | 602.50 | 11-02-2005 | 6,025,000 |
| 3666040 | 12-21-2009 | SWD | MELODY HOMES INC | LILLY JAMES W | 26.79 | 12-14-2009 | 267,900 |
| 3720351 | 09-23-2010 | SWDN | MELODY HOMES INC | LILLY JAMES W | 0.00 | 09-23-2010 | 0 |
| 3865983 | 08-15-2012 | DTHC | LILLY JAMES WILLIAM | LILLY JAMES WILLIAM | 0.00 | 05-22-2012 | 0 |
| 3865984 | 08-15-2012 | AFFD | KOENTOPP RICHARD A | LILLY JAMES WILLIAM | 0.00 | 05-22-2012 | 0 |
| 3865985 | 08-15-2012 | WDE | LILLY JOYCE A | BEHRLE GARY J | 28.99 | 08-10-2012 | 289,900 |
| 3904291 | 01-21-2013 | BN | BEHRLE GARY J | BEHRLE ADAM F | 0.00 | 01-08-2013 | 0 |
| 4998897 | 12-09-2024 | BN | BEHRLE GARY J; BEHRLE RUTH O | BEHRLE ADAM F; MCNATT LINDSAY R; CAYLOR CHRISTOPHER S | 0.00 | 12-05-2024 | 0 |
*If the hyperlink for the reception number does not work, try a manual search in the Clerk and Recorder records. Use the Grantor or Grantee in your search.
| Account | Parcel | Account Type | Tax Year | Buildings | Actual Value | Local Govt Assessed Value | School Assessed Value |
|---|---|---|---|---|---|---|---|
| R3815005 | 080718104016 | Residential | 2026 | 1 | 549,183 | 34,320 | 38,710 |
Building 1
| AccountNo | Building ID | Occupancy |
|---|---|---|
| R3815005 | 1 | Single Family Residential |
| ID | Type | NBHD | Occupancy | % Complete | Bedrooms | Baths |
|---|---|---|---|---|---|---|
| 1 | Residential | 2W0016 | Single Family Residential | 100 | 3 | 2.00 |
| ID | Exterior | Roof Cover | Interior | HVAC | Perimeter | Units | Unit Type | Make |
|---|---|---|---|---|---|---|---|---|
| 1 | Frame Hardboard | Composition Shingle | Drywall | Central Air to Air | 0 | 0 | NA | NA |
| ID | Square Ft | Condo SF | Total Basement SF | Finished Basement SF | Garage SF | Carport SF | Balcony SF | Porch SF |
|---|---|---|---|---|---|---|---|---|
| 1 | 1,930 | 0 | 1,930 | 0 | 640 | 0 | 112 | 188 |
| ID | Built As | Square Ft | Year Built | Stories | Length | Width |
|---|---|---|---|---|---|---|
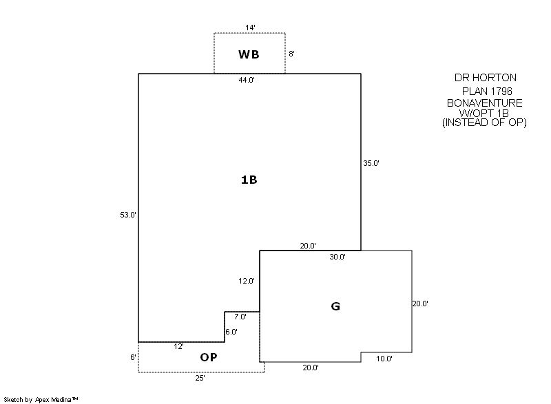
| 1.00 | Ranch 1 Story | 1,930 | 2009 | 1 | 0 | 0 |
| ID | Detail Type | Description | Units |
|---|---|---|---|
| 1 | Add On | Fireplace Gas | 1.00 |
| 1 | Balcony | Wood Wood Fin | 112.00 |
| 1 | Basement | Total Basement SF | 1930.00 |
| 1 | Fixture | Full Bath | 2.00 |
| 1 | Garage | Attached | 640.00 |
| 1 | Porch | Slab Roof Ceil | 188.00 |
| 1 | Rough In | Rough In | 1.00 |
| Account | Parcel | Account Type | Tax Year | Buildings | Actual Value | Local Govt Assessed Value | School Assessed Value |
|---|---|---|---|---|---|---|---|
| R3815005 | 080718104016 | Residential | 2026 | 1 | 549,183 | 34,320 | 38,710 |
| Type | Code | Description | Actual Value | Local Govt Assessed Value | School Assessed Value | Acres | Land SqFt |
|---|---|---|---|---|---|---|---|
| Improvement | 1212 | SINGLE FAMILY RESIDENTIAL IMPROVEMENTS | 444,183 | 27,760 | 31,310 | 0.000 | 0 |
| Land | 1112 | SINGLE FAMILY RESIDENTIAL-LAND | 105,000 | 6,560 | 7,400 | 0.177 | 7,721 |
| Totals | - | - | 549,183 | 34,320 | 38,710 | 0.177 | 7,721 |
Comparable sales for your Residential or Commercial property may be found using our SALES SEARCH TOOL
Values are updated annually on May 1st for Real Property and June 15th for Personal Property and Oil and Gas.
| Account | Parcel | Account Type | Tax Year | Buildings | Actual Value | Local Govt Assessed Value | School Assessed Value |
|---|---|---|---|---|---|---|---|
| R3815005 | 080718104016 | Residential | 2026 | 1 | 549,183 | 34,320 | 38,710 |
| Tax Area | District ID | District Name | Local Govt Mill Levy |
School Mill Levy |
Estimated Taxes |
|---|---|---|---|---|---|
| 3480 | 0700 | AIMS JUNIOR COLLEGE | 6.313 | 0.000 | $216.66 |
| 3480 | 1051 | CLEARVIEW LIBRARY | 3.546 | 0.000 | $121.70 |
| 3480 | 0304 | NORTH WELD COUNTY WATER (NWC) | 0.000 | 0.000 | $0.00 |
| 3480 | 0301 | NORTHERN COLORADO WATER (NCW) | 1.000 | 0.000 | $34.32 |
| 3480 | 0204 | SCHOOL DIST RE4-WINDSOR | 0.000 | 46.646 | $1,805.67 |
| 3480 | 0100 | WELD COUNTY | 15.956 | 0.000 | $547.61 |
| 3480 | 1200 | WEST GREELEY CONSERVATION | 0.414 | 0.000 | $14.21 |
| 3480 | 1386 | WINDSHIRE PARK METRO 2 | 38.695 | 0.000 | $1,328.01 |
| 3480 | 0428 | WINDSOR TOWN | 12.030 | 0.000 | $412.87 |
| 3480 | 0521 | WINDSOR-SEVERANCE FIRE | 8.535 | 0.000 | $292.92 |
| Total | - | - | 86.489 | 46.646 | $4,773.97 |
The estimate of tax is based on the prior year mill levy and the 2025 projected assessment rates. Mill levies and tax estimates will be updated yearly on December 22nd for the current year. Additional information can be found at https://assessor.weld.gov



