Account: R3816505

April 1, 2026

Account Parcel Account Type Tax Year Buildings Actual Value Local Govt Assessed Value School Assessed Value
R3816505 080718105005 Residential 2026 1 594,389 37,150 41,900

Legal
WIN WP L5 BLK 5 WINDSHIRE PARK SUB

Subdivision Block Lot Land Economic Area
WINDSHIRE PARK SUB 5 5 WINDSHIRE PARK

Property Address Property City Section Township Range
1660 CHELMSFORD CT WINDSOR 18 06 67




Account Parcel Account Type Tax Year Buildings Actual Value Local Govt Assessed Value School Assessed Value
R3816505 080718105005 Residential 2026 1 594,389 37,150 41,900

Account Owner Name Address
R3816505 HILL MATHEW B 1660 CHELMS FORD CT WINDSOR, CO 805508805
R3816505 HILL NICHOLE M


Account Parcel Account Type Tax Year Buildings Actual Value Local Govt Assessed Value School Assessed Value
R3816505 080718105005 Residential 2026 1 594,389 37,150 41,900

Reception Rec Date Type Grantor Grantee Doc Fee Sale Date Sale Price
3294769 NA SUB SUBDIVISION WINDSHIRE PARK 0.00 NA 0
3337448 11-04-2005 WD WINDSOR FARM INVESTMENTS LLC WINDSHIRE GROUP DEVELOPMENT INC 554.30 10-31-2005 0
3337449 11-04-2005 WD WINDSHIRE GROUP DEVELOPMENT INC MELODY HOMES INC 602.50 11-02-2005 6,025,000
3821409 01-31-2012 SWD MELODY HOMES INC HILL MATHEW B 28.20 01-26-2012 282,000



Account Parcel Account Type Tax Year Buildings Actual Value Local Govt Assessed Value School Assessed Value
R3816505 080718105005 Residential 2026 1 594,389 37,150 41,900

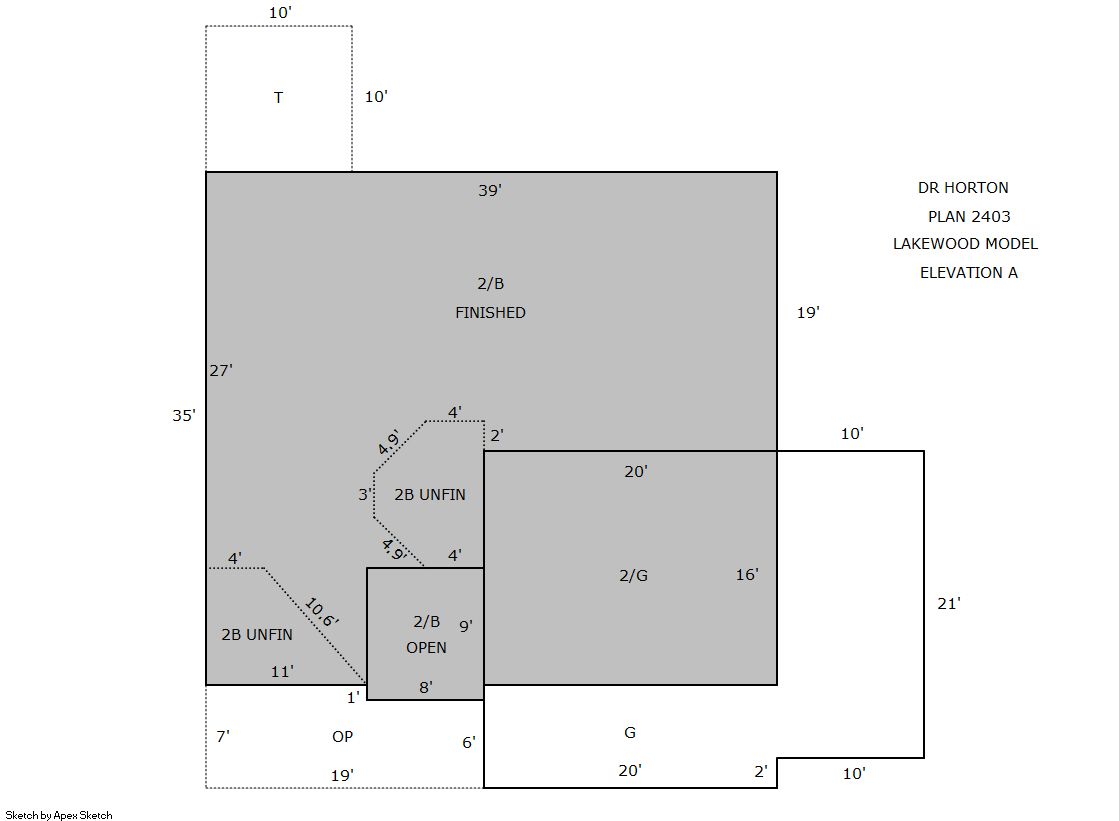
Building 1

AccountNo Building ID Occupancy
R3816505 1 Single Family Residential


ID Type NBHD Occupancy % Complete Bedrooms Baths
1 Residential 2W0016 Single Family Residential 100 5 4.00


ID Exterior Roof Cover Interior HVAC Perimeter Units Unit Type Make
1 Frame Hardboard Composition Shingle Drywall Forced Air 334 0 NA NA


ID Square Ft Condo SF Total Basement SF Finished Basement SF Garage SF Carport SF Balcony SF Porch SF
1 2,354 0 1,053 930 670 0 0 100


Built As Details for Building 1
ID Built As Square Ft Year Built Stories Length Width
1.00 2 Story 2,354 2011 2 0 0


Additional Details for Building 1
ID Detail Type Description Units
1 Add On Fireplace Gas 1.00
1 Basement Finished 930.00
1 Basement Total Basement SF 1053.00
1 Fixture Full Bath 4.00
1 Fixture Wet Bar 1.00
1 Garage Attached 670.00
1 Porch Open Slab 100.00
1 Porch Slab Roof Ceil 125.00





Account Parcel Account Type Tax Year Buildings Actual Value Local Govt Assessed Value School Assessed Value
R3816505 080718105005 Residential 2026 1 594,389 37,150 41,900

Type Code Description Actual Value Local Govt Assessed Value School Assessed Value Acres Land SqFt
Improvement 1212 SINGLE FAMILY RESIDENTIAL IMPROVEMENTS 489,389 30,590 34,500 0.000 0
Land 1112 SINGLE FAMILY RESIDENTIAL-LAND 105,000 6,560 7,400 0.184 8,014
Totals - - 594,389 37,150 41,900 0.184 8,014


Account Parcel Account Type Tax Year Buildings Actual Value Local Govt Assessed Value School Assessed Value
R3816505 080718105005 Residential 2026 1 594,389 37,150 41,900

Tax Area District ID District Name Local Govt
Mill Levy
School
Mill Levy
Estimated
Taxes
3480 0700 AIMS JUNIOR COLLEGE 6.313 0.000 $234.53
3480 1051 CLEARVIEW LIBRARY 3.546 0.000 $131.73
3480 0304 NORTH WELD COUNTY WATER (NWC) 0.000 0.000 $0.00
3480 0301 NORTHERN COLORADO WATER (NCW) 1.000 0.000 $37.15
3480 0204 SCHOOL DIST RE4-WINDSOR 0.000 46.646 $1,954.47
3480 0100 WELD COUNTY 15.956 0.000 $592.77
3480 1200 WEST GREELEY CONSERVATION 0.414 0.000 $15.38
3480 1386 WINDSHIRE PARK METRO 2 38.695 0.000 $1,437.52
3480 0428 WINDSOR TOWN 12.030 0.000 $446.91
3480 0521 WINDSOR-SEVERANCE FIRE 8.535 0.000 $317.08
Total - - 86.489 46.646 $5,167.53


The estimate of tax is based on the prior year mill levy and the 2025 projected assessment rates. Mill levies and tax estimates will be updated yearly on December 22nd for the current year. Additional information can be found at https://assessor.weld.gov










Select Reports to Print: