Account: R3817086
April 1, 2026
| Account | Parcel | Account Type | Tax Year | Buildings | Actual Value | Local Govt Assessed Value | School Assessed Value |
|---|---|---|---|---|---|---|---|
| R3817086 | 096119405025 | Residential | 2026 | 1 | 369,821 | 23,110 | 26,070 |
| Legal |
|---|
| EVS 2SE4-7 L7 BLK4 SUNDOWN ESTATES 2ND FILING |
| Subdivision | Block | Lot | Land Economic Area |
|---|---|---|---|
| SUNDOWN ESTATES 2ND FG | 4 | 7 | SUNDOWN ESTATES |
| Property Address | Property City | Section | Township | Range |
|---|---|---|---|---|
| 3301 VALMONT ST | EVANS | 19 | 05 | 65 |
| Account | Parcel | Account Type | Tax Year | Buildings | Actual Value | Local Govt Assessed Value | School Assessed Value |
|---|---|---|---|---|---|---|---|
| R3817086 | 096119405025 | Residential | 2026 | 1 | 369,821 | 23,110 | 26,070 |
| Account | Owner Name | Address |
|---|---|---|
| R3817086 | ALFONSO ANA BEATRIZ REZA | 518 LOWLAND ST SEVERANCE, CO 805503819 |
| Account | Parcel | Account Type | Tax Year | Buildings | Actual Value | Local Govt Assessed Value | School Assessed Value |
|---|---|---|---|---|---|---|---|
| R3817086 | 096119405025 | Residential | 2026 | 1 | 369,821 | 23,110 | 26,070 |
| Reception | Rec Date | Type | Grantor | Grantee | Doc Fee | Sale Date | Sale Price |
|---|---|---|---|---|---|---|---|
| 01840773 | 11-05-1980 | WDN | 0.00 | 01-01-1900 | 0 | ||
| 1775739 | NA | SUB | SUBDIVISION | SUNDOWN ESTATES 2ND FG | 0.00 | NA | 0 |
| 2200547 | 12-18-1989 | WD | HEDBERG WILLIAM J | DE PRIEST CHARLES C & | 6.20 | 12-15-1989 | 62,000 |
| 2385476 | 04-26-1994 | WD | DE PRIEST CHARLES C & | OCONNELL JAMES & CORRINE | 8.95 | 04-25-1994 | 89,500 |
| 2432194 | 03-30-1995 | WD | O'CONNELL JAMES & CORRINE | REZA VICTOR H & ROSA MARIA | 9.05 | 03-27-1995 | 90,500 |
| 3953799 | 08-06-2013 | QCN | REZA VICTOR H | REZA VICTOR | 0.00 | 08-06-2013 | 0 |
| 4208411 | 06-02-2016 | QC | REZA VICTOR | VALENZUELA MARCO A JR | 1.20 | 06-02-2016 | 12,000 |
| 4250977 | 11-04-2016 | QC | VALENZUELA MARCO A JR | REZA VICTOR H ; REZA ROSA MARIA ALFONZO DE | 1.92 | 11-03-2016 | 19,200 |
| 4760104 | 09-27-2021 | QCN | REZA VICTOR H; REZA ROSA MARIA ALFONZO DE | ALFONSO ANA BEATRIZ REZA | 0.00 | 09-27-2021 | 0 |
*If the hyperlink for the reception number does not work, try a manual search in the Clerk and Recorder records. Use the Grantor or Grantee in your search.
| Account | Parcel | Account Type | Tax Year | Buildings | Actual Value | Local Govt Assessed Value | School Assessed Value |
|---|---|---|---|---|---|---|---|
| R3817086 | 096119405025 | Residential | 2026 | 1 | 369,821 | 23,110 | 26,070 |
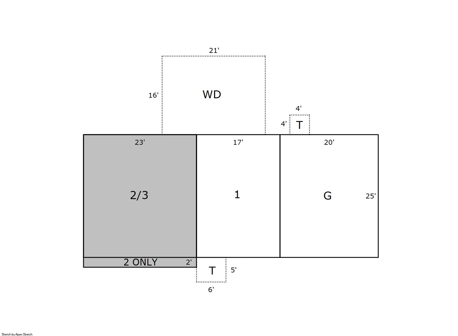
Building 1
| AccountNo | Building ID | Occupancy |
|---|---|---|
| R3817086 | 1 | Single Family Residential |
| ID | Type | NBHD | Occupancy | % Complete | Bedrooms | Baths |
|---|---|---|---|---|---|---|
| 1 | Residential | 6E0020 | Single Family Residential | 100 | 3 | 2.00 |
| ID | Exterior | Roof Cover | Interior | HVAC | Perimeter | Units | Unit Type | Make |
|---|---|---|---|---|---|---|---|---|
| 1 | Frame Hardboard | Composition Shingle | Drywall | Central Air to Air | 280 | 0 | NA | NA |
| ID | Square Ft | Condo SF | Total Basement SF | Finished Basement SF | Garage SF | Carport SF | Balcony SF | Porch SF |
|---|---|---|---|---|---|---|---|---|
| 1 | 1,621 | 0 | 0 | 0 | 500 | 0 | 0 | 46 |
| ID | Built As | Square Ft | Year Built | Stories | Length | Width |
|---|---|---|---|---|---|---|
| 1.00 | Split Level | 1,621 | 1980 | 1 | 0 | 0 |
| ID | Detail Type | Description | Units |
|---|---|---|---|
| 1 | Add On | Shed Alumium | 1.00 |
| 1 | Fixture | Full Bath | 1.00 |
| 1 | Fixture | Half Bath | 1.00 |
| 1 | Garage | Attached | 500.00 |
| 1 | Porch | Open Slab | 46.00 |
| 1 | Porch | Wood Deck | 336.00 |
| Account | Parcel | Account Type | Tax Year | Buildings | Actual Value | Local Govt Assessed Value | School Assessed Value |
|---|---|---|---|---|---|---|---|
| R3817086 | 096119405025 | Residential | 2026 | 1 | 369,821 | 23,110 | 26,070 |
| Type | Code | Description | Actual Value | Local Govt Assessed Value | School Assessed Value | Acres | Land SqFt |
|---|---|---|---|---|---|---|---|
| Improvement | 1212 | SINGLE FAMILY RESIDENTIAL IMPROVEMENTS | 309,821 | 19,360 | 21,840 | 0.000 | 0 |
| Land | 1112 | SINGLE FAMILY RESIDENTIAL-LAND | 60,000 | 3,750 | 4,230 | 0.161 | 7,000 |
| Totals | - | - | 369,821 | 23,110 | 26,070 | 0.161 | 7,000 |
Comparable sales for your Residential or Commercial property may be found using our SALES SEARCH TOOL
Values are updated annually on May 1st for Real Property and June 15th for Personal Property and Oil and Gas.
| Account | Parcel | Account Type | Tax Year | Buildings | Actual Value | Local Govt Assessed Value | School Assessed Value |
|---|---|---|---|---|---|---|---|
| R3817086 | 096119405025 | Residential | 2026 | 1 | 369,821 | 23,110 | 26,070 |
| Tax Area | District ID | District Name | Local Govt Mill Levy |
School Mill Levy |
Estimated Taxes |
|---|---|---|---|---|---|
| 0650 | 0700 | AIMS JUNIOR COLLEGE | 6.313 | 0.000 | $145.89 |
| 0650 | 0405 | EVANS CITY | 3.536 | 0.000 | $81.72 |
| 0650 | 0534 | EVANS FIRE | 15.500 | 0.000 | $358.21 |
| 0650 | 1050 | HIGH PLAINS LIBRARY | 3.044 | 0.000 | $70.35 |
| 0650 | 0301 | NORTHERN COLORADO WATER (NCW) | 1.000 | 0.000 | $23.11 |
| 0650 | 0206 | SCHOOL DIST 6-GREELEY | 0.000 | 47.615 | $1,241.32 |
| 0650 | 0100 | WELD COUNTY | 15.956 | 0.000 | $368.74 |
| Total | - | - | 45.349 | 47.615 | $2,289.34 |
The estimate of tax is based on the prior year mill levy and the 2025 projected assessment rates. Mill levies and tax estimates will be updated yearly on December 22nd for the current year. Additional information can be found at https://assessor.weld.gov


