Account: R3817305

April 1, 2026

Account Parcel Account Type Tax Year Buildings Actual Value Local Govt Assessed Value School Assessed Value
R3817305 080718105013 Residential 2026 1 461,745 28,860 32,550

Legal
WIN WP L13 BLK 5 WINDSHIRE PARK SUB

Subdivision Block Lot Land Economic Area
WINDSHIRE PARK SUB 5 13 WINDSHIRE PARK

Property Address Property City Section Township Range
601 BOTLEY DR WINDSOR 18 06 67




Account Parcel Account Type Tax Year Buildings Actual Value Local Govt Assessed Value School Assessed Value
R3817305 080718105013 Residential 2026 1 461,745 28,860 32,550

Account Owner Name Address
R3817305 CHANDHARY JOINT TRUST 601 BOTLEY DR WINDSOR, CO 805502857


Account Parcel Account Type Tax Year Buildings Actual Value Local Govt Assessed Value School Assessed Value
R3817305 080718105013 Residential 2026 1 461,745 28,860 32,550

Reception Rec Date Type Grantor Grantee Doc Fee Sale Date Sale Price
3294769 NA SUB SUBDIVISION WINDSHIRE PARK 0.00 NA 0
3337448 11-04-2005 WD WINDSOR FARM INVESTMENTS LLC WINDSHIRE GROUP DEVELOPMENT INC 554.30 10-31-2005 0
3337449 11-04-2005 WD WINDSHIRE GROUP DEVELOPMENT INC MELODY HOMES INC 602.50 11-02-2005 6,025,000
3672875 01-29-2010 WD MELODY HOMES INC CHAUDHARY RAJNISH 21.40 01-29-2010 214,000
3720349 09-23-2010 SWDN MELODY HOMES INC CHAUDHARY RAJNISH 0.00 09-23-2010 0
4158466 11-16-2015 WDNE CHAUDHARY RAJNISH; CHANDRA ROMIKA CHANDHARY JOINT TRUST 0.00 10-17-2015 0
4360997 12-18-2017 QCN CHANDHARY JOINT TRUST CHANDRA ROMIKA 0.00 12-04-2017 0
4362007 12-21-2017 QCNE CHANDRA ROMIKA CHANDHARY JOINT TRUST 0.00 12-04-2017 0
4423824 08-17-2018 QCNE CHANDHARY JOINT TRUST CHANDRA ROMIKA 0.00 08-16-2018 0
4459174 01-10-2019 QCNE CHANDRA ROMIKA CHANDHARY JOINT TRUST 0.00 01-10-2019 0
4499015 06-20-2019 QCNE CHANDHARY JOINT TRUST CHANDRA ROMIKA 0.00 06-14-2019 0
4499339 06-21-2019 QCNE CHANDRA ROMIKA CHANDHARY JOINT TRUST 0.00 06-14-2019 0
4609249 07-16-2020 QCNE CHANDHARY JOINT TRUST CHANDRA ROMIKA 0.00 07-15-2020 0
4610380 07-20-2020 QCNE CHANDHARY JOINT TRUST CHANDRA ROMIKA 0.00 04-01-2020 0
4610382 07-20-2020 QCNE CHANDRA ROMIKA CHANDHARY JOINT TRUST 0.00 04-01-2020 0



Account Parcel Account Type Tax Year Buildings Actual Value Local Govt Assessed Value School Assessed Value
R3817305 080718105013 Residential 2026 1 461,745 28,860 32,550

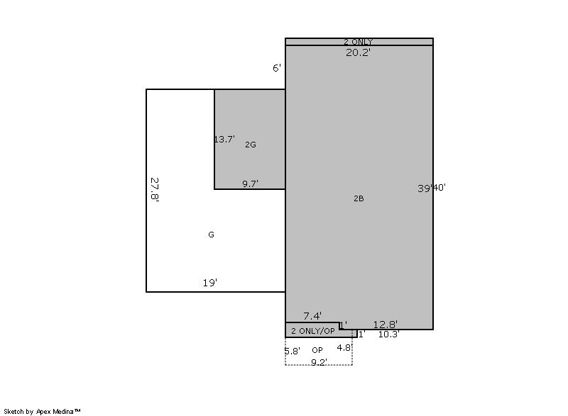
Building 1

AccountNo Building ID Occupancy
R3817305 1 Single Family Residential


ID Type NBHD Occupancy % Complete Bedrooms Baths
1 Residential 2W0016 Single Family Residential 100 4 3.00


ID Exterior Roof Cover Interior HVAC Perimeter Units Unit Type Make
1 Frame Hardboard Composition Shingle Drywall Forced Air 0 0 NA NA


ID Square Ft Condo SF Total Basement SF Finished Basement SF Garage SF Carport SF Balcony SF Porch SF
1 1,731 0 780 0 528 0 0 52


Built As Details for Building 1
ID Built As Square Ft Year Built Stories Length Width
1.00 2 Story 1,731 2009 1 0 0


Additional Details for Building 1
ID Detail Type Description Units
1 Basement Total Basement SF 780.00
1 Fixture Full Bath 2.00
1 Fixture Half Bath 1.00
1 Garage Attached 528.00
1 Porch Open Slab 52.00
1 Rough In Rough In 1.00





Account Parcel Account Type Tax Year Buildings Actual Value Local Govt Assessed Value School Assessed Value
R3817305 080718105013 Residential 2026 1 461,745 28,860 32,550

Type Code Description Actual Value Local Govt Assessed Value School Assessed Value Acres Land SqFt
Improvement 1212 SINGLE FAMILY RESIDENTIAL IMPROVEMENTS 356,745 22,300 25,150 0.000 0
Land 1112 SINGLE FAMILY RESIDENTIAL-LAND 105,000 6,560 7,400 0.194 8,441
Totals - - 461,745 28,860 32,550 0.194 8,441


Account Parcel Account Type Tax Year Buildings Actual Value Local Govt Assessed Value School Assessed Value
R3817305 080718105013 Residential 2026 1 461,745 28,860 32,550

Tax Area District ID District Name Local Govt
Mill Levy
School
Mill Levy
Estimated
Taxes
3480 0700 AIMS JUNIOR COLLEGE 6.313 0.000 $182.19
3480 1051 CLEARVIEW LIBRARY 3.546 0.000 $102.34
3480 0304 NORTH WELD COUNTY WATER (NWC) 0.000 0.000 $0.00
3480 0301 NORTHERN COLORADO WATER (NCW) 1.000 0.000 $28.86
3480 0204 SCHOOL DIST RE4-WINDSOR 0.000 46.646 $1,518.33
3480 0100 WELD COUNTY 15.956 0.000 $460.49
3480 1200 WEST GREELEY CONSERVATION 0.414 0.000 $11.95
3480 1386 WINDSHIRE PARK METRO 2 38.695 0.000 $1,116.74
3480 0428 WINDSOR TOWN 12.030 0.000 $347.19
3480 0521 WINDSOR-SEVERANCE FIRE 8.535 0.000 $246.32
Total - - 86.489 46.646 $4,014.40


The estimate of tax is based on the prior year mill levy and the 2025 projected assessment rates. Mill levies and tax estimates will be updated yearly on December 22nd for the current year. Additional information can be found at https://assessor.weld.gov










Select Reports to Print: