Account: R3894086
April 1, 2026
| Account | Parcel | Account Type | Tax Year | Buildings | Actual Value | Local Govt Assessed Value | School Assessed Value |
|---|---|---|---|---|---|---|---|
| R3894086 | 096120323010 | Residential | 2026 | 1 | 316,405 | 19,780 | 22,310 |
| Legal |
|---|
| EVS 13094-N W70' L8-9 BLK170 |
| Subdivision | Block | Lot | Land Economic Area |
|---|---|---|---|
| EVANS CITY | 170 | EVANS |
| Property Address | Property City | Section | Township | Range |
|---|---|---|---|---|
| 609 37TH ST | EVANS | 20 | 05 | 65 |
| Account | Parcel | Account Type | Tax Year | Buildings | Actual Value | Local Govt Assessed Value | School Assessed Value |
|---|---|---|---|---|---|---|---|
| R3894086 | 096120323010 | Residential | 2026 | 1 | 316,405 | 19,780 | 22,310 |
| Account | Owner Name | Address |
|---|---|---|
| R3894086 | AGUIRRE ISRAEL A | 609 37TH ST EVANS, CO 806202222 |
| R3894086 | MALDONADO JULIE DEAN |
| Account | Parcel | Account Type | Tax Year | Buildings | Actual Value | Local Govt Assessed Value | School Assessed Value |
|---|---|---|---|---|---|---|---|
| R3894086 | 096120323010 | Residential | 2026 | 1 | 316,405 | 19,780 | 22,310 |
| Reception | Rec Date | Type | Grantor | Grantee | Doc Fee | Sale Date | Sale Price |
|---|---|---|---|---|---|---|---|
| 3696958 | 06-02-2010 | PRD | DWIGGINS BERTHA HELEN | RADEMACHER HOLLY M | 8.50 | 05-25-2010 | 85,000 |
| 4024311 | 06-17-2014 | WD | RADEMACHER HOLLY M | FERNANDEZ MARIO A | 11.85 | 06-11-2014 | 118,500 |
| 41376 | NA | SUB | SUBDIVISION | EVANS CITY | 0.00 | NA | 0 |
| 4496642 | 06-12-2019 | WD | FERNANDEZ MARIO A | AGUIRRE ISRAEL A; MALDONADO JULIE DEAN | 23.00 | 06-11-2019 | 230,000 |
*If the hyperlink for the reception number does not work, try a manual search in the Clerk and Recorder records. Use the Grantor or Grantee in your search.
| Account | Parcel | Account Type | Tax Year | Buildings | Actual Value | Local Govt Assessed Value | School Assessed Value |
|---|---|---|---|---|---|---|---|
| R3894086 | 096120323010 | Residential | 2026 | 1 | 316,405 | 19,780 | 22,310 |
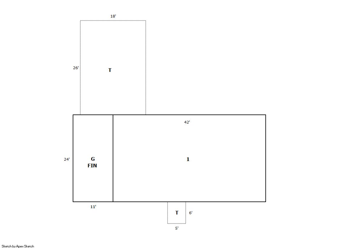
Building 1
| AccountNo | Building ID | Occupancy |
|---|---|---|
| R3894086 | 1 | Single Family Residential |
| ID | Type | NBHD | Occupancy | % Complete | Bedrooms | Baths |
|---|---|---|---|---|---|---|
| 1 | Residential | 6E0024 | Single Family Residential | 100 | 3 | 2.00 |
| ID | Exterior | Roof Cover | Interior | HVAC | Perimeter | Units | Unit Type | Make |
|---|---|---|---|---|---|---|---|---|
| 1 | Frame Siding | Composition Shingle | Drywall | Forced Air | 0 | 0 | NA | NA |
| ID | Square Ft | Condo SF | Total Basement SF | Finished Basement SF | Garage SF | Carport SF | Balcony SF | Porch SF |
|---|---|---|---|---|---|---|---|---|
| 1 | 1,008 | 0 | 0 | 0 | 264 | 0 | 0 | 498 |
| ID | Built As | Square Ft | Year Built | Stories | Length | Width |
|---|---|---|---|---|---|---|
| 1.00 | Ranch 1 Story | 1,008 | 1954 | 1 | 0 | 0 |
| ID | Detail Type | Description | Units |
|---|---|---|---|
| 1 | Fixture | Full Bath | 1.00 |
| 1 | Fixture | Half Bath | 1.00 |
| 1 | Garage | Attached | 264.00 |
| 1 | Porch | Open Slab | 498.00 |
| Account | Parcel | Account Type | Tax Year | Buildings | Actual Value | Local Govt Assessed Value | School Assessed Value |
|---|---|---|---|---|---|---|---|
| R3894086 | 096120323010 | Residential | 2026 | 1 | 316,405 | 19,780 | 22,310 |
| Type | Code | Description | Actual Value | Local Govt Assessed Value | School Assessed Value | Acres | Land SqFt |
|---|---|---|---|---|---|---|---|
| Improvement | 1212 | SINGLE FAMILY RESIDENTIAL IMPROVEMENTS | 260,405 | 16,280 | 18,360 | 0.000 | 0 |
| Land | 1112 | SINGLE FAMILY RESIDENTIAL-LAND | 56,000 | 3,500 | 3,950 | 0.161 | 7,000 |
| Totals | - | - | 316,405 | 19,780 | 22,310 | 0.161 | 7,000 |
Comparable sales for your Residential or Commercial property may be found using our SALES SEARCH TOOL
Values are updated annually on May 1st for Real Property and June 15th for Personal Property and Oil and Gas.
| Account | Parcel | Account Type | Tax Year | Buildings | Actual Value | Local Govt Assessed Value | School Assessed Value |
|---|---|---|---|---|---|---|---|
| R3894086 | 096120323010 | Residential | 2026 | 1 | 316,405 | 19,780 | 22,310 |
| Tax Area | District ID | District Name | Local Govt Mill Levy |
School Mill Levy |
Estimated Taxes |
|---|---|---|---|---|---|
| 0650 | 0700 | AIMS JUNIOR COLLEGE | 6.313 | 0.000 | $124.87 |
| 0650 | 0405 | EVANS CITY | 3.536 | 0.000 | $69.94 |
| 0650 | 0534 | EVANS FIRE | 15.500 | 0.000 | $306.59 |
| 0650 | 1050 | HIGH PLAINS LIBRARY | 3.044 | 0.000 | $60.21 |
| 0650 | 0301 | NORTHERN COLORADO WATER (NCW) | 1.000 | 0.000 | $19.78 |
| 0650 | 0206 | SCHOOL DIST 6-GREELEY | 0.000 | 47.615 | $1,062.29 |
| 0650 | 0100 | WELD COUNTY | 15.956 | 0.000 | $315.61 |
| Total | - | - | 45.349 | 47.615 | $1,959.29 |
The estimate of tax is based on the prior year mill levy and the 2025 projected assessment rates. Mill levies and tax estimates will be updated yearly on December 22nd for the current year. Additional information can be found at https://assessor.weld.gov



