Account: R3951105
April 4, 2026
| Account | Parcel | Account Type | Tax Year | Buildings | Actual Value | Local Govt Assessed Value | School Assessed Value |
|---|---|---|---|---|---|---|---|
| R3951105 | 146701117017 | Residential | 2026 | 1 | 464,020 | 29,000 | 32,710 |
| Legal |
|---|
| DAC 3SS L17 BLK4 SHARPE SUB 3FG |
| Subdivision | Block | Lot | Land Economic Area |
|---|---|---|---|
| SHARPE SUB 3RD FG FINAL PLAT | 4 | 17 | SHARPE |
| Property Address | Property City | Section | Township | Range |
|---|---|---|---|---|
| 520 DUKES WAY | DACONO | 01 | 01 | 68 |
| Account | Parcel | Account Type | Tax Year | Buildings | Actual Value | Local Govt Assessed Value | School Assessed Value |
|---|---|---|---|---|---|---|---|
| R3951105 | 146701117017 | Residential | 2026 | 1 | 464,020 | 29,000 | 32,710 |
| Account | Owner Name | Address |
|---|---|---|
| R3951105 | CAMPION JANET G | 520 DUKES WAY DACONO, CO 805145014 |
| Account | Parcel | Account Type | Tax Year | Buildings | Actual Value | Local Govt Assessed Value | School Assessed Value |
|---|---|---|---|---|---|---|---|
| R3951105 | 146701117017 | Residential | 2026 | 1 | 464,020 | 29,000 | 32,710 |
| Reception | Rec Date | Type | Grantor | Grantee | Doc Fee | Sale Date | Sale Price |
|---|---|---|---|---|---|---|---|
| 3321875 | NA | SUB | SUBDIVISION | SHARPE 3RD FG | 0.00 | NA | 0 |
| 3622171 | 05-12-2009 | BSDN | SHARP LLC | CAPFINANCIAL PROPERTIES CV2 LLC | 0.00 | 05-05-2009 | 0 |
| 3896011 | 12-14-2012 | SWD | CAPFINANCIAL PROPERTIES CV3 LLC | HWL SHARPE FARMS LLC | 160.00 | 12-12-2012 | 1,600,000 |
| 4123610 | 07-10-2015 | SWD | HWL SHARPE FARMS LLC | LGI HOMES-COLORADO LLC | 273.60 | 07-02-2015 | 2,736,000 |
| 4182895 | 02-23-2016 | SWD | LGI HOMES-COLORADO LLC | CAMPION JANET G | 29.19 | 01-22-2016 | 291,900 |
*If the hyperlink for the reception number does not work, try a manual search in the Clerk and Recorder records. Use the Grantor or Grantee in your search.
| Account | Parcel | Account Type | Tax Year | Buildings | Actual Value | Local Govt Assessed Value | School Assessed Value |
|---|---|---|---|---|---|---|---|
| R3951105 | 146701117017 | Residential | 2026 | 1 | 464,020 | 29,000 | 32,710 |
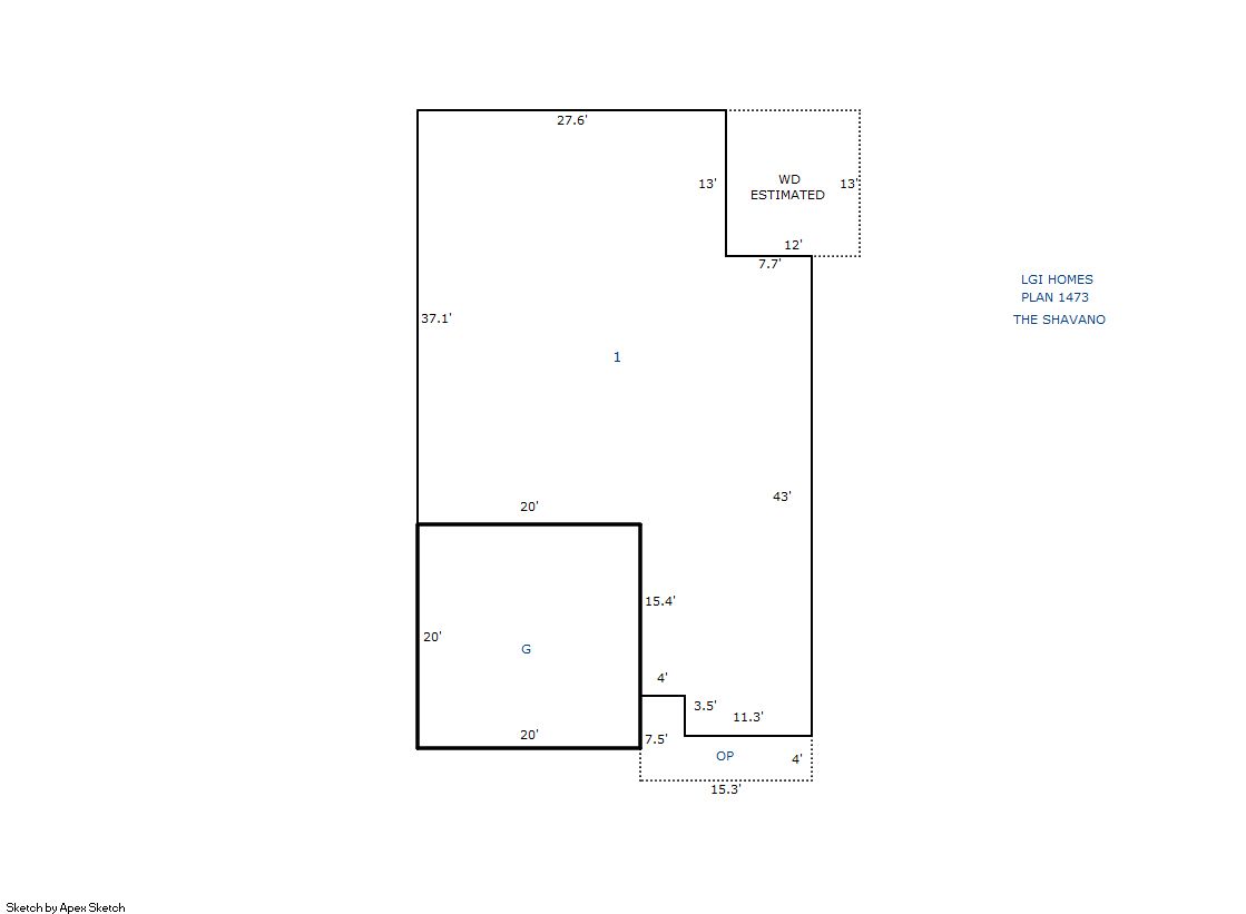
Building 1
| AccountNo | Building ID | Occupancy |
|---|---|---|
| R3951105 | 1 | Single Family Residential |
| ID | Type | NBHD | Occupancy | % Complete | Bedrooms | Baths |
|---|---|---|---|---|---|---|
| 1 | Residential | 3D3003 | Single Family Residential | 100 | 3 | 2.00 |
| ID | Exterior | Roof Cover | Interior | HVAC | Perimeter | Units | Unit Type | Make |
|---|---|---|---|---|---|---|---|---|
| 1 | Frame Siding | Composition Shingle | Drywall | Central Air to Air | 183 | 0 | NA | NA |
| ID | Square Ft | Condo SF | Total Basement SF | Finished Basement SF | Garage SF | Carport SF | Balcony SF | Porch SF |
|---|---|---|---|---|---|---|---|---|
| 1 | 1,485 | 0 | 0 | 0 | 400 | 0 | 0 | 75 |
| ID | Built As | Square Ft | Year Built | Stories | Length | Width |
|---|---|---|---|---|---|---|
| 1.00 | Ranch 1 Story | 1,485 | 2015 | 1 | 0 | 0 |
| ID | Detail Type | Description | Units |
|---|---|---|---|
| 1 | Fixture | Full Bath | 2.00 |
| 1 | Garage | Attached | 400.00 |
| 1 | Porch | Slab Roof Ceil | 75.00 |
| 1 | Porch | Wood Deck | 156.00 |
| Account | Parcel | Account Type | Tax Year | Buildings | Actual Value | Local Govt Assessed Value | School Assessed Value |
|---|---|---|---|---|---|---|---|
| R3951105 | 146701117017 | Residential | 2026 | 1 | 464,020 | 29,000 | 32,710 |
| Type | Code | Description | Actual Value | Local Govt Assessed Value | School Assessed Value | Acres | Land SqFt |
|---|---|---|---|---|---|---|---|
| Improvement | 1212 | SINGLE FAMILY RESIDENTIAL IMPROVEMENTS | 364,020 | 22,750 | 25,660 | 0.000 | 0 |
| Land | 1112 | SINGLE FAMILY RESIDENTIAL-LAND | 100,000 | 6,250 | 7,050 | 0.144 | 6,269 |
| Totals | - | - | 464,020 | 29,000 | 32,710 | 0.144 | 6,269 |
Comparable sales for your Residential or Commercial property may be found using our SALES SEARCH TOOL
Values are updated annually on May 1st for Real Property and June 15th for Personal Property and Oil and Gas.
| Account | Parcel | Account Type | Tax Year | Buildings | Actual Value | Local Govt Assessed Value | School Assessed Value |
|---|---|---|---|---|---|---|---|
| R3951105 | 146701117017 | Residential | 2026 | 1 | 464,020 | 29,000 | 32,710 |
| Tax Area | District ID | District Name | Local Govt Mill Levy |
School Mill Levy |
Estimated Taxes |
|---|---|---|---|---|---|
| 2954 | 0900 | CARBON VALLEY REC | 4.427 | 0.000 | $128.38 |
| 2954 | 0402 | DACONO TOWN | 22.491 | 0.000 | $652.24 |
| 2954 | 0512 | MOUNTAIN VIEW FIRE PROTECTION DISTRICT | 16.342 | 0.000 | $473.92 |
| 2954 | 0301 | NORTHERN COLORADO WATER (NCW) | 1.000 | 0.000 | $29.00 |
| 2954 | 0213 | SCHOOL DIST RE1J-LONGMONT | 0.000 | 57.717 | $1,887.92 |
| 2954 | 0620 | ST VRAIN SANITATION | 0.316 | 0.000 | $9.16 |
| 2954 | 0100 | WELD COUNTY | 15.956 | 0.000 | $462.72 |
| Total | - | - | 60.532 | 57.717 | $3,643.35 |
The estimate of tax is based on the prior year mill levy and the 2025 projected assessment rates. Mill levies and tax estimates will be updated yearly on December 22nd for the current year. Additional information can be found at https://assessor.weld.gov


