Account: R4038006

April 5, 2026

Account Parcel Account Type Tax Year Buildings Actual Value Local Govt Assessed Value School Assessed Value
R4038006 131333411009 Residential 2026 1 774,774 48,430 54,620

Legal
FRE 1WYNDH L9 BLK9 WYNDHAM HILL FG #1

Subdivision Block Lot Land Economic Area
WYNDHAM HILL FG#1 FINAL PLAT 9 9 WYNDHAM HILLS

Property Address Property City Section Township Range
6303 STEEPLE ROCK DR FREDERICK 33 02 68




Account Parcel Account Type Tax Year Buildings Actual Value Local Govt Assessed Value School Assessed Value
R4038006 131333411009 Residential 2026 1 774,774 48,430 54,620

Account Owner Name Address
R4038006 REMMERT RICHARD TYSON 6303 STEEPLE ROCK DR FREDERICK, CO 805169513
R4038006 REMMERT SUMMER J


Account Parcel Account Type Tax Year Buildings Actual Value Local Govt Assessed Value School Assessed Value
R4038006 131333411009 Residential 2026 1 774,774 48,430 54,620

Reception Rec Date Type Grantor Grantee Doc Fee Sale Date Sale Price
3325671 NA SUB SUBDIVISION WYNDHAM HILL FG #1 0.00 NA 0
3328718 10-04-2005 SWD BILLINGS MARY ALICE (2/3 INT) & FREDERICK DEVELOPMENT COMPANY INC 94.95 10-04-2005 949,500
3328723 10-04-2005 SWD FREDERICK DEVELOPMENT COMPANY INC KDB HOMES INC DBA 535.60 09-30-2005 5,356,000
3883725 10-25-2012 SWD KDB HOMES INC GANN BRADLEY ALEXANDER 37.13 10-24-2012 371,300
4179353 02-08-2016 WD GANN BRADLEY ALEXANDER; GANN TIFFANY A REMMERT RICHARD TYSON; REMMERT SUMMER J 40.50 02-05-2016 405,000



Account Parcel Account Type Tax Year Buildings Actual Value Local Govt Assessed Value School Assessed Value
R4038006 131333411009 Residential 2026 1 774,774 48,430 54,620

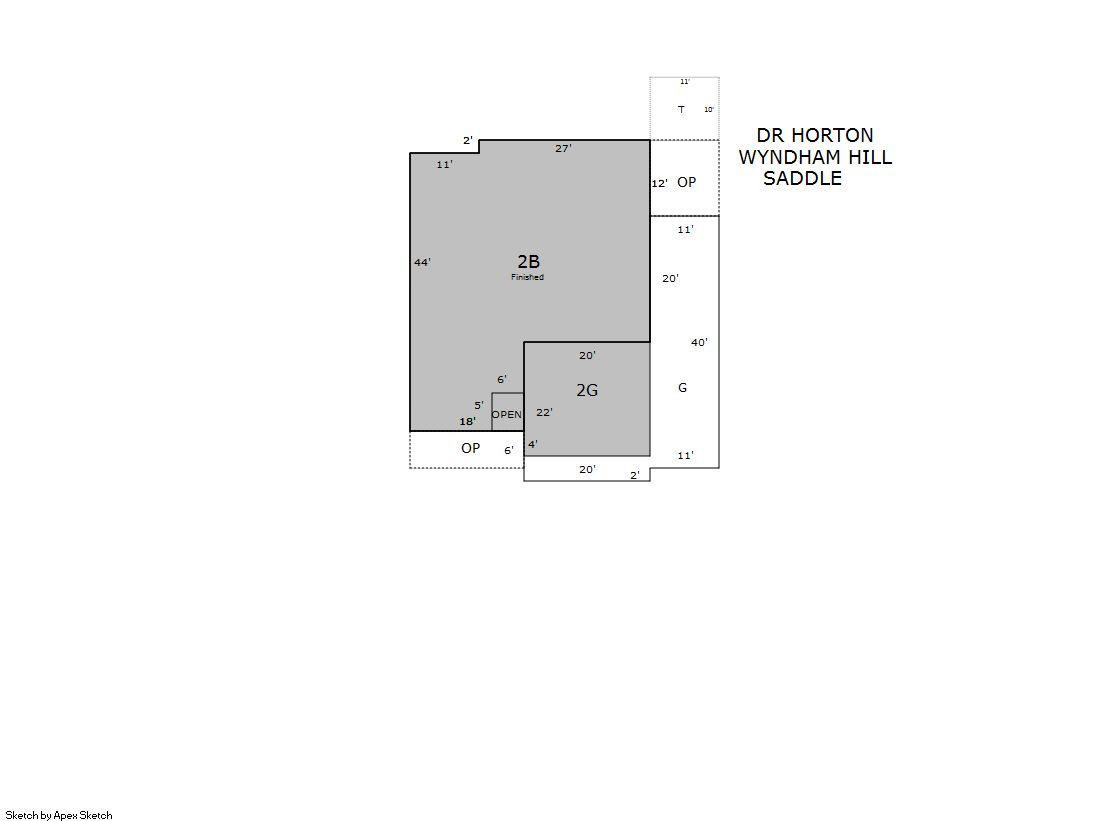
Building 1

AccountNo Building ID Occupancy
R4038006 1 Single Family Residential


ID Type NBHD Occupancy % Complete Bedrooms Baths
1 Residential 3K2030 Single Family Residential 100 7 5.00


ID Exterior Roof Cover Interior HVAC Perimeter Units Unit Type Make
1 Frame Hardboard Composition Shingle Drywall Central Air to Air 366 0 NA NA


ID Square Ft Condo SF Total Basement SF Finished Basement SF Garage SF Carport SF Balcony SF Porch SF
1 3,222 0 1,446 1,446 880 0 0 240


Built As Details for Building 1
ID Built As Square Ft Year Built Stories Length Width
1.00 2 Story 3,222 2012 2 0 0


Additional Details for Building 1
ID Detail Type Description Units
1 Add On Fireplace Gas 1.00
1 Basement Finished 1446.00
1 Basement Total Basement SF 1446.00
1 Fixture Full Bath 4.00
1 Fixture Half Bath 1.00
1 Fixture Wet Bar 1.00
1 Garage Attached 880.00
1 Porch Open Slab 110.00
1 Porch Slab Roof Ceil 240.00





Account Parcel Account Type Tax Year Buildings Actual Value Local Govt Assessed Value School Assessed Value
R4038006 131333411009 Residential 2026 1 774,774 48,430 54,620

Type Code Description Actual Value Local Govt Assessed Value School Assessed Value Acres Land SqFt
Improvement 1212 SINGLE FAMILY RESIDENTIAL IMPROVEMENTS 659,774 41,240 46,510 0.000 0
Land 1112 SINGLE FAMILY RESIDENTIAL-LAND 115,000 7,190 8,110 0.161 7,016
Totals - - 774,774 48,430 54,620 0.161 7,016


Account Parcel Account Type Tax Year Buildings Actual Value Local Govt Assessed Value School Assessed Value
R4038006 131333411009 Residential 2026 1 774,774 48,430 54,620

Tax Area District ID District Name Local Govt
Mill Levy
School
Mill Levy
Estimated
Taxes
4118 0900 CARBON VALLEY REC 4.427 0.000 $214.40
4118 0408 FREDERICK TOWN 6.555 0.000 $317.46
4118 0507 FREDERICK-FIRESTONE FIRE 15.559 0.000 $753.52
4118 1050 HIGH PLAINS LIBRARY 3.044 0.000 $147.42
4118 0311 LEFT HAND WATER 0.000 0.000 $0.00
4118 1202 LONGMONT CONSERVATION 0.000 0.000 $0.00
4118 0301 NORTHERN COLORADO WATER (NCW) 1.000 0.000 $48.43
4118 0213 SCHOOL DIST RE1J-LONGMONT 0.000 57.717 $3,152.50
4118 0620 ST VRAIN SANITATION 0.316 0.000 $15.30
4118 0100 WELD COUNTY 15.956 0.000 $772.75
4118 1357 WYNDHAM HILL METRO 2 63.054 0.000 $3,053.71
Total - - 109.911 57.717 $8,475.49


The estimate of tax is based on the prior year mill levy and the 2025 projected assessment rates. Mill levies and tax estimates will be updated yearly on December 22nd for the current year. Additional information can be found at https://assessor.weld.gov










Select Reports to Print: