Account: R4040706

April 5, 2026

Account Parcel Account Type Tax Year Buildings Actual Value Local Govt Assessed Value School Assessed Value
R4040706 131333414004 Residential 2026 1 697,005 43,570 49,140

Legal
FRE 1WYNDH L4 BLK12 WYNDHAM HILL FG #1

Subdivision Block Lot Land Economic Area
WYNDHAM HILL FG#1 FINAL PLAT 12 4 WYNDHAM HILLS

Property Address Property City Section Township Range
2817 SARATOGA TRL FREDERICK 33 02 68




Account Parcel Account Type Tax Year Buildings Actual Value Local Govt Assessed Value School Assessed Value
R4040706 131333414004 Residential 2026 1 697,005 43,570 49,140

Account Owner Name Address
R4040706 HALLOWELL JESSE VAN 2817 SARATOGA TRL FREDERICK, CO 805162600
R4040706 HALLOWELL CHERYLE


Account Parcel Account Type Tax Year Buildings Actual Value Local Govt Assessed Value School Assessed Value
R4040706 131333414004 Residential 2026 1 697,005 43,570 49,140

Reception Rec Date Type Grantor Grantee Doc Fee Sale Date Sale Price
3325671 NA SUB SUBDIVISION WYNDHAM HILL FG #1 0.00 NA 0
3328718 10-04-2005 SWD BILLINGS MARY ALICE (2/3 INT) & FREDERICK DEVELOPMENT COMPANY INC 94.95 10-04-2005 949,500
3328723 10-04-2005 SWD FREDERICK DEVELOPMENT COMPANY INC KDB HOMES INC DBA 535.60 09-30-2005 5,356,000
3850652 06-05-2012 SWD KDB HOMES INC HALLOWELL JESSE VAN 32.39 06-04-2012 323,900



Account Parcel Account Type Tax Year Buildings Actual Value Local Govt Assessed Value School Assessed Value
R4040706 131333414004 Residential 2026 1 697,005 43,570 49,140

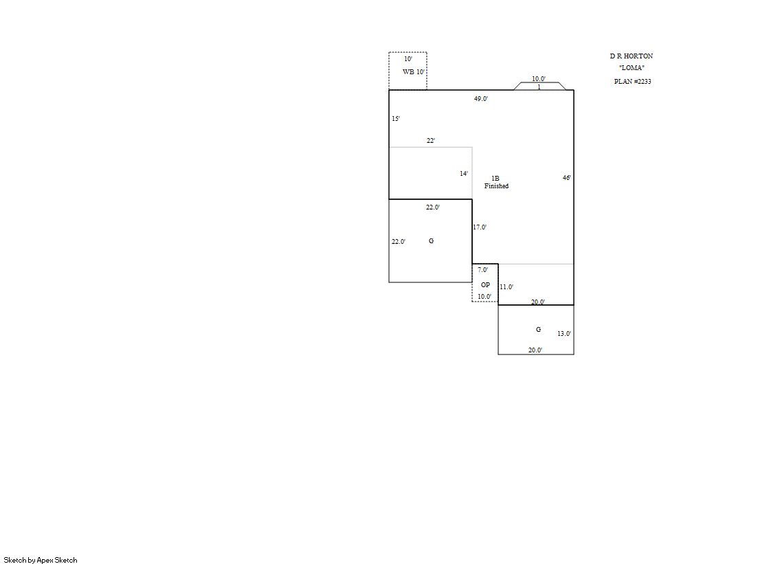
Building 1

AccountNo Building ID Occupancy
R4040706 1 Single Family Residential


ID Type NBHD Occupancy % Complete Bedrooms Baths
1 Residential 3K2030 Single Family Residential 100 5 3.00


ID Exterior Roof Cover Interior HVAC Perimeter Units Unit Type Make
1 Frame Hardboard Composition Shingle Drywall Central Air to Air 214 0 NA NA


ID Square Ft Condo SF Total Basement SF Finished Basement SF Garage SF Carport SF Balcony SF Porch SF
1 2,124 0 2,100 1,572 744 0 100 70


Built As Details for Building 1
ID Built As Square Ft Year Built Stories Length Width
1.00 Ranch 1 Story 2,124 2011 1 0 0


Additional Details for Building 1
ID Detail Type Description Units
1 Add On Fireplace Gas 1.00
1 Balcony Wood Wood Fin 100.00
1 Basement Finished 1572.00
1 Basement Full Daylight 1.00
1 Basement Total Basement SF 2100.00
1 Fixture Full Bath 3.00
1 Fixture Wet Bar 1.00
1 Garage Attached 744.00
1 Porch Slab Roof Ceil 70.00





Account Parcel Account Type Tax Year Buildings Actual Value Local Govt Assessed Value School Assessed Value
R4040706 131333414004 Residential 2026 1 697,005 43,570 49,140

Type Code Description Actual Value Local Govt Assessed Value School Assessed Value Acres Land SqFt
Improvement 1212 SINGLE FAMILY RESIDENTIAL IMPROVEMENTS 582,005 36,380 41,030 0.000 0
Land 1112 SINGLE FAMILY RESIDENTIAL-LAND 115,000 7,190 8,110 0.154 6,710
Totals - - 697,005 43,570 49,140 0.154 6,710


Account Parcel Account Type Tax Year Buildings Actual Value Local Govt Assessed Value School Assessed Value
R4040706 131333414004 Residential 2026 1 697,005 43,570 49,140

Tax Area District ID District Name Local Govt
Mill Levy
School
Mill Levy
Estimated
Taxes
4118 0900 CARBON VALLEY REC 4.427 0.000 $192.88
4118 0408 FREDERICK TOWN 6.555 0.000 $285.60
4118 0507 FREDERICK-FIRESTONE FIRE 15.559 0.000 $677.91
4118 1050 HIGH PLAINS LIBRARY 3.044 0.000 $132.63
4118 0311 LEFT HAND WATER 0.000 0.000 $0.00
4118 1202 LONGMONT CONSERVATION 0.000 0.000 $0.00
4118 0301 NORTHERN COLORADO WATER (NCW) 1.000 0.000 $43.57
4118 0213 SCHOOL DIST RE1J-LONGMONT 0.000 57.717 $2,836.21
4118 0620 ST VRAIN SANITATION 0.316 0.000 $13.77
4118 0100 WELD COUNTY 15.956 0.000 $695.20
4118 1357 WYNDHAM HILL METRO 2 63.054 0.000 $2,747.26
Total - - 109.911 57.717 $7,625.04


The estimate of tax is based on the prior year mill levy and the 2025 projected assessment rates. Mill levies and tax estimates will be updated yearly on December 22nd for the current year. Additional information can be found at https://assessor.weld.gov










Select Reports to Print: