Account: R4065586

April 1, 2026

Account Parcel Account Type Tax Year Buildings Actual Value Local Govt Assessed Value School Assessed Value
R4065586 096131420002 Residential 2026 1 340,594 21,290 24,010

Legal
LAS WS1-2 L2 BLK1 WHITTAKER SUB

Subdivision Block Lot Land Economic Area
WHITTAKER SUB 1 2 LA SALLE

Property Address Property City Section Township Range
305 N 4TH ST LA SALLE 31 05 65




Account Parcel Account Type Tax Year Buildings Actual Value Local Govt Assessed Value School Assessed Value
R4065586 096131420002 Residential 2026 1 340,594 21,290 24,010

Account Owner Name Address
R4065586 305 N 4TH ST TRUST 305 N 4TH ST LA SALLE, CO 806453214


Account Parcel Account Type Tax Year Buildings Actual Value Local Govt Assessed Value School Assessed Value
R4065586 096131420002 Residential 2026 1 340,594 21,290 24,010

Reception Rec Date Type Grantor Grantee Doc Fee Sale Date Sale Price
01930647 06-17-1983 WDN 0.00 01-01-1900 0
02160062 10-28-1988 PTD 0.00 10-27-1988 0
1654939 NA SUB SUBDIVISION WHITTAKER 0.00 NA 0
2177988 05-01-1989 SPWD FIREMANS FUND MORTGAGE CORP HANCOCK DAVID E & SUSAN D 4.20 04-27-1989 42,000
2319467 01-26-1993 WD HANCOCK DAVID E & SUSAN D CURTIS THOMAS A & JACQUELINE 4.48 12-04-1992 44,800
2319468 01-26-1993 WD CURTIS THOMAS A & JACQUELINE HOFFMAN WILLIAM E & LILLIAN R 5.00 01-22-1993 50,000
4510625 07-31-2019 WD HOFFMAN LILLIAN R; HOFFMAN WILLIAM E GRAFF DEVON R; ZIMMERMAN MYRANDA K 27.50 07-10-2019 275,000
4703447 04-12-2021 QCN ZIMMERMAN MYRANDA K GRAFF DEVON R 0.00 04-05-2021 0
5071246 12-09-2025 WDN GRAFF DEVON R 305 N 4TH ST TRUST 0.00 12-08-2025 0
X0010745 06-17-1983 CON ROME DONALD A & GERALDINE M FIREMANS FUND MORTGAGE CORP 4.80 06-17-1983 48,000



Account Parcel Account Type Tax Year Buildings Actual Value Local Govt Assessed Value School Assessed Value
R4065586 096131420002 Residential 2026 1 340,594 21,290 24,010

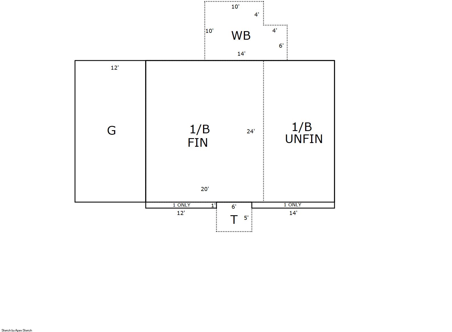
Building 1

AccountNo Building ID Occupancy
R4065586 1 Single Family Residential


ID Type NBHD Occupancy % Complete Bedrooms Baths
1 Residential 6L0050 Single Family Residential 100 4 2.00


ID Exterior Roof Cover Interior HVAC Perimeter Units Unit Type Make
1 Frame Hardboard Composition Shingle Drywall Forced Air 116 0 NA NA


ID Square Ft Condo SF Total Basement SF Finished Basement SF Garage SF Carport SF Balcony SF Porch SF
1 794 0 768 480 288 0 124 30


Built As Details for Building 1
ID Built As Square Ft Year Built Stories Length Width
1.00 Bi Level 794 1975 2 0 0


Additional Details for Building 1
ID Detail Type Description Units
1 Balcony Wood Wood Fin 124.00
1 Basement Finished 480.00
1 Basement Total Basement SF 768.00
1 Fixture Full Bath 2.00
1 Garage Attached 288.00
1 Porch Open Slab 30.00





Account Parcel Account Type Tax Year Buildings Actual Value Local Govt Assessed Value School Assessed Value
R4065586 096131420002 Residential 2026 1 340,594 21,290 24,010

Type Code Description Actual Value Local Govt Assessed Value School Assessed Value Acres Land SqFt
Improvement 1212 SINGLE FAMILY RESIDENTIAL IMPROVEMENTS 304,969 19,060 21,500 0.000 0
Land 1112 SINGLE FAMILY RESIDENTIAL-LAND 35,625 2,230 2,510 0.164 7,125
Totals - - 340,594 21,290 24,010 0.164 7,125


Account Parcel Account Type Tax Year Buildings Actual Value Local Govt Assessed Value School Assessed Value
R4065586 096131420002 Residential 2026 1 340,594 21,290 24,010

Tax Area District ID District Name Local Govt
Mill Levy
School
Mill Levy
Estimated
Taxes
0168 0700 AIMS JUNIOR COLLEGE 6.313 0.000 $134.40
0168 0302 CENTRAL COLORADO WATER (CCW) 0.980 0.000 $20.86
0168 1050 HIGH PLAINS LIBRARY 3.044 0.000 $64.81
0168 0511 LASALLE FIRE 5.154 0.000 $109.73
0168 0418 LASALLE TOWN 22.837 0.000 $486.20
0168 0301 NORTHERN COLORADO WATER (NCW) 1.000 0.000 $21.29
0168 0201 SCHOOL DIST RE1-GILCREST 0.000 15.382 $369.32
0168 0100 WELD COUNTY 15.956 0.000 $339.70
Total - - 55.284 15.382 $1,546.32


The estimate of tax is based on the prior year mill levy and the 2025 projected assessment rates. Mill levies and tax estimates will be updated yearly on December 22nd for the current year. Additional information can be found at https://assessor.weld.gov










Select Reports to Print: