Account: R4065886
April 1, 2026
| Account | Parcel | Account Type | Tax Year | Buildings | Actual Value | Local Govt Assessed Value | School Assessed Value |
|---|---|---|---|---|---|---|---|
| R4065886 | 096131420005 | Residential | 2026 | 1 | 333,453 | 20,840 | 23,510 |
| Legal |
|---|
| LAS WS1-5 L5 BLK1 WHITTAKER SUB |
| Subdivision | Block | Lot | Land Economic Area |
|---|---|---|---|
| WHITTAKER SUB | 1 | 5 | LA SALLE |
| Property Address | Property City | Section | Township | Range |
|---|---|---|---|---|
| 317 N 4TH ST | LA SALLE | 31 | 05 | 65 |
| Account | Parcel | Account Type | Tax Year | Buildings | Actual Value | Local Govt Assessed Value | School Assessed Value |
|---|---|---|---|---|---|---|---|
| R4065886 | 096131420005 | Residential | 2026 | 1 | 333,453 | 20,840 | 23,510 |
| Account | Owner Name | Address |
|---|---|---|
| R4065886 | BRANDS CHERYL R | 317 N 4TH ST LA SALLE, CO 806453214 |
| Account | Parcel | Account Type | Tax Year | Buildings | Actual Value | Local Govt Assessed Value | School Assessed Value |
|---|---|---|---|---|---|---|---|
| R4065886 | 096131420005 | Residential | 2026 | 1 | 333,453 | 20,840 | 23,510 |
| Reception | Rec Date | Type | Grantor | Grantee | Doc Fee | Sale Date | Sale Price |
|---|---|---|---|---|---|---|---|
| 01690873 | 06-11-1976 | WDN | 0.00 | 01-01-1900 | 0 | ||
| 1654939 | NA | SUB | SUBDIVISION | WHITTAKER | 0.00 | NA | 0 |
| 3173704 | 04-26-2004 | QCN | SPRENGER KATHERINE J | ELAM DONALD G & | 0.00 | 04-23-2004 | 0 |
| 3284644 | 05-10-2005 | WD | ELAM DONALD G & | KOHN ERNIE M & | 14.75 | 04-29-2005 | 147,500 |
| 3548579 | 04-18-2008 | PTD | KOHN ERNIE M & | WELLS FARGO BANK NATIONAL ASSOCIATION | 0.00 | 04-17-2008 | 0 |
| 3602561 | 01-30-2009 | SWD | WELLS FARGO BANK NATIONAL ASSOCIATION HSBC BANK US | BRANDS CHERYL R | 8.49 | 01-23-2009 | 84,900 |
*If the hyperlink for the reception number does not work, try a manual search in the Clerk and Recorder records. Use the Grantor or Grantee in your search.
| Account | Parcel | Account Type | Tax Year | Buildings | Actual Value | Local Govt Assessed Value | School Assessed Value |
|---|---|---|---|---|---|---|---|
| R4065886 | 096131420005 | Residential | 2026 | 1 | 333,453 | 20,840 | 23,510 |
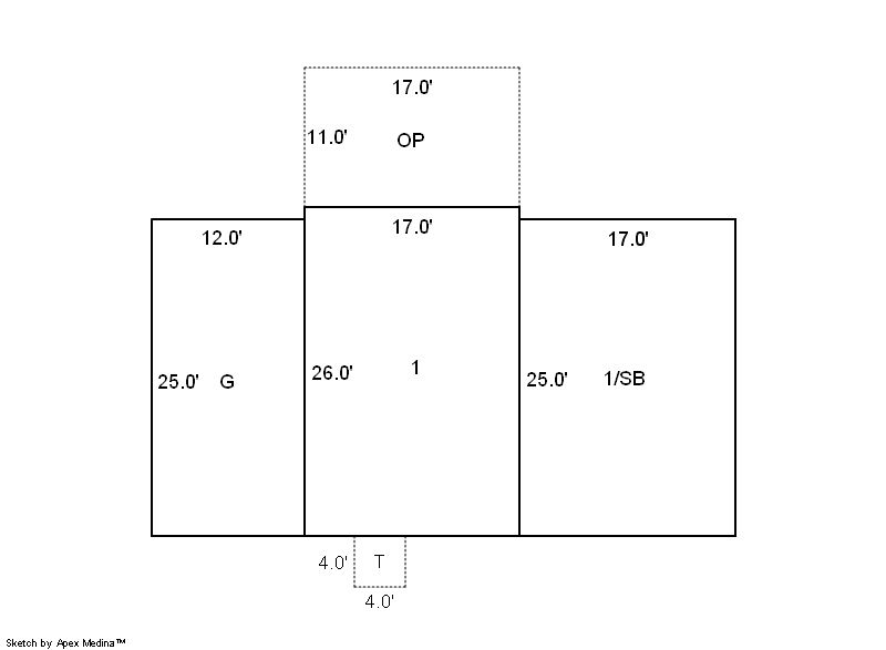
Building 1
| AccountNo | Building ID | Occupancy |
|---|---|---|
| R4065886 | 1 | Single Family Residential |
| ID | Type | NBHD | Occupancy | % Complete | Bedrooms | Baths |
|---|---|---|---|---|---|---|
| 1 | Residential | 6L0050 | Single Family Residential | 100 | 3 | 2.00 |
| ID | Exterior | Roof Cover | Interior | HVAC | Perimeter | Units | Unit Type | Make |
|---|---|---|---|---|---|---|---|---|
| 1 | Frame Vinyl | Composition Shingle | Drywall | Central Air to Air | 0 | 0 | NA | NA |
| ID | Square Ft | Condo SF | Total Basement SF | Finished Basement SF | Garage SF | Carport SF | Balcony SF | Porch SF |
|---|---|---|---|---|---|---|---|---|
| 1 | 867 | 0 | 425 | 0 | 300 | 0 | 0 | 16 |
| ID | Built As | Square Ft | Year Built | Stories | Length | Width |
|---|---|---|---|---|---|---|
| 1.00 | Split Level | 867 | 1976 | 1 | 0 | 0 |
| ID | Detail Type | Description | Units |
|---|---|---|---|
| 1 | Basement | Total Basement SF | 425.00 |
| 1 | Fixture | Full Bath | 2.00 |
| 1 | Garage | Attached | 300.00 |
| 1 | Porch | Open Slab | 16.00 |
| 1 | Porch | Slab Roof Ceil | 187.00 |
| Account | Parcel | Account Type | Tax Year | Buildings | Actual Value | Local Govt Assessed Value | School Assessed Value |
|---|---|---|---|---|---|---|---|
| R4065886 | 096131420005 | Residential | 2026 | 1 | 333,453 | 20,840 | 23,510 |
| Type | Code | Description | Actual Value | Local Govt Assessed Value | School Assessed Value | Acres | Land SqFt |
|---|---|---|---|---|---|---|---|
| Improvement | 1212 | SINGLE FAMILY RESIDENTIAL IMPROVEMENTS | 297,828 | 18,610 | 21,000 | 0.000 | 0 |
| Land | 1112 | SINGLE FAMILY RESIDENTIAL-LAND | 35,625 | 2,230 | 2,510 | 0.164 | 7,125 |
| Totals | - | - | 333,453 | 20,840 | 23,510 | 0.164 | 7,125 |
Comparable sales for your Residential or Commercial property may be found using our SALES SEARCH TOOL
Values are updated annually on May 1st for Real Property and June 15th for Personal Property and Oil and Gas.
| Account | Parcel | Account Type | Tax Year | Buildings | Actual Value | Local Govt Assessed Value | School Assessed Value |
|---|---|---|---|---|---|---|---|
| R4065886 | 096131420005 | Residential | 2026 | 1 | 333,453 | 20,840 | 23,510 |
| Tax Area | District ID | District Name | Local Govt Mill Levy |
School Mill Levy |
Estimated Taxes |
|---|---|---|---|---|---|
| 0168 | 0700 | AIMS JUNIOR COLLEGE | 6.313 | 0.000 | $131.56 |
| 0168 | 0302 | CENTRAL COLORADO WATER (CCW) | 0.980 | 0.000 | $20.42 |
| 0168 | 1050 | HIGH PLAINS LIBRARY | 3.044 | 0.000 | $63.44 |
| 0168 | 0511 | LASALLE FIRE | 5.154 | 0.000 | $107.41 |
| 0168 | 0418 | LASALLE TOWN | 22.837 | 0.000 | $475.92 |
| 0168 | 0301 | NORTHERN COLORADO WATER (NCW) | 1.000 | 0.000 | $20.84 |
| 0168 | 0201 | SCHOOL DIST RE1-GILCREST | 0.000 | 15.382 | $361.63 |
| 0168 | 0100 | WELD COUNTY | 15.956 | 0.000 | $332.52 |
| Total | - | - | 55.284 | 15.382 | $1,513.75 |
The estimate of tax is based on the prior year mill levy and the 2025 projected assessment rates. Mill levies and tax estimates will be updated yearly on December 22nd for the current year. Additional information can be found at https://assessor.weld.gov



