Account: R4071586
April 2, 2026
| Account | Parcel | Account Type | Tax Year | Buildings | Actual Value | Local Govt Assessed Value | School Assessed Value |
|---|---|---|---|---|---|---|---|
| R4071586 | 096132300020 | Residential | 2026 | 1 | 410,623 | 25,670 | 28,950 |
| Legal |
|---|
| LAS 11707 PT SW4SW4 32 5 65 BEG E505' OF SW COR SEC N180' E124' S180' W124' TO BEG |
| Subdivision | Block | Lot | Land Economic Area |
|---|---|---|---|
| LA SALLE |
| Property Address | Property City | Section | Township | Range |
|---|---|---|---|---|
| 343 TODD AVE | LA SALLE | 32 | 05 | 65 |
| Account | Parcel | Account Type | Tax Year | Buildings | Actual Value | Local Govt Assessed Value | School Assessed Value |
|---|---|---|---|---|---|---|---|
| R4071586 | 096132300020 | Residential | 2026 | 1 | 410,623 | 25,670 | 28,950 |
| Account | Owner Name | Address |
|---|---|---|
| R4071586 | MAUS THOMAS P | 343 TODD AVE LA SALLE, CO 806453141 |
| R4071586 | AHUJA MARIA E |
| Account | Parcel | Account Type | Tax Year | Buildings | Actual Value | Local Govt Assessed Value | School Assessed Value |
|---|---|---|---|---|---|---|---|
| R4071586 | 096132300020 | Residential | 2026 | 1 | 410,623 | 25,670 | 28,950 |
| Reception | Rec Date | Type | Grantor | Grantee | Doc Fee | Sale Date | Sale Price |
|---|---|---|---|---|---|---|---|
| 01635278 | 04-26-1974 | WDN | 0.00 | 01-01-1900 | 0 | ||
| 2227663 | 09-19-1990 | WD | STEVENS C LARRY & JUDY A | LITFIN ARLYN D & KAREN S | 5.10 | 09-17-1990 | 51,000 |
| 4361664 | 12-20-2017 | WD | LITFIN KAREN S; LITFIN ARLYN D | ALVARADO KIMBERLY SUE | 31.34 | 12-15-2017 | 313,400 |
| 4985802 | 10-02-2024 | PRD | ALVARADO KIMBERLY SUE | MAUS THOMAS P; AHUJA MARIA E | 41.00 | 09-26-2024 | 410,000 |
*If the hyperlink for the reception number does not work, try a manual search in the Clerk and Recorder records. Use the Grantor or Grantee in your search.
| Account | Parcel | Account Type | Tax Year | Buildings | Actual Value | Local Govt Assessed Value | School Assessed Value |
|---|---|---|---|---|---|---|---|
| R4071586 | 096132300020 | Residential | 2026 | 1 | 410,623 | 25,670 | 28,950 |
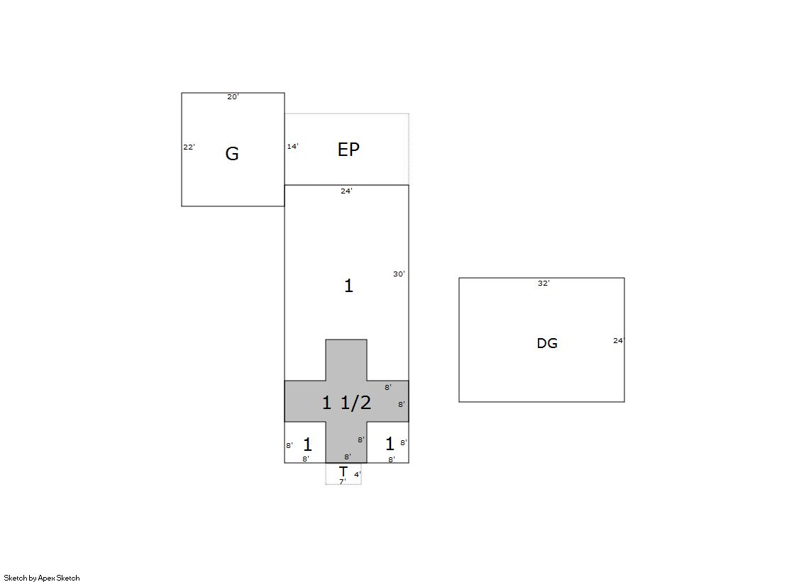
Building 1
| AccountNo | Building ID | Occupancy |
|---|---|---|
| R4071586 | 1 | Single Family Residential |
| ID | Type | NBHD | Occupancy | % Complete | Bedrooms | Baths |
|---|---|---|---|---|---|---|
| 1 | Residential | 6L0050 | Single Family Residential | 100 | 4 | 2.00 |
| ID | Exterior | Roof Cover | Interior | HVAC | Perimeter | Units | Unit Type | Make |
|---|---|---|---|---|---|---|---|---|
| 1 | Frame Hardboard | Composition Shingle | Drywall | Hot Water Baseboard | 252 | 0 | NA | NA |
| ID | Square Ft | Condo SF | Total Basement SF | Finished Basement SF | Garage SF | Carport SF | Balcony SF | Porch SF |
|---|---|---|---|---|---|---|---|---|
| 1 | 1,616 | 0 | 0 | 0 | 440 | 0 | 0 | 336 |
| ID | Built As | Square Ft | Year Built | Stories | Length | Width |
|---|---|---|---|---|---|---|
| 1.00 | 1 1/2 Story Fin | 1,616 | 1910 | 2 | 0 |
| ID | Detail Type | Description | Units |
|---|---|---|---|
| 1 | Add On | Flue Only | 1.00 |
| 1 | Add On | Suspended Heaters | 1.00 |
| 1 | Fixture | Full Bath | 2.00 |
| 1 | Garage | Attached | 440.00 |
| 1 | Garage | Detached | 768.00 |
| 1 | Porch | Encl Solid Wall | 336.00 |
| 1 | Porch | Open Slab | 28.00 |
| Account | Parcel | Account Type | Tax Year | Buildings | Actual Value | Local Govt Assessed Value | School Assessed Value |
|---|---|---|---|---|---|---|---|
| R4071586 | 096132300020 | Residential | 2026 | 1 | 410,623 | 25,670 | 28,950 |
| Type | Code | Description | Actual Value | Local Govt Assessed Value | School Assessed Value | Acres | Land SqFt |
|---|---|---|---|---|---|---|---|
| Improvement | 1212 | SINGLE FAMILY RESIDENTIAL IMPROVEMENTS | 354,823 | 22,180 | 25,020 | 0.000 | 0 |
| Land | 1112 | SINGLE FAMILY RESIDENTIAL-LAND | 55,800 | 3,490 | 3,930 | 0.512 | 22,320 |
| Totals | - | - | 410,623 | 25,670 | 28,950 | 0.512 | 22,320 |
Comparable sales for your Residential or Commercial property may be found using our SALES SEARCH TOOL
Values are updated annually on May 1st for Real Property and June 15th for Personal Property and Oil and Gas.
| Account | Parcel | Account Type | Tax Year | Buildings | Actual Value | Local Govt Assessed Value | School Assessed Value |
|---|---|---|---|---|---|---|---|
| R4071586 | 096132300020 | Residential | 2026 | 1 | 410,623 | 25,670 | 28,950 |
| Tax Area | District ID | District Name | Local Govt Mill Levy |
School Mill Levy |
Estimated Taxes |
|---|---|---|---|---|---|
| 0160 | 0700 | AIMS JUNIOR COLLEGE | 6.313 | 0.000 | $162.05 |
| 0160 | 1050 | HIGH PLAINS LIBRARY | 3.044 | 0.000 | $78.14 |
| 0160 | 0511 | LASALLE FIRE | 5.154 | 0.000 | $132.30 |
| 0160 | 0418 | LASALLE TOWN | 22.837 | 0.000 | $586.23 |
| 0160 | 0301 | NORTHERN COLORADO WATER (NCW) | 1.000 | 0.000 | $25.67 |
| 0160 | 0201 | SCHOOL DIST RE1-GILCREST | 0.000 | 15.382 | $445.31 |
| 0160 | 0100 | WELD COUNTY | 15.956 | 0.000 | $409.59 |
| Total | - | - | 54.304 | 15.382 | $1,839.29 |
The estimate of tax is based on the prior year mill levy and the 2025 projected assessment rates. Mill levies and tax estimates will be updated yearly on December 22nd for the current year. Additional information can be found at https://assessor.weld.gov


