Account: R4096306

April 1, 2026

Account Parcel Account Type Tax Year Buildings Actual Value Local Govt Assessed Value School Assessed Value
R4096306 105701141012 Residential 2026 1 472,972 29,560 33,340

Legal
LAS 2DHE L12 BLK 8 DOVE HILL ESTATES 2ND RPLT L11-27 BLK 8

Subdivision Block Lot Land Economic Area
DOVE HILL ESTATES SUB 2ND RPLT L11-27 B8 8 12 DOVE HILL

Property Address Property City Section Township Range
949 DOVE HILL RD LASALLE 01 04 66




Account Parcel Account Type Tax Year Buildings Actual Value Local Govt Assessed Value School Assessed Value
R4096306 105701141012 Residential 2026 1 472,972 29,560 33,340

Account Owner Name Address
R4096306 PAYAN RAUL FRANCISCO 949 DOVE HILL RD LASALLE, CO 806453089
R4096306 PAYAN FATIMA J 949 DOVE HILL RD LASALLE, CO


Account Parcel Account Type Tax Year Buildings Actual Value Local Govt Assessed Value School Assessed Value
R4096306 105701141012 Residential 2026 1 472,972 29,560 33,340

Reception Rec Date Type Grantor Grantee Doc Fee Sale Date Sale Price
3336142 NA SUB SUBDIVISION DOVE HILL ESTATES 2ND RPLT LOTS 11-27 BLK8 0.00 NA 0
3670670 01-18-2010 PTD WELD CO PUBLIC TRUSTEE FIRST NATIONAL BANK 0.00 01-15-2010 0
3874238 09-19-2012 QC FIRST NATIONAL BANK WESTERN CONSTRUCTORS INC 55.00 09-14-2012 550,000
3960737 09-03-2013 QCN WESTERN CONSTRUCTORS INC CONSTRUCTORS WEST INC 0.00 08-29-2013 0
4148754 10-08-2015 SWD CONSTRUCTORS WEST INC PAYAN RAUL FRANCISCO 27.18 10-07-2015 271,800
4601401 06-23-2020 QCN PAYAN RAUL FRANCISCO PAYAN FATIMA J;PAYAN RAUL FRANCISCO 0.00 06-18-2020 0



Account Parcel Account Type Tax Year Buildings Actual Value Local Govt Assessed Value School Assessed Value
R4096306 105701141012 Residential 2026 1 472,972 29,560 33,340

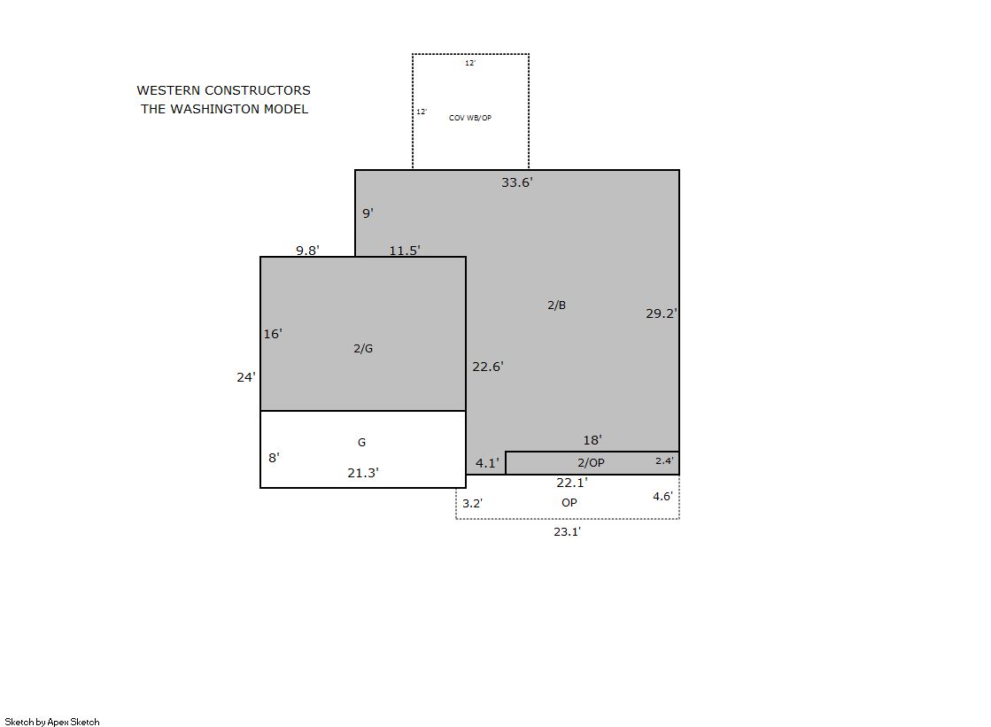
Building 1

AccountNo Building ID Occupancy
R4096306 1 Single Family Residential


ID Type NBHD Occupancy % Complete Bedrooms Baths
1 Residential 6L0051 Single Family Residential 100 4 3.00


ID Exterior Roof Cover Interior HVAC Perimeter Units Unit Type Make
1 Frame Siding Composition Shingle Drywall Central Air to Air 280 0 NA NA


ID Square Ft Condo SF Total Basement SF Finished Basement SF Garage SF Carport SF Balcony SF Porch SF
1 1,902 0 759 0 511 0 144 144


Built As Details for Building 1
ID Built As Square Ft Year Built Stories Length Width
1.00 2 Story 1,902 2015 1 0 0


Additional Details for Building 1
ID Detail Type Description Units
1 Balcony Wood Wood Fin 144.00
1 Basement Total Basement SF 759.00
1 Basement Walkout 1.00
1 Fixture Full Bath 2.00
1 Fixture Half Bath 1.00
1 Garage Attached 511.00
1 Porch Open Slab 144.00
1 Porch Slab Roof Ceil 148.00
1 Rough In Rough In 1.00





Account Parcel Account Type Tax Year Buildings Actual Value Local Govt Assessed Value School Assessed Value
R4096306 105701141012 Residential 2026 1 472,972 29,560 33,340

Type Code Description Actual Value Local Govt Assessed Value School Assessed Value Acres Land SqFt
Improvement 1212 SINGLE FAMILY RESIDENTIAL IMPROVEMENTS 407,972 25,500 28,760 0.000 0
Land 1112 SINGLE FAMILY RESIDENTIAL-LAND 65,000 4,060 4,580 0.149 6,510
Totals - - 472,972 29,560 33,340 0.149 6,510


Account Parcel Account Type Tax Year Buildings Actual Value Local Govt Assessed Value School Assessed Value
R4096306 105701141012 Residential 2026 1 472,972 29,560 33,340

Tax Area District ID District Name Local Govt
Mill Levy
School
Mill Levy
Estimated
Taxes
0160 0700 AIMS JUNIOR COLLEGE 6.313 0.000 $186.61
0160 1050 HIGH PLAINS LIBRARY 3.044 0.000 $89.98
0160 0511 LASALLE FIRE 5.154 0.000 $152.35
0160 0418 LASALLE TOWN 22.837 0.000 $675.06
0160 0301 NORTHERN COLORADO WATER (NCW) 1.000 0.000 $29.56
0160 0201 SCHOOL DIST RE1-GILCREST 0.000 15.382 $512.84
0160 0100 WELD COUNTY 15.956 0.000 $471.66
Total - - 54.304 15.382 $2,118.06


The estimate of tax is based on the prior year mill levy and the 2025 projected assessment rates. Mill levies and tax estimates will be updated yearly on December 22nd for the current year. Additional information can be found at https://assessor.weld.gov










Select Reports to Print: