*If the hyperlink for the reception number does not work, try a manual search in the Clerk and Recorder records. Use the Grantor or Grantee in your search.
Account
Parcel
Account Type
Tax Year
Buildings
Actual Value
Local Govt Assessed Value
School Assessed Value
R4111106
130523100004
Agricultural
2026
8
476,638
64,810
67,260
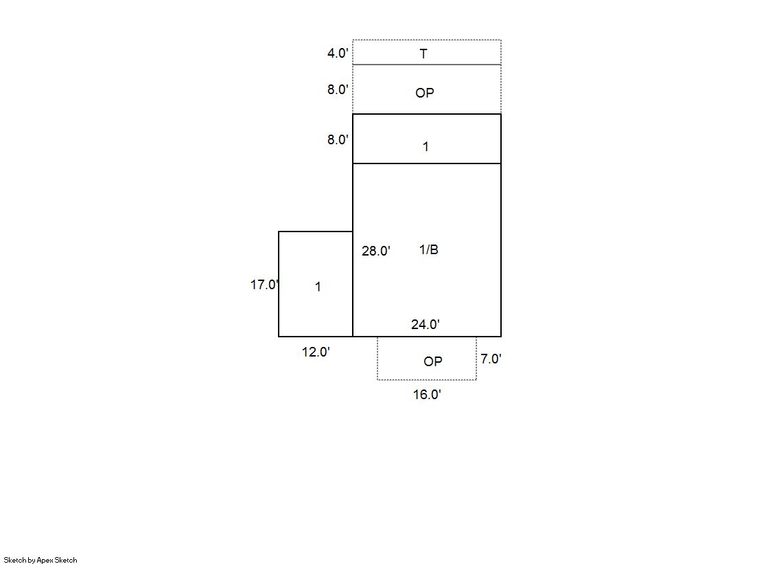
Building 1
AccountNo
Building ID
Occupancy
R4111106
1
Single Family Residential on Ag
ID
Type
NBHD
Occupancy
% Complete
Bedrooms
Baths
1
Residential
5R0006
Single Family Residential on Ag
100
3
2.00
ID
Exterior
Roof Cover
Interior
HVAC
Perimeter
Units
Unit Type
Make
1
Frame Siding
Composition Shingle
Drywall
Forced Air
178
0
NA
NA
ID
Square Ft
Condo SF
Total Basement SF
Finished Basement SF
Garage SF
Carport SF
Balcony SF
Porch SF
1
1,068
0
672
0
0
0
0
304
Built As Details for Building 1
ID
Built As
Square Ft
Year Built
Stories
Length
Width
1.00
Ranch 1 Story
1,068
1922
1
0
0
Additional Details for Building 1
ID
Detail Type
Description
Units
1
Add On
Flue Only
1.00
1
Basement
Total Basement SF
672.00
1
Fixture
Full Bath
2.00
1
Porch
Open Slab
96.00
1
Porch
Slab Roof Ceil
304.00
1
Rough In
Rough In
1.00
Building 2
AccountNo
Building ID
Occupancy
R4111106
2
Utility Building
ID
Type
NBHD
Occupancy
% Complete
Bedrooms
Baths
2
Out Building
NA
Utility Building
100
0
0.00
ID
Exterior
Roof Cover
Interior
HVAC
Perimeter
Units
Unit Type
Make
2
NA
NA
NA
None
64
0
NA
NA
ID
Square Ft
Condo SF
Total Basement SF
Finished Basement SF
Garage SF
Carport SF
Balcony SF
Porch SF
2
240
0
0
0
0
0
0
0
Built As Details for Building 2
ID
Built As
Square Ft
Year Built
Stories
Length
Width
2.00
Utility Building
240
1970
1
20
12
No Additional Details for Building 2
Building 4
AccountNo
Building ID
Occupancy
R4111106
4
Utility Building
ID
Type
NBHD
Occupancy
% Complete
Bedrooms
Baths
4
Out Building
NA
Utility Building
100
0
0.00
ID
Exterior
Roof Cover
Interior
HVAC
Perimeter
Units
Unit Type
Make
4
NA
NA
NA
None
160
0
NA
NA
ID
Square Ft
Condo SF
Total Basement SF
Finished Basement SF
Garage SF
Carport SF
Balcony SF
Porch SF
4
1,584
0
0
0
0
0
0
0
Built As Details for Building 4
ID
Built As
Square Ft
Year Built
Stories
Length
Width
4.00
Utility Building
1,584
1968
1
44
36
Additional Details for Building 4
ID
Detail Type
Description
Units
4
Add On
OB Asphalt Floor
153.00
Building 8
AccountNo
Building ID
Occupancy
R4111106
8
Utility Building
ID
Type
NBHD
Occupancy
% Complete
Bedrooms
Baths
8
Out Building
NA
Utility Building
100
0
0.00
ID
Exterior
Roof Cover
Interior
HVAC
Perimeter
Units
Unit Type
Make
8
NA
NA
NA
None
64
0
NA
NA
ID
Square Ft
Condo SF
Total Basement SF
Finished Basement SF
Garage SF
Carport SF
Balcony SF
Porch SF
8
220
0
0
0
0
0
0
0
Built As Details for Building 8
ID
Built As
Square Ft
Year Built
Stories
Length
Width
8.00
Utility Building
220
1956
1
22
10
No Additional Details for Building 8
Building 9
AccountNo
Building ID
Occupancy
R4111106
9
Utility Building
ID
Type
NBHD
Occupancy
% Complete
Bedrooms
Baths
9
Out Building
NA
Utility Building
100
0
0.00
ID
Exterior
Roof Cover
Interior
HVAC
Perimeter
Units
Unit Type
Make
9
NA
NA
NA
None
192
0
NA
NA
ID
Square Ft
Condo SF
Total Basement SF
Finished Basement SF
Garage SF
Carport SF
Balcony SF
Porch SF
9
2,240
0
0
0
0
0
0
0
Built As Details for Building 9
ID
Built As
Square Ft
Year Built
Stories
Length
Width
9.00
Equipment Building
2,240
1991
1
56
40
No Additional Details for Building 9
Building 10
AccountNo
Building ID
Occupancy
R4111106
10
Shed - Cattle
ID
Type
NBHD
Occupancy
% Complete
Bedrooms
Baths
10
Out Building
NA
Shed - Cattle
100
0
0.00
ID
Exterior
Roof Cover
Interior
HVAC
Perimeter
Units
Unit Type
Make
10
NA
NA
NA
None
40
0
NA
NA
ID
Square Ft
Condo SF
Total Basement SF
Finished Basement SF
Garage SF
Carport SF
Balcony SF
Porch SF
10
200
0
0
0
0
0
0
0
Built As Details for Building 10
ID
Built As
Square Ft
Year Built
Stories
Length
Width
10.00
Shed - Cattle
200
2003
1
20
10
No Additional Details for Building 10
Building 11
AccountNo
Building ID
Occupancy
R4111106
11
Equipment Building
ID
Type
NBHD
Occupancy
% Complete
Bedrooms
Baths
11
Out Building
NA
Equipment Building
100
NA
0.00
ID
Exterior
Roof Cover
Interior
HVAC
Perimeter
Units
Unit Type
Make
11
NA
NA
NA
NA
2018
0
NA
NA
ID
Square Ft
Condo SF
Total Basement SF
Finished Basement SF
Garage SF
Carport SF
Balcony SF
Porch SF
11
2,640
0
0
0
0
0
0
0
Built As Details for Building 11
ID
Built As
Square Ft
Year Built
Stories
Length
Width
11.00
Equipment Building
2,640
2018
1
60
44
No Additional Details for Building 11
Building 12
AccountNo
Building ID
Occupancy
R4111106
12
Shed - Cattle
ID
Type
NBHD
Occupancy
% Complete
Bedrooms
Baths
12
Out Building
NA
Shed - Cattle
100
NA
0.00
ID
Exterior
Roof Cover
Interior
HVAC
Perimeter
Units
Unit Type
Make
12
NA
NA
NA
NA
70
0
NA
NA
ID
Square Ft
Condo SF
Total Basement SF
Finished Basement SF
Garage SF
Carport SF
Balcony SF
Porch SF
12
600
0
0
0
0
0
0
0
Built As Details for Building 12
ID
Built As
Square Ft
Year Built
Stories
Length
Width
12.00
Shed - Cattle
600
1970
1
30
20
No Additional Details for Building 12
Account
Parcel
Account Type
Tax Year
Buildings
Actual Value
Local Govt Assessed Value
School Assessed Value
R4111106
130523100004
Agricultural
2026
8
476,638
64,810
67,260
Type
Code
Description
Actual Value
Local Govt Assessed Value
School Assessed Value
Acres
Land SqFt
Improvement
4277
FARM/RANCH RESIDENCE-IMPS
307,871
19,240
21,700
0.000
0
Improvement
4279
FARM RANCH SUPPORT BLDGS
84,961
22,940
22,940
0.000
0
Land
4117
FLOOD IRRIGATED LAND-AGRICULTURAL
75,720
20,440
20,440
91.500
3,985,740
Land
4127
DRY FARM LAND-AGRICULTURAL
8,070
2,180
2,180
53.110
2,313,472
Land
4167
WASTE LAND
16
10
0
2.380
103,673
Totals
-
-
476,638
64,810
67,260
146.990
6,402,885
Comparable sales for your Residential or Commercial property may be found using our SALES SEARCH TOOL
Values are updated annually on May 1st for Real Property and June 15th for Personal Property and Oil and Gas.
Account
Parcel
Account Type
Tax Year
Buildings
Actual Value
Local Govt Assessed Value
School Assessed Value
R4111106
130523100004
Agricultural
2026
8
476,638
64,810
67,260
Tax Area
District ID
District Name
Local Govt Mill Levy
School Mill Levy
Estimated Taxes
2445
0700
AIMS JUNIOR COLLEGE
6.313
0.000
$409.15
2445
0302
CENTRAL COLORADO WATER (CCW)
0.980
0.000
$63.51
2445
1050
HIGH PLAINS LIBRARY
3.044
0.000
$197.28
2445
0518
S. E. WELD FIRE
10.470
0.000
$678.56
2445
0203
SCHOOL DIST RE3J-KEENESBURG
0.000
15.822
$1,064.19
2445
1208
SOUTHEAST WELD CONSERVATION
0.000
0.000
$0.00
2445
0100
WELD COUNTY
15.956
0.000
$1,034.11
Total
-
-
36.763
15.822
$3,446.80
The estimate of tax is based on the prior year mill levy and the 2025 projected assessment rates. Mill levies and tax estimates will be updated yearly on December 22nd for the current year. Additional information can be found at https://assessor.weld.gov