Account: R4137186

April 5, 2026

Account Parcel Account Type Tax Year Buildings Actual Value Local Govt Assessed Value School Assessed Value
R4137186 096321207007 Residential 2026 1 305,877 19,110 21,560

Legal
KER 9273 L19 EXC N9' & ALL L20-21 BLK8 C & H

Subdivision Block Lot Land Economic Area
CLARK & HILL ADD 8 20 KERSEY RES

Property Address Property City Section Township Range
807 CAMPBELL ST KERSEY 21 05 64




Account Parcel Account Type Tax Year Buildings Actual Value Local Govt Assessed Value School Assessed Value
R4137186 096321207007 Residential 2026 1 305,877 19,110 21,560

Account Owner Name Address
R4137186 SMITH JACK CREDIT SHELTER TRUST 28879 COUNTY ROAD 53 GREELEY, CO 806319790


Account Parcel Account Type Tax Year Buildings Actual Value Local Govt Assessed Value School Assessed Value
R4137186 096321207007 Residential 2026 1 305,877 19,110 21,560

Reception Rec Date Type Grantor Grantee Doc Fee Sale Date Sale Price
01653038 01-29-1975 WDN 0.00 01-01-1900 0
02399505 07-27-1994 QCN 0.00 07-27-1994 0
02403302 08-22-1994 QCN 0.00 08-16-1994 0
2409145 10-03-1994 WD HALL CHARLIE CORLISS HERBERT D & DIANN K 5.54 09-30-1994 55,400
2656814 12-01-1998 WD CORLISS HERBERT D & DIANN K BOTTENBERG JESSIE N & DONNA J 8.60 11-25-1998 86,000
2867335 07-20-2001 QCN BOTTENBERG DONNA J BOTTENBERG JESSIE N 0.00 07-13-2001 0
2867336 07-20-2001 WD BOTTENBERG JESSIE N LABRECHT MICHAEL D 10.60 07-19-2001 106,000
3532733 02-01-2008 WD ALBRECHT MICHAEL D SMITH JACK D & 12.15 02-01-2008 121,500
3840578 04-23-2012 PRDN SMITH JACK D SMITH JACK CREDIT SHELTER TRUST 0.00 04-10-2012 0
4352015 11-13-2017 QCN SMITH ROBERTA I SMITH JACK CREDIT SHELTER TRUST 0.00 11-08-2017 0
95715 NA SUB SUBDIVISION CLARK & HILLS ADD 0.00 NA 0



Account Parcel Account Type Tax Year Buildings Actual Value Local Govt Assessed Value School Assessed Value
R4137186 096321207007 Residential 2026 1 305,877 19,110 21,560

Building 1

AccountNo Building ID Occupancy
R4137186 1 Single Family Residential


ID Type NBHD Occupancy % Complete Bedrooms Baths
1 Residential 6K0003 Single Family Residential 100 3 1.00


ID Exterior Roof Cover Interior HVAC Perimeter Units Unit Type Make
1 Frame Hardboard Composition Shingle Drywall Forced Air 0 0 NA NA


ID Square Ft Condo SF Total Basement SF Finished Basement SF Garage SF Carport SF Balcony SF Porch SF
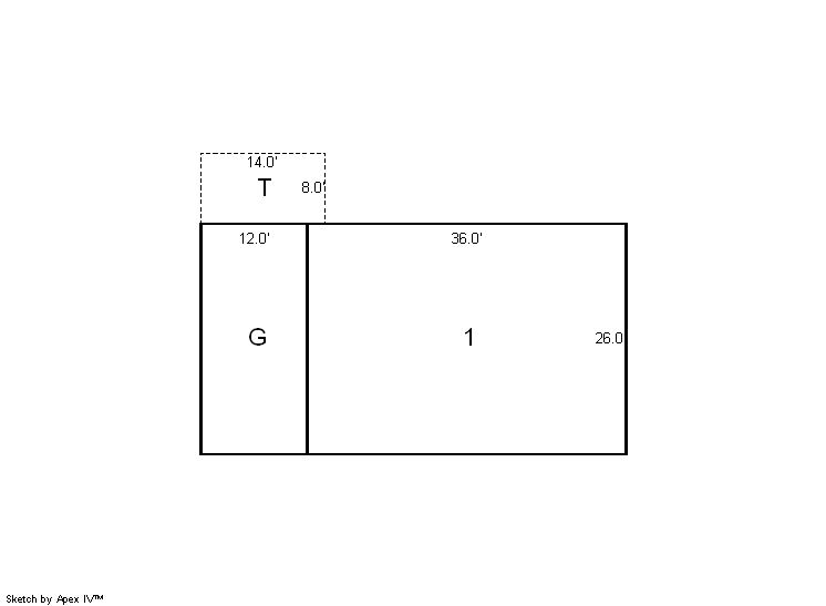
1 936 0 0 0 312 0 0 112


Built As Details for Building 1
ID Built As Square Ft Year Built Stories Length Width
1.00 Ranch 1 Story 936 1973 1 0 0


Additional Details for Building 1
ID Detail Type Description Units
1 Fixture Full Bath 1.00
1 Garage Attached 312.00
1 Porch Open Slab 112.00





Account Parcel Account Type Tax Year Buildings Actual Value Local Govt Assessed Value School Assessed Value
R4137186 096321207007 Residential 2026 1 305,877 19,110 21,560

Type Code Description Actual Value Local Govt Assessed Value School Assessed Value Acres Land SqFt
Improvement 1212 SINGLE FAMILY RESIDENTIAL IMPROVEMENTS 256,377 16,020 18,070 0.000 0
Land 1112 SINGLE FAMILY RESIDENTIAL-LAND 49,500 3,090 3,490 0.189 8,250
Totals - - 305,877 19,110 21,560 0.189 8,250


Account Parcel Account Type Tax Year Buildings Actual Value Local Govt Assessed Value School Assessed Value
R4137186 096321207007 Residential 2026 1 305,877 19,110 21,560

Tax Area District ID District Name Local Govt
Mill Levy
School
Mill Levy
Estimated
Taxes
0782 0700 AIMS JUNIOR COLLEGE 6.313 0.000 $120.64
0782 1050 HIGH PLAINS LIBRARY 3.044 0.000 $58.17
0782 0417 KERSEY TOWN 17.205 0.000 $328.79
0782 0301 NORTHERN COLORADO WATER (NCW) 1.000 0.000 $19.11
0782 0515 PLATTE VALLEY FIRE 5.165 0.000 $98.70
0782 0207 SCHOOL DIST RE7-KERSEY 0.000 11.014 $237.46
0782 0100 WELD COUNTY 15.956 0.000 $304.92
Total - - 48.683 11.014 $1,167.79


The estimate of tax is based on the prior year mill levy and the 2025 projected assessment rates. Mill levies and tax estimates will be updated yearly on December 22nd for the current year. Additional information can be found at https://assessor.weld.gov










Select Reports to Print: