Account: R4277606
April 2, 2026
| Account | Parcel | Account Type | Tax Year | Buildings | Actual Value | Local Govt Assessed Value | School Assessed Value |
|---|---|---|---|---|---|---|---|
| R4277606 | 106107400006 | Residential | 2026 | 2 | 693,154 | 43,320 | 48,860 |
| Legal |
|---|
| PT SE4 7-4-68 LOT A REC EXEMPT RE-4352 |
| Subdivision | Block | Lot | Land Economic Area |
|---|---|---|---|
| BERTHOUD RURAL |
| Property Address | Property City | Section | Township | Range |
|---|---|---|---|---|
| 993 COUNTY ROAD 46 | WELD | 07 | 04 | 68 |
| Account | Parcel | Account Type | Tax Year | Buildings | Actual Value | Local Govt Assessed Value | School Assessed Value |
|---|---|---|---|---|---|---|---|
| R4277606 | 106107400006 | Residential | 2026 | 2 | 693,154 | 43,320 | 48,860 |
| Account | Owner Name | Address |
|---|---|---|
| R4277606 | ROSS BLAINE J | 993 COUNTY ROAD 46 BERTHOUD, CO 805139130 |
| R4277606 | ROSS HOLLY L |
| Account | Parcel | Account Type | Tax Year | Buildings | Actual Value | Local Govt Assessed Value | School Assessed Value |
|---|---|---|---|---|---|---|---|
| R4277606 | 106107400006 | Residential | 2026 | 2 | 693,154 | 43,320 | 48,860 |
| Reception | Rec Date | Type | Grantor | Grantee | Doc Fee | Sale Date | Sale Price |
|---|---|---|---|---|---|---|---|
| 3380232 | 04-18-2006 | RE | RECORDED EXEMPTION | RE-4352 | 0.00 | NA | 0 |
| 3380232 | 04-18-2006 | RE | RE-4352 | RE-4352 | 0.00 | 04-18-2006 | 0 |
| 3383110 | 04-28-2006 | WD | BRACKEN MICKEY L & KATHRYN E | LOCKBAUM MARY JO | 26.05 | 04-26-2006 | 260,500 |
| 3696225 | 05-28-2010 | WD | LOCKBAUM MARY JO | NEELY ALEXIS MARTIN | 32.40 | 05-25-2010 | 324,000 |
| 4103369 | 04-30-2015 | WD | NEELY ALEXIS MARTIN | DUTOIT PHILIP; DUTOIT PATRICIA | 23.29 | 04-27-2015 | 232,900 |
| 4199577 | 04-29-2016 | WD | DUTOIT PHILIP; DUTOIT PATRICIA | ROSS BLAINE J; ROSS HOLLY L | 44.00 | 04-29-2016 | 440,000 |
*If the hyperlink for the reception number does not work, try a manual search in the Clerk and Recorder records. Use the Grantor or Grantee in your search.
| Account | Parcel | Account Type | Tax Year | Buildings | Actual Value | Local Govt Assessed Value | School Assessed Value |
|---|---|---|---|---|---|---|---|
| R4277606 | 106107400006 | Residential | 2026 | 2 | 693,154 | 43,320 | 48,860 |
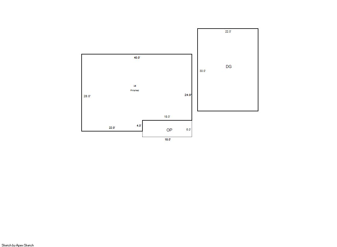
Building 1
| AccountNo | Building ID | Occupancy |
|---|---|---|
| R4277606 | 1 | Single Family Residential |
| ID | Type | NBHD | Occupancy | % Complete | Bedrooms | Baths |
|---|---|---|---|---|---|---|
| 1 | Residential | 0R0061 | Single Family Residential | 100 | 4 | 2.00 |
| ID | Exterior | Roof Cover | Interior | HVAC | Perimeter | Units | Unit Type | Make |
|---|---|---|---|---|---|---|---|---|
| 1 | Frame Shingle | Composition Shingle | Drywall | Central Air to Air | 136 | 0 | NA | NA |
| ID | Square Ft | Condo SF | Total Basement SF | Finished Basement SF | Garage SF | Carport SF | Balcony SF | Porch SF |
|---|---|---|---|---|---|---|---|---|
| 1 | 1,048 | 0 | 1,048 | 1,048 | 660 | 0 | 0 | 108 |
| ID | Built As | Square Ft | Year Built | Stories | Length | Width |
|---|---|---|---|---|---|---|
| 1.00 | Ranch 1 Story | 1,048 | 1950 | 1 | 0 | 0 |
| ID | Detail Type | Description | Units |
|---|---|---|---|
| 1 | Add On | Fireplace Wood | 1.00 |
| 1 | Basement | Finished | 1048.00 |
| 1 | Basement | Total Basement SF | 1048.00 |
| 1 | Fixture | Full Bath | 2.00 |
| 1 | Garage | Detached | 660.00 |
| 1 | Porch | Slab Roof Ceil | 108.00 |
Building 2
| AccountNo | Building ID | Occupancy |
|---|---|---|
| R4277606 | 2 | Shed - Utility |
| ID | Type | NBHD | Occupancy | % Complete | Bedrooms | Baths |
|---|---|---|---|---|---|---|
| 2 | Out Building | NA | Shed - Utility | 100 | 0 | 0.00 |
| ID | Exterior | Roof Cover | Interior | HVAC | Perimeter | Units | Unit Type | Make |
|---|---|---|---|---|---|---|---|---|
| 2 | NA | NA | NA | None | 164 | 0 | NA | NA |
| ID | Square Ft | Condo SF | Total Basement SF | Finished Basement SF | Garage SF | Carport SF | Balcony SF | Porch SF |
|---|---|---|---|---|---|---|---|---|
| 2 | 1,600 | 0 | 0 | 0 | 0 | 0 | 0 | 0 |
| ID | Built As | Square Ft | Year Built | Stories | Length | Width |
|---|---|---|---|---|---|---|
| 2.00 | Shed - Utility | 1,600 | 1965 | 1 | 50 | 32 |
No Additional Details for Building 2
| Account | Parcel | Account Type | Tax Year | Buildings | Actual Value | Local Govt Assessed Value | School Assessed Value |
|---|---|---|---|---|---|---|---|
| R4277606 | 106107400006 | Residential | 2026 | 2 | 693,154 | 43,320 | 48,860 |
| Type | Code | Description | Actual Value | Local Govt Assessed Value | School Assessed Value | Acres | Land SqFt |
|---|---|---|---|---|---|---|---|
| Improvement | 1212 | SINGLE FAMILY RESIDENTIAL IMPROVEMENTS | 485,007 | 30,310 | 34,190 | 0.000 | 0 |
| Land | 1112 | SINGLE FAMILY RESIDENTIAL-LAND | 208,147 | 13,010 | 14,670 | 2.080 | 90,605 |
| Totals | - | - | 693,154 | 43,320 | 48,860 | 2.080 | 90,605 |
Comparable sales for your Residential or Commercial property may be found using our SALES SEARCH TOOL
Values are updated annually on May 1st for Real Property and June 15th for Personal Property and Oil and Gas.
| Account | Parcel | Account Type | Tax Year | Buildings | Actual Value | Local Govt Assessed Value | School Assessed Value |
|---|---|---|---|---|---|---|---|
| R4277606 | 106107400006 | Residential | 2026 | 2 | 693,154 | 43,320 | 48,860 |
| Tax Area | District ID | District Name | Local Govt Mill Levy |
School Mill Levy |
Estimated Taxes |
|---|---|---|---|---|---|
| 5915 | 0502 | BERTHOUD FIRE | 13.342 | 0.000 | $577.98 |
| 5915 | 1050 | HIGH PLAINS LIBRARY | 3.044 | 0.000 | $131.87 |
| 5915 | 1206 | LARIMER CONSERVATION DISTRICT | 0.000 | 0.000 | $0.00 |
| 5915 | 0306 | LITTLE THOMPSON WATER (LTW) | 0.000 | 0.000 | $0.00 |
| 5915 | 0301 | NORTHERN COLORADO WATER (NCW) | 1.000 | 0.000 | $43.32 |
| 5915 | 0214 | SCHOOL DIST R2J-LOVELAND | 0.000 | 44.836 | $2,190.69 |
| 5915 | 0100 | WELD COUNTY | 15.956 | 0.000 | $691.21 |
| Total | - | - | 33.342 | 44.836 | $3,635.06 |
The estimate of tax is based on the prior year mill levy and the 2025 projected assessment rates. Mill levies and tax estimates will be updated yearly on December 22nd for the current year. Additional information can be found at https://assessor.weld.gov


