Account: R4308686

April 5, 2026

Account Parcel Account Type Tax Year Buildings Actual Value Local Govt Assessed Value School Assessed Value
R4308686 105506104017 Residential 2026 2 339,201 21,200 23,910

Legal
LAS 11830 L28-29-30 BLK3 ELLIS

Subdivision Block Lot Land Economic Area
ELLIS ADD 3 28 LA SALLE

Property Address Property City Section Township Range
227 LOCUST ST LA SALLE 06 04 65




Account Parcel Account Type Tax Year Buildings Actual Value Local Govt Assessed Value School Assessed Value
R4308686 105506104017 Residential 2026 2 339,201 21,200 23,910

Account Owner Name Address
R4308686 BISHOP DEBRA A PO BOX 883 227 LOCUST ST LA SALLE, CO 806453107


Account Parcel Account Type Tax Year Buildings Actual Value Local Govt Assessed Value School Assessed Value
R4308686 105506104017 Residential 2026 2 339,201 21,200 23,910

Reception Rec Date Type Grantor Grantee Doc Fee Sale Date Sale Price
01932464 07-05-1983 WDN 0.00 01-01-1900 0
102338 NA SUB SUBDIVISION ELLIS ADD 0.00 NA 0
5049718 08-27-2025 DTHC BISHOP RONALD L BISHOP DEBRA A 0.00 01-05-2025 0
X0011010 07-05-1983 CON BISHOP RONALD L & DEBRA A 4.15 07-05-1983 41,500



Account Parcel Account Type Tax Year Buildings Actual Value Local Govt Assessed Value School Assessed Value
R4308686 105506104017 Residential 2026 2 339,201 21,200 23,910

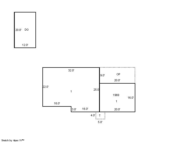
Building 1

AccountNo Building ID Occupancy
R4308686 1 Single Family Residential


ID Type NBHD Occupancy % Complete Bedrooms Baths
1 Residential 6L0050 Single Family Residential 100 2 1.00


ID Exterior Roof Cover Interior HVAC Perimeter Units Unit Type Make
1 Frame Siding Composition Shingle Drywall Forced Air 0 0 NA NA


ID Square Ft Condo SF Total Basement SF Finished Basement SF Garage SF Carport SF Balcony SF Porch SF
1 1,072 0 0 0 240 0 0 180


Built As Details for Building 1
ID Built As Square Ft Year Built Stories Length Width
1.00 Ranch 1 Story 1,072 1950 1 0 0


Additional Details for Building 1
ID Detail Type Description Units
1 Add On Flue Only 1.00
1 Fixture Full Bath 1.00
1 Garage Attached 240.00
1 Porch Open Slab 20.00
1 Porch Slab Roof Ceil 180.00



Building 2

AccountNo Building ID Occupancy
R4308686 2 Shed - Utility


ID Type NBHD Occupancy % Complete Bedrooms Baths
2 Out Building NA Shed - Utility 100 0 0.00


ID Exterior Roof Cover Interior HVAC Perimeter Units Unit Type Make
2 NA NA NA None 140 0 NA NA


ID Square Ft Condo SF Total Basement SF Finished Basement SF Garage SF Carport SF Balcony SF Porch SF
2 1,200 0 0 0 0 0 0 0


Built As Details for Building 2
ID Built As Square Ft Year Built Stories Length Width
2.00 Shed - Utility 1,200 2004 1 40 30

No Additional Details for Building 2






Account Parcel Account Type Tax Year Buildings Actual Value Local Govt Assessed Value School Assessed Value
R4308686 105506104017 Residential 2026 2 339,201 21,200 23,910

Type Code Description Actual Value Local Govt Assessed Value School Assessed Value Acres Land SqFt
Improvement 1212 SINGLE FAMILY RESIDENTIAL IMPROVEMENTS 291,201 18,200 20,530 0.000 0
Land 1112 SINGLE FAMILY RESIDENTIAL-LAND 48,000 3,000 3,380 0.275 12,000
Totals - - 339,201 21,200 23,910 0.275 12,000


Account Parcel Account Type Tax Year Buildings Actual Value Local Govt Assessed Value School Assessed Value
R4308686 105506104017 Residential 2026 2 339,201 21,200 23,910

Tax Area District ID District Name Local Govt
Mill Levy
School
Mill Levy
Estimated
Taxes
0160 0700 AIMS JUNIOR COLLEGE 6.313 0.000 $133.84
0160 1050 HIGH PLAINS LIBRARY 3.044 0.000 $64.53
0160 0511 LASALLE FIRE 5.154 0.000 $109.26
0160 0418 LASALLE TOWN 22.837 0.000 $484.14
0160 0301 NORTHERN COLORADO WATER (NCW) 1.000 0.000 $21.20
0160 0201 SCHOOL DIST RE1-GILCREST 0.000 15.382 $367.78
0160 0100 WELD COUNTY 15.956 0.000 $338.27
Total - - 54.304 15.382 $1,519.03


The estimate of tax is based on the prior year mill levy and the 2025 projected assessment rates. Mill levies and tax estimates will be updated yearly on December 22nd for the current year. Additional information can be found at https://assessor.weld.gov










Select Reports to Print: