Account: R4347686
April 1, 2026
| Account | Parcel | Account Type | Tax Year | Buildings | Actual Value | Local Govt Assessed Value | School Assessed Value |
|---|---|---|---|---|---|---|---|
| R4347686 | 105512000030 | Residential | 2026 | 2 | 625,243 | 39,080 | 44,080 |
| Legal |
|---|
| 11929B PT NE4 12 4 65 BEG 40'W & N01D11'W 1406.13' FROM E4 COR N89D55'W 200.05' S08D02'E 171.63' S08D35'W 900.83' E332.60' THENCE S01D11'E 98' W400' N08D35'E 1000.15' N08D02'W 1389.98' THENCE S89D55'E 50.51' S08D02'E 564.02' S89D55'E 278.53' S01D11'E 648.14' TO POB (.41R) |
| Subdivision | Block | Lot | Land Economic Area |
|---|---|---|---|
| ECON 6 T4 R65-66 RURAL |
| Property Address | Property City | Section | Township | Range |
|---|---|---|---|---|
| 22821 COUNTY ROAD 49 | WELD | 12 | 04 | 65 |
| Account | Parcel | Account Type | Tax Year | Buildings | Actual Value | Local Govt Assessed Value | School Assessed Value |
|---|---|---|---|---|---|---|---|
| R4347686 | 105512000030 | Residential | 2026 | 2 | 625,243 | 39,080 | 44,080 |
| Account | Owner Name | Address |
|---|---|---|
| R4347686 | AMEN ROBERT L | 22821 COUNTY ROAD 49 LA SALLE, CO 806458901 |
| R4347686 | AMEN JUDITH M |
| Account | Parcel | Account Type | Tax Year | Buildings | Actual Value | Local Govt Assessed Value | School Assessed Value |
|---|---|---|---|---|---|---|---|
| R4347686 | 105512000030 | Residential | 2026 | 2 | 625,243 | 39,080 | 44,080 |
| Reception | Rec Date | Type | Grantor | Grantee | Doc Fee | Sale Date | Sale Price |
|---|---|---|---|---|---|---|---|
| 01984079 | 10-04-1984 | WDN | 0.00 | 01-01-1900 | 0 | ||
| 02209458 | 03-30-1990 | DN | 0.00 | 01-01-1900 | 0 | ||
| 2209459 | 03-30-1990 | WD | EASTON CHARLES WESLEY & EVELYN | HOWARD DAVID L | 7.00 | 03-30-1990 | 70,000 |
| 2288845 | 05-21-1992 | WD | HOWARD DAVID L | AMEN ROBERT L & JUDITH M | 9.70 | 05-20-1992 | 97,000 |
| 3848115 | 05-23-2012 | USR | USE BY SPECIAL REVIEW | USR11-0016 12' NATURAL GAS PIPELINE | 0.00 | NA | 0 |
*If the hyperlink for the reception number does not work, try a manual search in the Clerk and Recorder records. Use the Grantor or Grantee in your search.
| Account | Parcel | Account Type | Tax Year | Buildings | Actual Value | Local Govt Assessed Value | School Assessed Value |
|---|---|---|---|---|---|---|---|
| R4347686 | 105512000030 | Residential | 2026 | 2 | 625,243 | 39,080 | 44,080 |
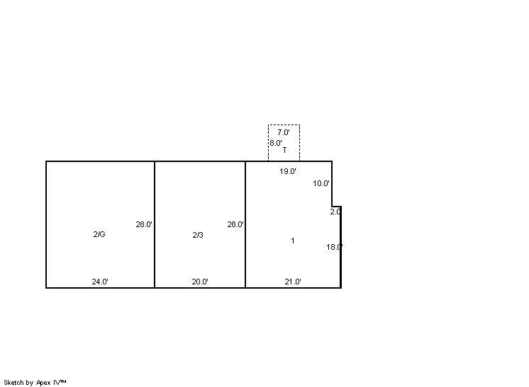
Building 1
| AccountNo | Building ID | Occupancy |
|---|---|---|
| R4347686 | 1 | Single Family Residential |
| ID | Type | NBHD | Occupancy | % Complete | Bedrooms | Baths |
|---|---|---|---|---|---|---|
| 1 | Residential | 6R3007 | Single Family Residential | 100 | 4 | 2.00 |
| ID | Exterior | Roof Cover | Interior | HVAC | Perimeter | Units | Unit Type | Make |
|---|---|---|---|---|---|---|---|---|
| 1 | Frame Hardboard | Composition Shingle | Drywall | Forced Air | 0 | 1 | NA | NA |
| ID | Square Ft | Condo SF | Total Basement SF | Finished Basement SF | Garage SF | Carport SF | Balcony SF | Porch SF |
|---|---|---|---|---|---|---|---|---|
| 1 | 2,360 | 0 | 0 | 0 | 672 | 0 | 0 | 56 |
| ID | Built As | Square Ft | Year Built | Stories | Length | Width |
|---|---|---|---|---|---|---|
| 1.00 | Split Level | 2,360 | 1955 | 1 | 0 | 0 |
| ID | Detail Type | Description | Units |
|---|---|---|---|
| 1 | Add On | Fireplace Wood | 1.00 |
| 1 | Fixture | Full Bath | 1.00 |
| 1 | Fixture | Half Bath | 1.00 |
| 1 | Garage | Built In | 672.00 |
| 1 | Porch | Open Slab | 56.00 |
Building 2
| AccountNo | Building ID | Occupancy |
|---|---|---|
| R4347686 | 2 | Shed - Utility |
| ID | Type | NBHD | Occupancy | % Complete | Bedrooms | Baths |
|---|---|---|---|---|---|---|
| 2 | Out Building | NA | Shed - Utility | 100 | 0 | 0.00 |
| ID | Exterior | Roof Cover | Interior | HVAC | Perimeter | Units | Unit Type | Make |
|---|---|---|---|---|---|---|---|---|
| 2 | NA | NA | NA | None | 204 | 0 | NA | NA |
| ID | Square Ft | Condo SF | Total Basement SF | Finished Basement SF | Garage SF | Carport SF | Balcony SF | Porch SF |
|---|---|---|---|---|---|---|---|---|
| 2 | 2,520 | 0 | 0 | 0 | 0 | 0 | 0 | 0 |
| ID | Built As | Square Ft | Year Built | Stories | Length | Width |
|---|---|---|---|---|---|---|
| 2.00 | Shed - Utility | 2,520 | 2006 | 1 | 0 | 0 |
No Additional Details for Building 2
| Account | Parcel | Account Type | Tax Year | Buildings | Actual Value | Local Govt Assessed Value | School Assessed Value |
|---|---|---|---|---|---|---|---|
| R4347686 | 105512000030 | Residential | 2026 | 2 | 625,243 | 39,080 | 44,080 |
| Type | Code | Description | Actual Value | Local Govt Assessed Value | School Assessed Value | Acres | Land SqFt |
|---|---|---|---|---|---|---|---|
| Improvement | 1212 | SINGLE FAMILY RESIDENTIAL IMPROVEMENTS | 429,944 | 26,870 | 30,310 | 0.000 | 0 |
| Land | 1112 | SINGLE FAMILY RESIDENTIAL-LAND | 195,299 | 12,210 | 13,770 | 6.660 | 290,110 |
| Totals | - | - | 625,243 | 39,080 | 44,080 | 6.660 | 290,110 |
Comparable sales for your Residential or Commercial property may be found using our SALES SEARCH TOOL
Values are updated annually on May 1st for Real Property and June 15th for Personal Property and Oil and Gas.
| Account | Parcel | Account Type | Tax Year | Buildings | Actual Value | Local Govt Assessed Value | School Assessed Value |
|---|---|---|---|---|---|---|---|
| R4347686 | 105512000030 | Residential | 2026 | 2 | 625,243 | 39,080 | 44,080 |
| Tax Area | District ID | District Name | Local Govt Mill Levy |
School Mill Levy |
Estimated Taxes |
|---|---|---|---|---|---|
| 0138 | 0700 | AIMS JUNIOR COLLEGE | 6.313 | 0.000 | $246.71 |
| 0138 | 0302 | CENTRAL COLORADO WATER (CCW) | 0.980 | 0.000 | $38.30 |
| 0138 | 0309 | CENTRAL COLORADO WATER SUBDISTRICT (CCS) | 1.462 | 0.000 | $57.13 |
| 0138 | 0305 | CENTRAL WELD COUNTY WATER (CWC) | 0.000 | 0.000 | $0.00 |
| 0138 | 1050 | HIGH PLAINS LIBRARY | 3.044 | 0.000 | $118.96 |
| 0138 | 0511 | LASALLE FIRE | 5.154 | 0.000 | $201.42 |
| 0138 | 0301 | NORTHERN COLORADO WATER (NCW) | 1.000 | 0.000 | $39.08 |
| 0138 | 0201 | SCHOOL DIST RE1-GILCREST | 0.000 | 15.382 | $678.04 |
| 0138 | 0100 | WELD COUNTY | 15.956 | 0.000 | $623.56 |
| 0138 | 1200 | WEST GREELEY CONSERVATION | 0.414 | 0.000 | $16.18 |
| Total | - | - | 34.323 | 15.382 | $2,019.38 |
The estimate of tax is based on the prior year mill levy and the 2025 projected assessment rates. Mill levies and tax estimates will be updated yearly on December 22nd for the current year. Additional information can be found at https://assessor.weld.gov




