Account: R4353006

April 1, 2026

Account Parcel Account Type Tax Year Buildings Actual Value Local Govt Assessed Value School Assessed Value
R4353006 030315200002 Agricultural 2026 1 362,757 24,590 27,420

Legal
PT E2NW4 15-10-67 LOT B REC EXEMPT RE-4333

Subdivision Block Lot Land Economic Area
CARR RURAL

Property Address Property City Section Township Range
9390 COUNTY ROAD 118 WELD 15 10 67




Account Parcel Account Type Tax Year Buildings Actual Value Local Govt Assessed Value School Assessed Value
R4353006 030315200002 Agricultural 2026 1 362,757 24,590 27,420

Account Owner Name Address
R4353006 TOLLE LEO THOMAS 9108 COUNTY ROAD 118 CARR, CO 806129305
R4353006 TOLLE CASSIE M


Account Parcel Account Type Tax Year Buildings Actual Value Local Govt Assessed Value School Assessed Value
R4353006 030315200002 Agricultural 2026 1 362,757 24,590 27,420

Reception Rec Date Type Grantor Grantee Doc Fee Sale Date Sale Price
3384038 05-02-2006 RE RECORDED EXEMPTION RE-4333 0.00 NA 0
3384038 05-02-2006 RE RE-4333 RE-4333 0.00 05-02-2006 0
3459897 03-05-2007 QCN TOLLE LEO THOMAS & JAIME TOLLE LEO THOMAS 0.00 02-21-2007 0
4193126 04-05-2016 QCN TOLLE LEO THOMAS TOLLE CASSIE M; TOLLE LEO THOMAS 0.00 03-21-2016 0



Account Parcel Account Type Tax Year Buildings Actual Value Local Govt Assessed Value School Assessed Value
R4353006 030315200002 Agricultural 2026 1 362,757 24,590 27,420

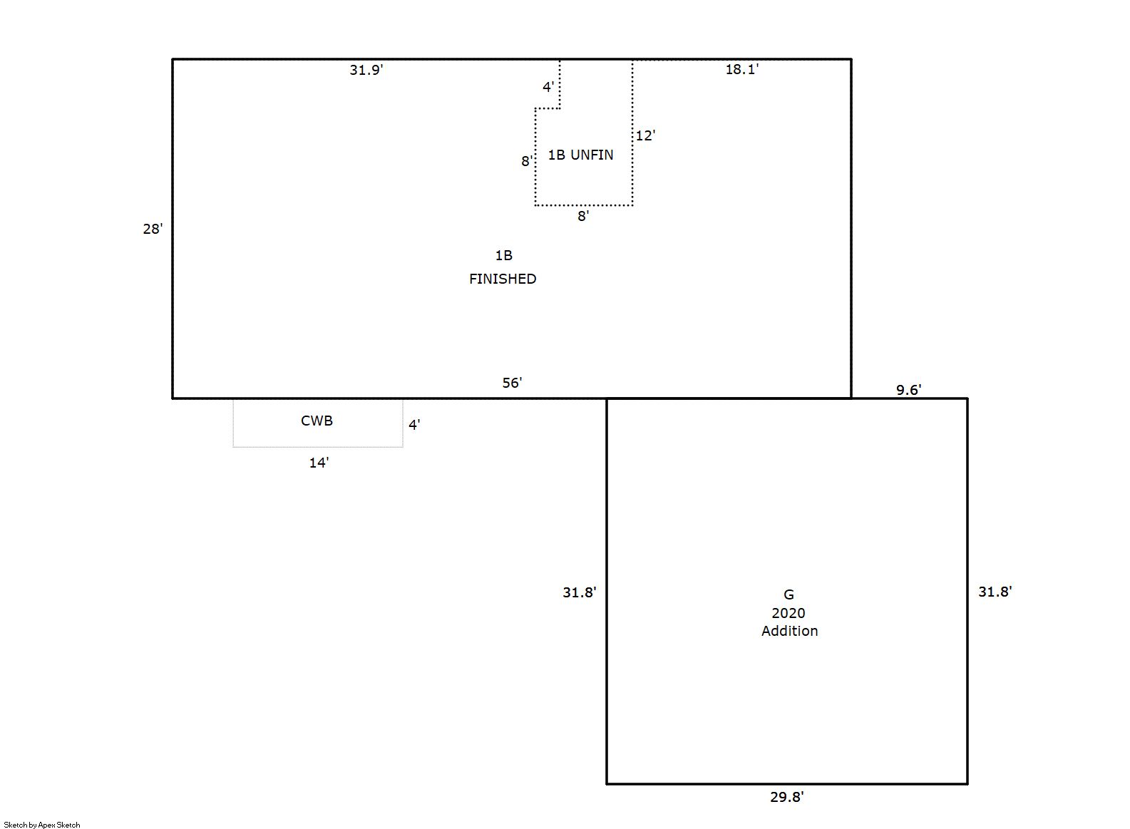
Building 1

AccountNo Building ID Occupancy
R4353006 1 Single Family Residential on Ag


ID Type NBHD Occupancy % Complete Bedrooms Baths
1 Residential 7R0002 Single Family Residential on Ag 100 6 5.00


ID Exterior Roof Cover Interior HVAC Perimeter Units Unit Type Make
1 Frame Hardboard Composition Shingle Drywall Forced Air 168 0 NA NA


ID Square Ft Condo SF Total Basement SF Finished Basement SF Garage SF Carport SF Balcony SF Porch SF
1 1,568 0 1,568 1,480 948 0 56 0


Built As Details for Building 1
ID Built As Square Ft Year Built Stories Length Width
1.00 Modular 1 Story 1,568 2015 1 0 0


Additional Details for Building 1
ID Detail Type Description Units
1 Balcony Cover Wood Balc 56.00
1 Basement Finished 1480.00
1 Basement Total Basement SF 1568.00
1 Fixture Full Bath 4.00
1 Garage Attached 948.00





Account Parcel Account Type Tax Year Buildings Actual Value Local Govt Assessed Value School Assessed Value
R4353006 030315200002 Agricultural 2026 1 362,757 24,590 27,420

Type Code Description Actual Value Local Govt Assessed Value School Assessed Value Acres Land SqFt
Improvement 4277 FARM/RANCH RESIDENCE-IMPS 353,552 22,100 24,930 0.000 0
Land 4127 DRY FARM LAND-AGRICULTURAL 9,205 2,490 2,490 69.744 3,038,049
Totals - - 362,757 24,590 27,420 69.744 3,038,049


Account Parcel Account Type Tax Year Buildings Actual Value Local Govt Assessed Value School Assessed Value
R4353006 030315200002 Agricultural 2026 1 362,757 24,590 27,420

Tax Area District ID District Name Local Govt
Mill Levy
School
Mill Levy
Estimated
Taxes
0915 0700 AIMS JUNIOR COLLEGE 6.313 0.000 $155.24
0915 1050 HIGH PLAINS LIBRARY 3.044 0.000 $74.85
0915 0514 NUNN FIRE 4.096 0.000 $100.72
0915 0209 SCHOOL DIST RE9-AULT 0.000 34.176 $937.11
0915 0100 WELD COUNTY 15.956 0.000 $392.36
0915 1200 WEST GREELEY CONSERVATION 0.414 0.000 $10.18
Total - - 29.823 34.176 $1,670.45


The estimate of tax is based on the prior year mill levy and the 2025 projected assessment rates. Mill levies and tax estimates will be updated yearly on December 22nd for the current year. Additional information can be found at https://assessor.weld.gov










Select Reports to Print: