Account: R4415506
April 4, 2026
| Account | Parcel | Account Type | Tax Year | Buildings | Actual Value | Local Govt Assessed Value | School Assessed Value |
|---|---|---|---|---|---|---|---|
| R4415506 | 055327435033 | Residential | 2026 | 1 | 397,613 | 24,860 | 28,040 |
| Legal |
|---|
| PIE WPC/WA L33 BLK6 WILDERLAND PARK CORR |
| Subdivision | Block | Lot | Land Economic Area |
|---|---|---|---|
| WILDERLAND PARK CORR | 6 | 33 | WILDERLAND PARK |
| Property Address | Property City | Section | Township | Range |
|---|---|---|---|---|
| 608 MOUNTAIN AVE | PIERCE | 27 | 08 | 66 |
| Account | Parcel | Account Type | Tax Year | Buildings | Actual Value | Local Govt Assessed Value | School Assessed Value |
|---|---|---|---|---|---|---|---|
| R4415506 | 055327435033 | Residential | 2026 | 1 | 397,613 | 24,860 | 28,040 |
| Account | Owner Name | Address |
|---|---|---|
| R4415506 | BISHOP BRIAN | 608 MOUNTAIN AVE PIERCE, CO 806501150 |
| Account | Parcel | Account Type | Tax Year | Buildings | Actual Value | Local Govt Assessed Value | School Assessed Value |
|---|---|---|---|---|---|---|---|
| R4415506 | 055327435033 | Residential | 2026 | 1 | 397,613 | 24,860 | 28,040 |
| Reception | Rec Date | Type | Grantor | Grantee | Doc Fee | Sale Date | Sale Price |
|---|---|---|---|---|---|---|---|
| 3304036 | NA | SUB | SUBDIVISION | WILDERLAND PARK CORR | 0.00 | NA | 0 |
| 4293079 | 04-12-2017 | PTD | SMITH STEVEN L | ROCKY MOUNTAIN INVESTMENT GROUP LLC | 0.00 | 04-11-2017 | 0 |
| 4314769 | 06-30-2017 | WD | ROCKY MOUNTAIN INVESTMENT GROUP LLC | CANTERBURY MARY P | 28.99 | 06-29-2017 | 289,900 |
| 4727842 | 06-21-2021 | SWD | CANTERBURY MARY P | BISHOP BRIAN | 37.50 | 06-21-2021 | 375,000 |
*If the hyperlink for the reception number does not work, try a manual search in the Clerk and Recorder records. Use the Grantor or Grantee in your search.
| Account | Parcel | Account Type | Tax Year | Buildings | Actual Value | Local Govt Assessed Value | School Assessed Value |
|---|---|---|---|---|---|---|---|
| R4415506 | 055327435033 | Residential | 2026 | 1 | 397,613 | 24,860 | 28,040 |
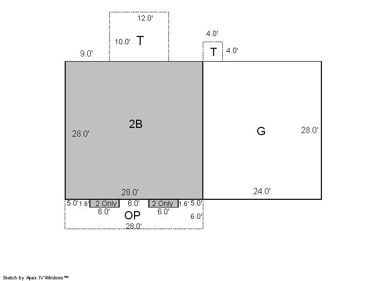
Building 1
| AccountNo | Building ID | Occupancy |
|---|---|---|
| R4415506 | 1 | Single Family Residential |
| ID | Type | NBHD | Occupancy | % Complete | Bedrooms | Baths |
|---|---|---|---|---|---|---|
| 1 | Residential | 8T0009 | Single Family Residential | 100 | 3 | 3.00 |
| ID | Exterior | Roof Cover | Interior | HVAC | Perimeter | Units | Unit Type | Make |
|---|---|---|---|---|---|---|---|---|
| 1 | Frame Vinyl | Composition Shingle | Drywall | Central Air to Air | 0 | 0 | NA | NA |
| ID | Square Ft | Condo SF | Total Basement SF | Finished Basement SF | Garage SF | Carport SF | Balcony SF | Porch SF |
|---|---|---|---|---|---|---|---|---|
| 1 | 1,587 | 0 | 784 | 0 | 672 | 0 | 0 | 149 |
| ID | Built As | Square Ft | Year Built | Stories | Length | Width |
|---|---|---|---|---|---|---|
| 1.00 | Modular 2 Story | 1,587 | 2002 | 2 | 0 | 0 |
| ID | Detail Type | Description | Units |
|---|---|---|---|
| 1 | Basement | Total Basement SF | 784.00 |
| 1 | Fixture | Full Bath | 2.00 |
| 1 | Fixture | Half Bath | 1.00 |
| 1 | Garage | Attached | 672.00 |
| 1 | Porch | Open Slab | 136.00 |
| 1 | Porch | Slab Roof Ceil | 149.00 |
| 1 | Rough In | Rough In | 1.00 |
| Account | Parcel | Account Type | Tax Year | Buildings | Actual Value | Local Govt Assessed Value | School Assessed Value |
|---|---|---|---|---|---|---|---|
| R4415506 | 055327435033 | Residential | 2026 | 1 | 397,613 | 24,860 | 28,040 |
| Type | Code | Description | Actual Value | Local Govt Assessed Value | School Assessed Value | Acres | Land SqFt |
|---|---|---|---|---|---|---|---|
| Improvement | 1212 | SINGLE FAMILY RESIDENTIAL IMPROVEMENTS | 307,613 | 19,230 | 21,690 | 0.000 | 0 |
| Land | 1112 | SINGLE FAMILY RESIDENTIAL-LAND | 90,000 | 5,630 | 6,350 | 0.281 | 12,218 |
| Totals | - | - | 397,613 | 24,860 | 28,040 | 0.281 | 12,218 |
Comparable sales for your Residential or Commercial property may be found using our SALES SEARCH TOOL
Values are updated annually on May 1st for Real Property and June 15th for Personal Property and Oil and Gas.
| Account | Parcel | Account Type | Tax Year | Buildings | Actual Value | Local Govt Assessed Value | School Assessed Value |
|---|---|---|---|---|---|---|---|
| R4415506 | 055327435033 | Residential | 2026 | 1 | 397,613 | 24,860 | 28,040 |
| Tax Area | District ID | District Name | Local Govt Mill Levy |
School Mill Levy |
Estimated Taxes |
|---|---|---|---|---|---|
| 0942 | 0700 | AIMS JUNIOR COLLEGE | 6.313 | 0.000 | $156.94 |
| 0942 | 0501 | AULT FIRE | 7.266 | 0.000 | $180.63 |
| 0942 | 1050 | HIGH PLAINS LIBRARY | 3.044 | 0.000 | $75.67 |
| 0942 | 0301 | NORTHERN COLORADO WATER (NCW) | 1.000 | 0.000 | $24.86 |
| 0942 | 0423 | PIERCE TOWN | 10.476 | 0.000 | $260.43 |
| 0942 | 0209 | SCHOOL DIST RE9-AULT | 0.000 | 34.176 | $958.30 |
| 0942 | 0100 | WELD COUNTY | 15.956 | 0.000 | $396.67 |
| 0942 | 1200 | WEST GREELEY CONSERVATION | 0.414 | 0.000 | $10.29 |
| Total | - | - | 44.469 | 34.176 | $2,063.79 |
The estimate of tax is based on the prior year mill levy and the 2025 projected assessment rates. Mill levies and tax estimates will be updated yearly on December 22nd for the current year. Additional information can be found at https://assessor.weld.gov



