Account: R4417706
April 21, 2026
| Account | Parcel | Account Type | Tax Year | Buildings | Actual Value | Local Govt Assessed Value | School Assessed Value |
|---|---|---|---|---|---|---|---|
| R4417706 | 071328300016 | Residential | 2026 | 1 | 241,514 | 15,090 | 17,030 |
| Legal |
|---|
| PT N2SW4 28-7-63 LOT A REC EXEMPT RE-4403 |
| Subdivision | Block | Lot | Land Economic Area |
|---|---|---|---|
| BRIGGSDALE/ BARNSVILLE RURAL |
| Property Address | Property City | Section | Township | Range |
|---|---|---|---|---|
| 37266 COUNTY ROAD 65 | WELD | 28 | 07 | 63 |
| Account | Parcel | Account Type | Tax Year | Buildings | Actual Value | Local Govt Assessed Value | School Assessed Value |
|---|---|---|---|---|---|---|---|
| R4417706 | 071328300016 | Residential | 2026 | 1 | 241,514 | 15,090 | 17,030 |
| Account | Owner Name | Address |
|---|---|---|
| R4417706 | MARTIN KEVIN S | 37266 COUNTY ROAD 65 GALETON, CO 806229602 |
| R4417706 | MARTIN BRENDA K |
| Account | Parcel | Account Type | Tax Year | Buildings | Actual Value | Local Govt Assessed Value | School Assessed Value |
|---|---|---|---|---|---|---|---|
| R4417706 | 071328300016 | Residential | 2026 | 1 | 241,514 | 15,090 | 17,030 |
| Reception | Rec Date | Type | Grantor | Grantee | Doc Fee | Sale Date | Sale Price |
|---|---|---|---|---|---|---|---|
| 3394686 | 06-08-2006 | RE | RECORDED EXEMPTION | RE-4403 | 0.00 | NA | 0 |
| 3394686 | 06-08-2006 | RE | RE-4403 | RE-4403 | 0.00 | 06-08-2006 | 0 |
| 3396881 | 06-19-2006 | QCN | SMITH SCOTT A & | SMITH SCOTT A & | 0.00 | 06-09-2006 | 0 |
| 3631582 | 06-22-2009 | PTD | SMITH SCOTT A | USA HUD | 0.00 | 06-19-2009 | 0 |
| 3725603 | 10-15-2010 | SWD | SECRETARY OF HOUSING AND URBAN DEVELOPMENT | MARTIN KEVIN S | 1.83 | 10-14-2010 | 18,300 |
*If the hyperlink for the reception number does not work, try a manual search in the Clerk and Recorder records. Use the Grantor or Grantee in your search.
| Account | Parcel | Account Type | Tax Year | Buildings | Actual Value | Local Govt Assessed Value | School Assessed Value |
|---|---|---|---|---|---|---|---|
| R4417706 | 071328300016 | Residential | 2026 | 1 | 241,514 | 15,090 | 17,030 |
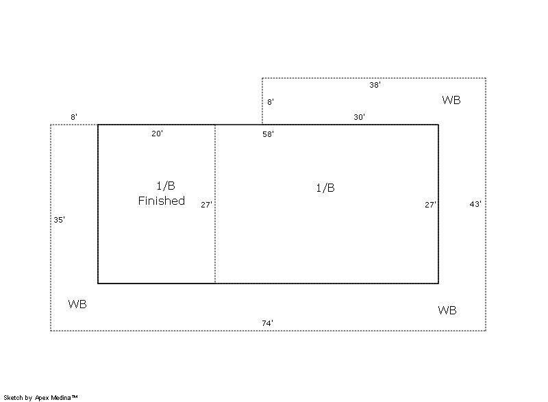
Building 1
| AccountNo | Building ID | Occupancy |
|---|---|---|
| R4417706 | 1 | Single Family Residential |
| ID | Type | NBHD | Occupancy | % Complete | Bedrooms | Baths |
|---|---|---|---|---|---|---|
| 1 | Manufactured Hm | 7R0003 | Single Family Residential | 100 | 3 | 2.00 |
| ID | Exterior | Roof Cover | Interior | HVAC | Perimeter | Units | Unit Type | Make |
|---|---|---|---|---|---|---|---|---|
| 1 | Hardboard Sheet | Shingle Comp | Drywall | Forced Air | 0 | 1 | NA | NA |
| ID | Square Ft | Condo SF | Total Basement SF | Finished Basement SF | Garage SF | Carport SF | Balcony SF | Porch SF |
|---|---|---|---|---|---|---|---|---|
| 1 | 1,566 | 0 | 1,566 | 540 | 0 | 0 | 1,328 | 0 |
| ID | Built As | Square Ft | Year Built | Stories | Length | Width |
|---|---|---|---|---|---|---|
| 1.00 | Mnfctrd Home 1 Story | 1,566 | 1995 | 1 | 58 | 27 |
| ID | Detail Type | Description | Units |
|---|---|---|---|
| 1 | Add On | Heat Evaporative Coolers | 1.00 |
| 1 | Balcony | Wood Wood Fin | 1328.00 |
| 1 | Basement | Finished | 540.00 |
| 1 | Basement | Total Basement SF | 1566.00 |
| 1 | Basement | Walkout | 1.00 |
| 1 | Fixture | Full Bath | 2.00 |
| Account | Parcel | Account Type | Tax Year | Buildings | Actual Value | Local Govt Assessed Value | School Assessed Value |
|---|---|---|---|---|---|---|---|
| R4417706 | 071328300016 | Residential | 2026 | 1 | 241,514 | 15,090 | 17,030 |
| Type | Code | Description | Actual Value | Local Govt Assessed Value | School Assessed Value | Acres | Land SqFt |
|---|---|---|---|---|---|---|---|
| Improvement | 1212 | SINGLE FAMILY RESIDENTIAL IMPROVEMENTS | 153,339 | 9,580 | 10,810 | 0.000 | 0 |
| Land | 1112 | SINGLE FAMILY RESIDENTIAL-LAND | 88,175 | 5,510 | 6,220 | 4.690 | 204,296 |
| Totals | - | - | 241,514 | 15,090 | 17,030 | 4.690 | 204,296 |
Comparable sales for your Residential or Commercial property may be found using our SALES SEARCH TOOL
Values are updated annually on May 1st for Real Property and June 15th for Personal Property and Oil and Gas.
| Account | Parcel | Account Type | Tax Year | Buildings | Actual Value | Local Govt Assessed Value | School Assessed Value |
|---|---|---|---|---|---|---|---|
| R4417706 | 071328300016 | Residential | 2026 | 1 | 241,514 | 15,090 | 17,030 |
| Tax Area | District ID | District Name | Local Govt Mill Levy |
School Mill Levy |
Estimated Taxes |
|---|---|---|---|---|---|
| 5048 | 0700 | AIMS JUNIOR COLLEGE | 6.313 | 0.000 | $95.26 |
| 5048 | 0911 | EATON AREA PARK AND RECREATION DISTRICT | 5.425 | 0.000 | $81.86 |
| 5048 | 0508 | GALETON FIRE | 4.000 | 0.000 | $60.36 |
| 5048 | 1050 | HIGH PLAINS LIBRARY | 3.044 | 0.000 | $45.93 |
| 5048 | 0202 | SCHOOL DIST RE2-EATON | 0.000 | 34.206 | $582.53 |
| 5048 | 0100 | WELD COUNTY | 15.956 | 0.000 | $240.78 |
| 5048 | 1200 | WEST GREELEY CONSERVATION | 0.414 | 0.000 | $6.25 |
| Total | - | - | 35.152 | 34.206 | $1,112.97 |
The estimate of tax is based on the prior year mill levy and the 2025 projected assessment rates. Mill levies and tax estimates will be updated yearly on December 22nd for the current year. Additional information can be found at https://assessor.weld.gov



