*If the hyperlink for the reception number does not work, try a manual search in the Clerk and Recorder records. Use the Grantor or Grantee in your search.
Account
Parcel
Account Type
Tax Year
Buildings
Actual Value
Local Govt Assessed Value
School Assessed Value
R4489806
130515100003
Agricultural
2026
7
561,746
44,210
48,340
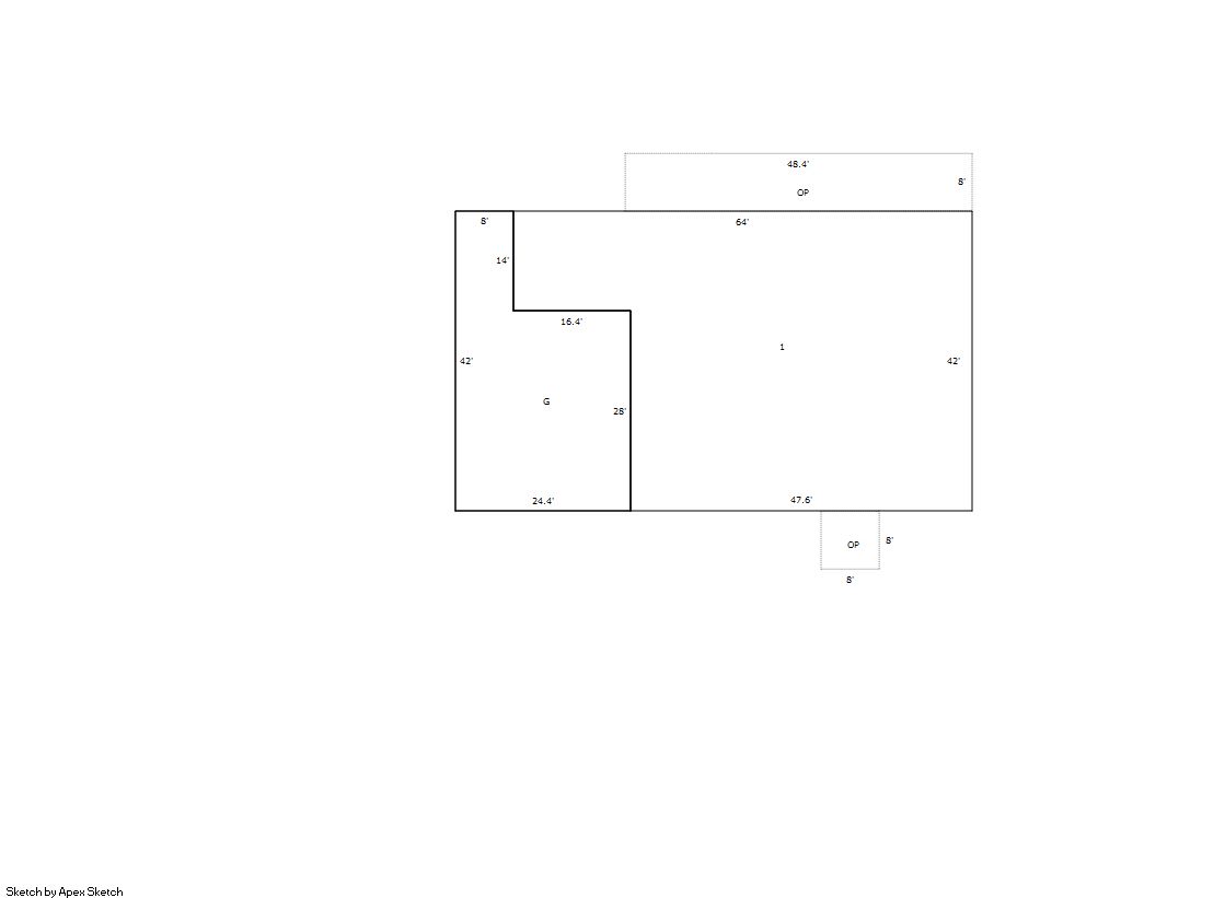
Building 1
AccountNo
Building ID
Occupancy
R4489806
1
Single Family Residential on Ag
ID
Type
NBHD
Occupancy
% Complete
Bedrooms
Baths
1
Residential
5R0006
Single Family Residential on Ag
100
3
3.00
ID
Exterior
Roof Cover
Interior
HVAC
Perimeter
Units
Unit Type
Make
1
Frame Aluminum
Formed Seam Metal
Drywall
Central Air to Air
212
0
NA
NA
ID
Square Ft
Condo SF
Total Basement SF
Finished Basement SF
Garage SF
Carport SF
Balcony SF
Porch SF
1
2,229
0
0
0
795
0
0
451
Built As Details for Building 1
ID
Built As
Square Ft
Year Built
Stories
Length
Width
1.00
Ranch 1 Story
2,229
2015
1
0
0
Additional Details for Building 1
ID
Detail Type
Description
Units
1
Fixture
Full Bath
2.00
1
Fixture
Half Bath
1.00
1
Garage
Attached
795.00
1
Porch
Slab Roof Ceil
451.00
Building 2
AccountNo
Building ID
Occupancy
R4489806
2
Equipment Building
ID
Type
NBHD
Occupancy
% Complete
Bedrooms
Baths
2
Out Building
NA
Equipment Building
100
NA
0.00
ID
Exterior
Roof Cover
Interior
HVAC
Perimeter
Units
Unit Type
Make
2
NA
NA
NA
NA
200
0
NA
NA
ID
Square Ft
Condo SF
Total Basement SF
Finished Basement SF
Garage SF
Carport SF
Balcony SF
Porch SF
2
2,400
0
0
0
0
0
0
0
Built As Details for Building 2
ID
Built As
Square Ft
Year Built
Stories
Length
Width
2.00
Equipment Building
2,400
2021
1
40
60
No Additional Details for Building 2
Building 3
AccountNo
Building ID
Occupancy
R4489806
3
Shed - Cattle
ID
Type
NBHD
Occupancy
% Complete
Bedrooms
Baths
3
Out Building
NA
Shed - Cattle
100
NA
0.00
ID
Exterior
Roof Cover
Interior
HVAC
Perimeter
Units
Unit Type
Make
3
NA
NA
NA
NA
48
0
NA
NA
ID
Square Ft
Condo SF
Total Basement SF
Finished Basement SF
Garage SF
Carport SF
Balcony SF
Porch SF
3
144
0
0
0
0
0
0
0
Built As Details for Building 3
ID
Built As
Square Ft
Year Built
Stories
Length
Width
3.00
Shed - Cattle
144
2021
1
12
12
No Additional Details for Building 3
Building 6
AccountNo
Building ID
Occupancy
R4489806
6
Shed - Cattle
ID
Type
NBHD
Occupancy
% Complete
Bedrooms
Baths
6
Out Building
NA
Shed - Cattle
100
NA
0.00
ID
Exterior
Roof Cover
Interior
HVAC
Perimeter
Units
Unit Type
Make
6
NA
NA
NA
NA
48
0
NA
NA
ID
Square Ft
Condo SF
Total Basement SF
Finished Basement SF
Garage SF
Carport SF
Balcony SF
Porch SF
6
144
0
0
0
0
0
0
0
Built As Details for Building 6
ID
Built As
Square Ft
Year Built
Stories
Length
Width
6.00
Shed - Cattle
144
2021
1
12
12
No Additional Details for Building 6
Building 9
AccountNo
Building ID
Occupancy
R4489806
9
Shed - Cattle
ID
Type
NBHD
Occupancy
% Complete
Bedrooms
Baths
9
Out Building
NA
Shed - Cattle
100
NA
0.00
ID
Exterior
Roof Cover
Interior
HVAC
Perimeter
Units
Unit Type
Make
9
NA
NA
NA
NA
48
0
NA
NA
ID
Square Ft
Condo SF
Total Basement SF
Finished Basement SF
Garage SF
Carport SF
Balcony SF
Porch SF
9
144
0
0
0
0
0
0
0
Built As Details for Building 9
ID
Built As
Square Ft
Year Built
Stories
Length
Width
9.00
Shed - Cattle
144
2021
1
12
12
No Additional Details for Building 9
Building 10
AccountNo
Building ID
Occupancy
R4489806
10
Shed - Cattle
ID
Type
NBHD
Occupancy
% Complete
Bedrooms
Baths
10
Out Building
NA
Shed - Cattle
100
NA
0.00
ID
Exterior
Roof Cover
Interior
HVAC
Perimeter
Units
Unit Type
Make
10
NA
NA
NA
NA
48
0
NA
NA
ID
Square Ft
Condo SF
Total Basement SF
Finished Basement SF
Garage SF
Carport SF
Balcony SF
Porch SF
10
144
0
0
0
0
0
0
0
Built As Details for Building 10
ID
Built As
Square Ft
Year Built
Stories
Length
Width
10.00
Shed - Cattle
144
2021
1
12
12
No Additional Details for Building 10
Building 11
AccountNo
Building ID
Occupancy
R4489806
11
Utility Building
ID
Type
NBHD
Occupancy
% Complete
Bedrooms
Baths
11
Out Building
NA
Utility Building
100
NA
0.00
ID
Exterior
Roof Cover
Interior
HVAC
Perimeter
Units
Unit Type
Make
11
NA
NA
NA
NA
80
0
NA
NA
ID
Square Ft
Condo SF
Total Basement SF
Finished Basement SF
Garage SF
Carport SF
Balcony SF
Porch SF
11
400
0
0
0
0
0
0
0
Built As Details for Building 11
ID
Built As
Square Ft
Year Built
Stories
Length
Width
11.00
Utility Building
400
2021
1
20
20
No Additional Details for Building 11
Account
Parcel
Account Type
Tax Year
Buildings
Actual Value
Local Govt Assessed Value
School Assessed Value
R4489806
130515100003
Agricultural
2026
7
561,746
44,210
48,340
Type
Code
Description
Actual Value
Local Govt Assessed Value
School Assessed Value
Acres
Land SqFt
Improvement
4277
FARM/RANCH RESIDENCE-IMPS
517,929
32,370
36,510
0.000
0
Improvement
4279
FARM RANCH SUPPORT BLDGS
43,635
11,780
11,780
0.000
0
Land
4147
GRAZING LAND-AGRICULTURAL
180
50
50
7.070
307,969
Land
4167
WASTE LAND
2
10
0
0.300
13,068
Totals
-
-
561,746
44,210
48,340
7.370
321,037
Comparable sales for your Residential or Commercial property may be found using our SALES SEARCH TOOL
Values are updated annually on May 1st for Real Property and June 15th for Personal Property and Oil and Gas.
Account
Parcel
Account Type
Tax Year
Buildings
Actual Value
Local Govt Assessed Value
School Assessed Value
R4489806
130515100003
Agricultural
2026
7
561,746
44,210
48,340
Tax Area
District ID
District Name
Local Govt Mill Levy
School Mill Levy
Estimated Taxes
2445
0700
AIMS JUNIOR COLLEGE
6.313
0.000
$279.10
2445
0302
CENTRAL COLORADO WATER (CCW)
0.980
0.000
$43.33
2445
1050
HIGH PLAINS LIBRARY
3.044
0.000
$134.58
2445
0518
S. E. WELD FIRE
10.470
0.000
$462.88
2445
0203
SCHOOL DIST RE3J-KEENESBURG
0.000
15.822
$764.84
2445
1208
SOUTHEAST WELD CONSERVATION
0.000
0.000
$0.00
2445
0100
WELD COUNTY
15.956
0.000
$705.41
Total
-
-
36.763
15.822
$2,390.13
The estimate of tax is based on the prior year mill levy and the 2025 projected assessment rates. Mill levies and tax estimates will be updated yearly on December 22nd for the current year. Additional information can be found at https://assessor.weld.gov