Account: R4491586
April 1, 2026
| Account | Parcel | Account Type | Tax Year | Buildings | Actual Value | Local Govt Assessed Value | School Assessed Value |
|---|---|---|---|---|---|---|---|
| R4491586 | 105905300005 | Residential | 2026 | 1 | 441,720 | 27,610 | 31,140 |
| Legal |
|---|
| 21435B PT S2SW4 5 4 67 BEG 208'S & 292.4'E OF NW COR S2SW4 E125' S209.4' W125' N209' TO BEG |
| Subdivision | Block | Lot | Land Economic Area |
|---|---|---|---|
| JOHNSTOWN RURAL |
| Property Address | Property City | Section | Township | Range |
|---|---|---|---|---|
| 1207 N PARK AVE | WELD | 05 | 04 | 67 |
| Account | Parcel | Account Type | Tax Year | Buildings | Actual Value | Local Govt Assessed Value | School Assessed Value |
|---|---|---|---|---|---|---|---|
| R4491586 | 105905300005 | Residential | 2026 | 1 | 441,720 | 27,610 | 31,140 |
| Account | Owner Name | Address |
|---|---|---|
| R4491586 | AINSWORTH JANNA LEA | 1207 N PARK AVE JOHNSTOWN, CO 805348815 |
| R4491586 | AINSWORTH CORY JOE |
| Account | Parcel | Account Type | Tax Year | Buildings | Actual Value | Local Govt Assessed Value | School Assessed Value |
|---|---|---|---|---|---|---|---|
| R4491586 | 105905300005 | Residential | 2026 | 1 | 441,720 | 27,610 | 31,140 |
| Reception | Rec Date | Type | Grantor | Grantee | Doc Fee | Sale Date | Sale Price |
|---|---|---|---|---|---|---|---|
| 3999131 | 02-28-2014 | DTHC | TREGONING BARBARA JANE | TREGONING BARBARA JANE | 0.00 | 09-18-2013 | 0 |
| 3999132 | 02-28-2014 | QCN | TREGONING IRVIN L | AINSWORTH JANNA L | 0.00 | 02-28-2014 | 0 |
| 4849967 | 08-19-2022 | QCN | AINSWORTH JANNA L; AINSWORTH BOBBY J | AINSWORTH BOBBY JOE; AINSWORTH CORY JOE; AINSWORTH JANNA LEA | 0.00 | 08-19-2022 | 0 |
| 4866313 | 11-09-2022 | DTHC | AINSWORTH BOBBY JOE | AINSWORTH JANNA LEA; AINSWORTH CORY JOE | 0.00 | 09-24-2022 | 0 |
*If the hyperlink for the reception number does not work, try a manual search in the Clerk and Recorder records. Use the Grantor or Grantee in your search.
| Account | Parcel | Account Type | Tax Year | Buildings | Actual Value | Local Govt Assessed Value | School Assessed Value |
|---|---|---|---|---|---|---|---|
| R4491586 | 105905300005 | Residential | 2026 | 1 | 441,720 | 27,610 | 31,140 |
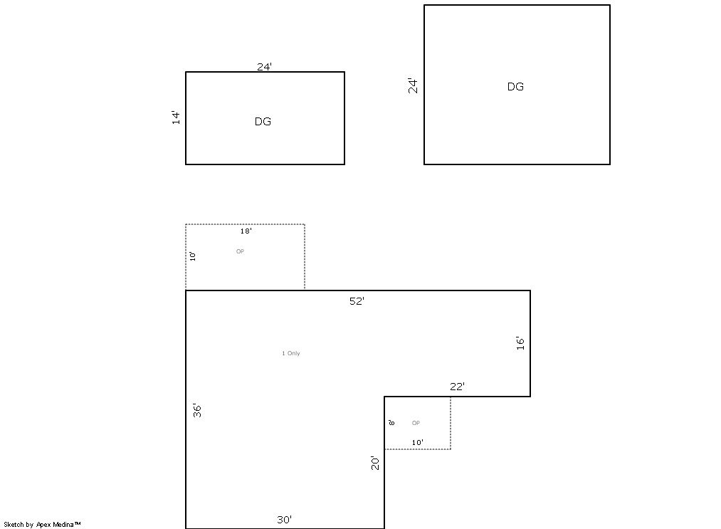
Building 1
| AccountNo | Building ID | Occupancy |
|---|---|---|
| R4491586 | 1 | Single Family Residential |
| ID | Type | NBHD | Occupancy | % Complete | Bedrooms | Baths |
|---|---|---|---|---|---|---|
| 1 | Residential | 0J3075 | Single Family Residential | 100 | 3 | 1.00 |
| ID | Exterior | Roof Cover | Interior | HVAC | Perimeter | Units | Unit Type | Make |
|---|---|---|---|---|---|---|---|---|
| 1 | Frame Hardboard | Composition Shingle | Plaster | Forced Air | 0 | 0 | NA | NA |
| ID | Square Ft | Condo SF | Total Basement SF | Finished Basement SF | Garage SF | Carport SF | Balcony SF | Porch SF |
|---|---|---|---|---|---|---|---|---|
| 1 | 1,432 | 0 | 0 | 0 | 1,008 | 0 | 0 | 260 |
| ID | Built As | Square Ft | Year Built | Stories | Length | Width |
|---|---|---|---|---|---|---|
| 1.00 | Ranch 1 Story | 1,432 | 1954 | 1 | 0 | 0 |
| ID | Detail Type | Description | Units |
|---|---|---|---|
| 1 | Add On | Fireplace Gas | 1.00 |
| 1 | Fixture | Full Bath | 1.00 |
| 1 | Garage | Detached | 1008.00 |
| 1 | Porch | Slab Roof Ceil | 260.00 |
| Account | Parcel | Account Type | Tax Year | Buildings | Actual Value | Local Govt Assessed Value | School Assessed Value |
|---|---|---|---|---|---|---|---|
| R4491586 | 105905300005 | Residential | 2026 | 1 | 441,720 | 27,610 | 31,140 |
| Type | Code | Description | Actual Value | Local Govt Assessed Value | School Assessed Value | Acres | Land SqFt |
|---|---|---|---|---|---|---|---|
| Improvement | 1212 | SINGLE FAMILY RESIDENTIAL IMPROVEMENTS | 335,512 | 20,970 | 23,650 | 0.000 | 0 |
| Land | 1112 | SINGLE FAMILY RESIDENTIAL-LAND | 106,208 | 6,640 | 7,490 | 0.500 | 21,780 |
| Totals | - | - | 441,720 | 27,610 | 31,140 | 0.500 | 21,780 |
Comparable sales for your Residential or Commercial property may be found using our SALES SEARCH TOOL
Values are updated annually on May 1st for Real Property and June 15th for Personal Property and Oil and Gas.
| Account | Parcel | Account Type | Tax Year | Buildings | Actual Value | Local Govt Assessed Value | School Assessed Value |
|---|---|---|---|---|---|---|---|
| R4491586 | 105905300005 | Residential | 2026 | 1 | 441,720 | 27,610 | 31,140 |
| Tax Area | District ID | District Name | Local Govt Mill Levy |
School Mill Levy |
Estimated Taxes |
|---|---|---|---|---|---|
| 2366 | 0700 | AIMS JUNIOR COLLEGE | 6.313 | 0.000 | $174.30 |
| 2366 | 0510 | FRONT RANGE FIRE RESCUE FIRE PROTECTION DISTRICT | 11.483 | 0.000 | $317.05 |
| 2366 | 1050 | HIGH PLAINS LIBRARY | 3.044 | 0.000 | $84.04 |
| 2366 | 1206 | LARIMER CONSERVATION DISTRICT | 0.000 | 0.000 | $0.00 |
| 2366 | 0301 | NORTHERN COLORADO WATER (NCW) | 1.000 | 0.000 | $27.61 |
| 2366 | 0205 | SCHOOL DIST RE5J-JOHNSTOWN | 0.000 | 36.271 | $1,129.48 |
| 2366 | 0901 | THOMPSON RIVER REC | 3.594 | 0.000 | $99.23 |
| 2366 | 0100 | WELD COUNTY | 15.956 | 0.000 | $440.55 |
| Total | - | - | 41.39 | 36.271 | $2,272.26 |
The estimate of tax is based on the prior year mill levy and the 2025 projected assessment rates. Mill levies and tax estimates will be updated yearly on December 22nd for the current year. Additional information can be found at https://assessor.weld.gov



