Account: R4497906
December 13, 2025
| Account | Parcel | Account Type | Tax Year | Buildings | Actual Value | Local Govt Assessed Value | School Assessed Value |
|---|---|---|---|---|---|---|---|
| R4497906 | 070509301006 | Residential | 2025 | 1 | 1,198,815 | 74,920 | 84,520 |
| Legal |
|---|
| SEV SP L6 SADDLER PUD |
| Subdivision | Block | Lot | Land Economic Area |
|---|---|---|---|
| SADDLER PUD | 6 | SADDLER WEST |
| Property Address | Property City | Section | Township | Range |
|---|---|---|---|---|
| 3941 ROPER TRL | SEVERANCE | 09 | 07 | 67 |
| Account | Parcel | Account Type | Tax Year | Buildings | Actual Value | Local Govt Assessed Value | School Assessed Value |
|---|---|---|---|---|---|---|---|
| R4497906 | 070509301006 | Residential | 2025 | 1 | 1,198,815 | 74,920 | 84,520 |
| Account | Owner Name | Address |
|---|---|---|
| R4497906 | BUCHHOLZ TROY | 3941 ROPER TRL SEVERANCE, CO 805248611 |
| R4497906 | BUCHHOLZ KASEY |
| Account | Parcel | Account Type | Tax Year | Buildings | Actual Value | Local Govt Assessed Value | School Assessed Value |
|---|---|---|---|---|---|---|---|
| R4497906 | 070509301006 | Residential | 2025 | 1 | 1,198,815 | 74,920 | 84,520 |
| Reception | Rec Date | Type | Grantor | Grantee | Doc Fee | Sale Date | Sale Price |
|---|---|---|---|---|---|---|---|
| 3409109 | NA | SUB | SUBDIVISION | SADDLER PUD | 0.00 | NA | 0 |
| 3585944 | 10-23-2008 | QCN | BRIDLE HILL DEVELOPMENT LLC | CROWLEY GAIL C | 0.00 | 10-22-2008 | 0 |
| 4235007 | 09-08-2016 | WD | CROWLEY GAIL C | BOND TYLER; BOND JESSECA | 13.95 | 09-02-2016 | 139,500 |
| 4970414 | 07-11-2024 | WD | BOND JESSECA; BOND TYLER | BUCHHOLZ TROY; BUCHHOLZ KASEY | 117.00 | 07-10-2024 | 1,170,000 |
*If the hyperlink for the reception number does not work, try a manual search in the Clerk and Recorder records. Use the Grantor or Grantee in your search.
| Account | Parcel | Account Type | Tax Year | Buildings | Actual Value | Local Govt Assessed Value | School Assessed Value |
|---|---|---|---|---|---|---|---|
| R4497906 | 070509301006 | Residential | 2025 | 1 | 1,198,815 | 74,920 | 84,520 |
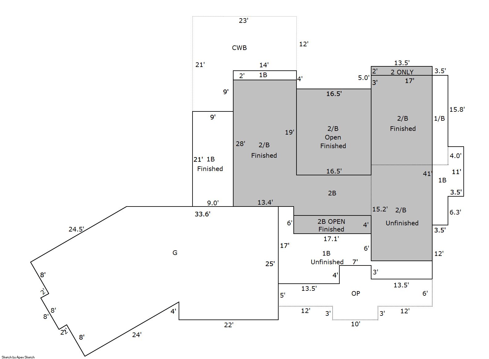
Building 1
| AccountNo | Building ID | Occupancy |
|---|---|---|
| R4497906 | 1 | Single Family Residential |
| ID | Type | NBHD | Occupancy | % Complete | Bedrooms | Baths |
|---|---|---|---|---|---|---|
| 1 | Residential | 2R1004 | Single Family Residential | 100 | 7 | 5.00 |
| ID | Exterior | Roof Cover | Interior | HVAC | Perimeter | Units | Unit Type | Make |
|---|---|---|---|---|---|---|---|---|
| 1 | Frame Hardboard | Composition Shingle | Drywall | Central Air to Air | 517 | 0 | NA | NA |
| ID | Square Ft | Condo SF | Total Basement SF | Finished Basement SF | Garage SF | Carport SF | Balcony SF | Porch SF |
|---|---|---|---|---|---|---|---|---|
| 1 | 3,244 | 0 | 2,122 | 1,504 | 1,270 | 0 | 357 | 242 |
| ID | Built As | Square Ft | Year Built | Stories | Length | Width |
|---|---|---|---|---|---|---|
| 1.00 | 2 Story | 3,244 | 2017 | 1 | 0 | 0 |
| ID | Detail Type | Description | Units |
|---|---|---|---|
| 1 | Add On | Fireplace Gas | 1.00 |
| 1 | Balcony | Cover Wood Balc | 357.00 |
| 1 | Basement | Finished | 1504.00 |
| 1 | Basement | Full Daylight | 1.00 |
| 1 | Basement | Total Basement SF | 2122.00 |
| 1 | Fixture | Full Bath | 4.00 |
| 1 | Fixture | Half Bath | 1.00 |
| 1 | Fixture | Wet Bar | 1.00 |
| 1 | Garage | Attached | 1270.00 |
| 1 | Porch | Slab Roof Ceil | 242.00 |
| Account | Parcel | Account Type | Tax Year | Buildings | Actual Value | Local Govt Assessed Value | School Assessed Value |
|---|---|---|---|---|---|---|---|
| R4497906 | 070509301006 | Residential | 2025 | 1 | 1,198,815 | 74,920 | 84,520 |
| Type | Code | Description | Actual Value | Local Govt Assessed Value | School Assessed Value | Acres | Land SqFt |
|---|---|---|---|---|---|---|---|
| Improvement | 1212 | SINGLE FAMILY RESIDENTIAL IMPROVEMENTS | 1,006,315 | 62,890 | 70,950 | 0.000 | 0 |
| Land | 1112 | SINGLE FAMILY RESIDENTIAL-LAND | 192,500 | 12,030 | 13,570 | 0.500 | 21,780 |
| Totals | - | - | 1,198,815 | 74,920 | 84,520 | 0.500 | 21,780 |
Comparable sales for your Residential or Commercial property may be found using our SALES SEARCH TOOL
Values are updated annually on May 1st for Real Property and June 15th for Personal Property and Oil and Gas.
| Account | Parcel | Account Type | Tax Year | Buildings | Actual Value | Local Govt Assessed Value | School Assessed Value |
|---|---|---|---|---|---|---|---|
| R4497906 | 070509301006 | Residential | 2025 | 1 | 1,198,815 | 74,920 | 84,520 |
| Tax Area | District ID | District Name | Local Govt Mill Levy |
School Mill Levy |
Estimated Taxes |
|---|---|---|---|---|---|
| 3953 | 0700 | AIMS JUNIOR COLLEGE | 6.305 | 0.000 | $472.37 |
| 3953 | 1051 | CLEARVIEW LIBRARY | 3.546 | 0.000 | $265.67 |
| 3953 | 1206 | LARIMER CONSERVATION DISTRICT | 0.000 | 0.000 | $0.00 |
| 3953 | 0304 | NORTH WELD COUNTY WATER (NWC) | 0.000 | 0.000 | $0.00 |
| 3953 | 0301 | NORTHERN COLORADO WATER (NCW) | 1.000 | 0.000 | $74.92 |
| 3953 | 1346 | SADDLER RIDGE METRO | 72.366 | 0.000 | $5,421.66 |
| 3953 | 0204 | SCHOOL DIST RE4-WINDSOR | 0.000 | 48.319 | $4,083.92 |
| 3953 | 0427 | SEVERANCE TOWN | 12.635 | 0.000 | $946.61 |
| 3953 | 0100 | WELD COUNTY | 15.956 | 0.000 | $1,195.42 |
| 3953 | 0521 | WINDSOR-SEVERANCE FIRE | 8.250 | 0.000 | $618.09 |
| Total | - | - | 120.058 | 48.319 | $13,078.67 |
The estimate of tax is based on the prior year mill levy and the 2025 assessment rates. Mill levies and tax estimates will be updated yearly on December 22nd for the current year. Additional information can be found at https://assessor.weld.gov


