Account: R4502386
April 2, 2026
| Account | Parcel | Account Type | Tax Year | Buildings | Actual Value | Local Govt Assessed Value | School Assessed Value |
|---|---|---|---|---|---|---|---|
| R4502386 | 105905310001 | Residential | 2026 | 1 | 317,176 | 19,830 | 22,370 |
| Legal |
|---|
| JOH 21681 L6 BLK7 CALLAHAN HEIGHTS |
| Subdivision | Block | Lot | Land Economic Area |
|---|---|---|---|
| CALLAHAN HEIGHTS ADD | 7 | 6 | JOHNSTOWN |
| Property Address | Property City | Section | Township | Range |
|---|---|---|---|---|
| 916 CHARLOTTE ST | JOHNSTOWN | 05 | 04 | 67 |
| Account | Parcel | Account Type | Tax Year | Buildings | Actual Value | Local Govt Assessed Value | School Assessed Value |
|---|---|---|---|---|---|---|---|
| R4502386 | 105905310001 | Residential | 2026 | 1 | 317,176 | 19,830 | 22,370 |
| Account | Owner Name | Address |
|---|---|---|
| R4502386 | BARKER BRANDON | 916 CHARLOTTE ST JOHNSTOWN, CO 805348404 |
| Account | Parcel | Account Type | Tax Year | Buildings | Actual Value | Local Govt Assessed Value | School Assessed Value |
|---|---|---|---|---|---|---|---|
| R4502386 | 105905310001 | Residential | 2026 | 1 | 317,176 | 19,830 | 22,370 |
| Reception | Rec Date | Type | Grantor | Grantee | Doc Fee | Sale Date | Sale Price |
|---|---|---|---|---|---|---|---|
| 02035227 | 12-09-1985 | WDN | 0.00 | 01-01-1900 | 0 | ||
| 02085071 | 01-16-1987 | QCN | 0.00 | 12-05-1986 | 0 | ||
| 2592194 | 02-03-1998 | QCN | BERNI LORINDA L | BERNI LORINDA L & | 0.00 | 01-28-1998 | 0 |
| 2829331 | 03-02-2001 | WD | BERNI LORINDA L & CIMAFRANCA SHELIA M | MICHAELSON ELAINE R | 10.90 | 02-26-2001 | 109,000 |
| 3339865 | 11-14-2005 | WDN | MICHAELSON ELAINE R | BREWER WILLIAM ROY IV & | 0.00 | 09-26-2005 | 0 |
| 4072921 | 01-06-2015 | PTD | WILDEN MISTY DAWN; BREWER WILLIAM ROY IV | US BANK NATIONAL ASSOCIATION | 0.00 | 01-05-2015 | 0 |
| 4115976 | 06-15-2015 | SWD | US BANK NATIONAL ASSOCIATION | BARKER BRANDON | 11.66 | 03-09-2015 | 116,600 |
| 510403 | NA | SUB | SUBDIVISION | CALLAHAN HEIGHTS ADD | 0.00 | NA | 0 |
| X0011294 | 12-09-1985 | CON | BERNI LORINDA L & MARTIN KIMBE | BERNI LORINDA L | 3.58 | 12-09-1985 | 35,800 |
*If the hyperlink for the reception number does not work, try a manual search in the Clerk and Recorder records. Use the Grantor or Grantee in your search.
| Account | Parcel | Account Type | Tax Year | Buildings | Actual Value | Local Govt Assessed Value | School Assessed Value |
|---|---|---|---|---|---|---|---|
| R4502386 | 105905310001 | Residential | 2026 | 1 | 317,176 | 19,830 | 22,370 |
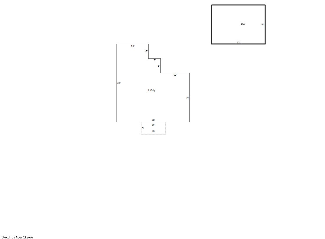
Building 1
| AccountNo | Building ID | Occupancy |
|---|---|---|
| R4502386 | 1 | Single Family Residential |
| ID | Type | NBHD | Occupancy | % Complete | Bedrooms | Baths |
|---|---|---|---|---|---|---|
| 1 | Residential | 0J3075 | Single Family Residential | 100 | 2 | 1.00 |
| ID | Exterior | Roof Cover | Interior | HVAC | Perimeter | Units | Unit Type | Make |
|---|---|---|---|---|---|---|---|---|
| 1 | Frame Vinyl | Composition Shingle | Drywall | Forced Air | 124 | 0 | NA | NA |
| ID | Square Ft | Condo SF | Total Basement SF | Finished Basement SF | Garage SF | Carport SF | Balcony SF | Porch SF |
|---|---|---|---|---|---|---|---|---|
| 1 | 786 | 0 | 0 | 0 | 352 | 0 | 0 | 50 |
| ID | Built As | Square Ft | Year Built | Stories | Length | Width |
|---|---|---|---|---|---|---|
| 1.00 | Ranch 1 Story | 786 | 1947 | 1 | 0 | 0 |
| ID | Detail Type | Description | Units |
|---|---|---|---|
| 1 | Fixture | Full Bath | 1.00 |
| 1 | Garage | Detached | 352.00 |
| 1 | Porch | Slab Roof | 50.00 |
| Account | Parcel | Account Type | Tax Year | Buildings | Actual Value | Local Govt Assessed Value | School Assessed Value |
|---|---|---|---|---|---|---|---|
| R4502386 | 105905310001 | Residential | 2026 | 1 | 317,176 | 19,830 | 22,370 |
| Type | Code | Description | Actual Value | Local Govt Assessed Value | School Assessed Value | Acres | Land SqFt |
|---|---|---|---|---|---|---|---|
| Improvement | 1212 | SINGLE FAMILY RESIDENTIAL IMPROVEMENTS | 247,176 | 15,450 | 17,430 | 0.000 | 0 |
| Land | 1112 | SINGLE FAMILY RESIDENTIAL-LAND | 70,000 | 4,380 | 4,940 | 0.126 | 5,500 |
| Totals | - | - | 317,176 | 19,830 | 22,370 | 0.126 | 5,500 |
Comparable sales for your Residential or Commercial property may be found using our SALES SEARCH TOOL
Values are updated annually on May 1st for Real Property and June 15th for Personal Property and Oil and Gas.
| Account | Parcel | Account Type | Tax Year | Buildings | Actual Value | Local Govt Assessed Value | School Assessed Value |
|---|---|---|---|---|---|---|---|
| R4502386 | 105905310001 | Residential | 2026 | 1 | 317,176 | 19,830 | 22,370 |
| Tax Area | District ID | District Name | Local Govt Mill Levy |
School Mill Levy |
Estimated Taxes |
|---|---|---|---|---|---|
| 0567 | 0700 | AIMS JUNIOR COLLEGE | 6.313 | 0.000 | $125.19 |
| 0567 | 0510 | FRONT RANGE FIRE RESCUE FIRE PROTECTION DISTRICT | 11.483 | 0.000 | $227.71 |
| 0567 | 0414 | JOHNSTOWN TOWN | 23.947 | 0.000 | $474.87 |
| 0567 | 0301 | NORTHERN COLORADO WATER (NCW) | 1.000 | 0.000 | $19.83 |
| 0567 | 0205 | SCHOOL DIST RE5J-JOHNSTOWN | 0.000 | 36.271 | $811.38 |
| 0567 | 0901 | THOMPSON RIVER REC | 3.594 | 0.000 | $71.27 |
| 0567 | 0100 | WELD COUNTY | 15.956 | 0.000 | $316.41 |
| Total | - | - | 62.293 | 36.271 | $2,046.65 |
The estimate of tax is based on the prior year mill levy and the 2025 projected assessment rates. Mill levies and tax estimates will be updated yearly on December 22nd for the current year. Additional information can be found at https://assessor.weld.gov


