Account: R4505986

April 4, 2026

Account Parcel Account Type Tax Year Buildings Actual Value Local Govt Assessed Value School Assessed Value
R4505986 105905313001 Residential 2026 1 494,025 30,880 34,830

Legal
JOH 21706 L5-6 BLK4 CALLAHAN HEIGHTS EXC BEG SW COR L7 W30' TH NELY TO PT 5'W OF NW COR L7 TH E TO NW COR TH S TO BEG

Subdivision Block Lot Land Economic Area
CALLAHAN HEIGHTS ADD 4 5 JOHNSTOWN

Property Address Property City Section Township Range
5 MADDEN AVE JOHNSTOWN 05 04 67




Account Parcel Account Type Tax Year Buildings Actual Value Local Govt Assessed Value School Assessed Value
R4505986 105905313001 Residential 2026 1 494,025 30,880 34,830

Account Owner Name Address
R4505986 AYNES WILLIAM DALE IV 5 MADDEN AVE JOHNSTOWN, CO 805348427
R4505986 AYNES STEPHANIE M


Account Parcel Account Type Tax Year Buildings Actual Value Local Govt Assessed Value School Assessed Value
R4505986 105905313001 Residential 2026 1 494,025 30,880 34,830

Reception Rec Date Type Grantor Grantee Doc Fee Sale Date Sale Price
01858649 05-22-1981 WDN 0.00 01-01-1900 0
2587127 12-31-1997 DTHC FELIX EARL & HELEN FELIX EARL & HELEN (TC) (HEIRS OF) 0.00 01-01-1900 0
2587128 12-31-1997 DTHC FELIX EARL & HELEN FELIX EARL & HELEN (TC) (HEIRS OF) 0.00 01-01-1900 0
2631434 08-06-1998 PRD FELIX EARL & HELEN (TC) (HEIRS FELIX HELEN (TC) (HEIRS OF) 7.35 07-31-1998 73,500
2631435 08-06-1998 PRD FELIX HELEN (TC) (HEIRS OF) MEZA SEVERO & LORETTA J 14.70 07-31-1998 147,000
3759498 03-31-2011 WD MEZA SEVERO REINERS RONALD J 18.75 03-25-2011 187,500
4246939 10-21-2016 WD REINERS RONALD J; REINERS KAREN S DEATON SABRINA ELISE; DEATON DAVID J 29.80 10-14-2016 298,000
4707632 04-22-2021 WD DEATON SABRINA ELISE; DEATON DAVID J AYNES WILLIAM DALE; AYNES STEPHANIE MACHELLE 41.50 04-18-2021 415,000
4720937 06-02-2021 WDN AYNES WILLIAM DALE; AYNES STEPHANIE MACHELLE AYNES WILLIAM DALE IV; AYNES STEPHANIE M 0.00 04-21-2021 0
510403 NA SUB SUBDIVISION CALLAHAN HEIGHTS ADD 0.00 NA 0



Account Parcel Account Type Tax Year Buildings Actual Value Local Govt Assessed Value School Assessed Value
R4505986 105905313001 Residential 2026 1 494,025 30,880 34,830

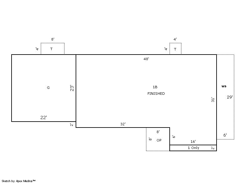
Building 1

AccountNo Building ID Occupancy
R4505986 1 Single Family Residential


ID Type NBHD Occupancy % Complete Bedrooms Baths
1 Residential 0J3075 Single Family Residential 100 4 2.00


ID Exterior Roof Cover Interior HVAC Perimeter Units Unit Type Make
1 Frame Hardboard Composition Shingle Drywall Central Air to Air 0 0 NA NA


ID Square Ft Condo SF Total Basement SF Finished Basement SF Garage SF Carport SF Balcony SF Porch SF
1 1,328 0 1,296 1,296 506 0 174 48


Built As Details for Building 1
ID Built As Square Ft Year Built Stories Length Width
1.00 Ranch 1 Story 1,328 1957 1 0 0


Additional Details for Building 1
ID Detail Type Description Units
1 Add On Fireplace Gas 1.00
1 Balcony Wood Wood Fin 174.00
1 Basement Finished 1296.00
1 Basement Outside Entrance 1.00
1 Basement Total Basement SF 1296.00
1 Fixture Full Bath 2.00
1 Garage Attached 506.00
1 Porch Open Slab 48.00
1 Porch Slab Roof Ceil 64.00





Account Parcel Account Type Tax Year Buildings Actual Value Local Govt Assessed Value School Assessed Value
R4505986 105905313001 Residential 2026 1 494,025 30,880 34,830

Type Code Description Actual Value Local Govt Assessed Value School Assessed Value Acres Land SqFt
Improvement 1212 SINGLE FAMILY RESIDENTIAL IMPROVEMENTS 406,525 25,410 28,660 0.000 0
Land 1112 SINGLE FAMILY RESIDENTIAL-LAND 87,500 5,470 6,170 0.320 13,951
Totals - - 494,025 30,880 34,830 0.320 13,951


Account Parcel Account Type Tax Year Buildings Actual Value Local Govt Assessed Value School Assessed Value
R4505986 105905313001 Residential 2026 1 494,025 30,880 34,830

Tax Area District ID District Name Local Govt
Mill Levy
School
Mill Levy
Estimated
Taxes
0567 0700 AIMS JUNIOR COLLEGE 6.313 0.000 $194.95
0567 0510 FRONT RANGE FIRE RESCUE FIRE PROTECTION DISTRICT 11.483 0.000 $354.60
0567 0414 JOHNSTOWN TOWN 23.947 0.000 $739.48
0567 0301 NORTHERN COLORADO WATER (NCW) 1.000 0.000 $30.88
0567 0205 SCHOOL DIST RE5J-JOHNSTOWN 0.000 36.271 $1,263.32
0567 0901 THOMPSON RIVER REC 3.594 0.000 $110.98
0567 0100 WELD COUNTY 15.956 0.000 $492.72
Total - - 62.293 36.271 $3,186.93


The estimate of tax is based on the prior year mill levy and the 2025 projected assessment rates. Mill levies and tax estimates will be updated yearly on December 22nd for the current year. Additional information can be found at https://assessor.weld.gov










Select Reports to Print: