Account: R4517906
April 1, 2026
| Account | Parcel | Account Type | Tax Year | Buildings | Actual Value | Local Govt Assessed Value | School Assessed Value |
|---|---|---|---|---|---|---|---|
| R4517906 | 070713217002 | Residential | 2026 | 1 | 195,311 | 12,210 | 13,770 |
| Legal |
|---|
| ALT WF L 2 WHITE-FARMER REPLAT |
| Subdivision | Block | Lot | Land Economic Area |
|---|---|---|---|
| WHITE FARMER RPLT | 2 | AULT EAST OF 85 |
| Property Address | Property City | Section | Township | Range |
|---|---|---|---|---|
| 245 A ST | AULT | 13 | 07 | 66 |
| Account | Parcel | Account Type | Tax Year | Buildings | Actual Value | Local Govt Assessed Value | School Assessed Value |
|---|---|---|---|---|---|---|---|
| R4517906 | 070713217002 | Residential | 2026 | 1 | 195,311 | 12,210 | 13,770 |
| Account | Owner Name | Address |
|---|---|---|
| R4517906 | SIMPER AUSTIN WILLIAM | 245 A ST AULT, CO 806105032 |
| R4517906 | SIMPER COLE |
| Account | Parcel | Account Type | Tax Year | Buildings | Actual Value | Local Govt Assessed Value | School Assessed Value |
|---|---|---|---|---|---|---|---|
| R4517906 | 070713217002 | Residential | 2026 | 1 | 195,311 | 12,210 | 13,770 |
| Reception | Rec Date | Type | Grantor | Grantee | Doc Fee | Sale Date | Sale Price |
|---|---|---|---|---|---|---|---|
| 3421301 | NA | SUB | SUBDIVISION | WHITE-FARMER RPLT | 0.00 | NA | 0 |
| 3431738 | 11-01-2006 | PRD | FARMER CLARA A | BREVIG DIANE K | 9.90 | 10-30-2006 | 99,000 |
| 3754641 | 03-08-2011 | PTD | BREVIG DIANE K | FEDERAL NATIONAL MORTGAGE ASSOCIATION | 0.00 | 03-07-2011 | 0 |
| 3771410 | 06-01-2011 | WD | FANNIE MAE | BALL STEVPHEN | 5.10 | 05-20-2011 | 51,000 |
| 5052490 | 09-11-2025 | SWD | BALL STEVPHEN | SIMPER AUSTIN WILLIAM ; SIMPER COLE | 28.50 | 09-10-2025 | 285,000 |
*If the hyperlink for the reception number does not work, try a manual search in the Clerk and Recorder records. Use the Grantor or Grantee in your search.
| Account | Parcel | Account Type | Tax Year | Buildings | Actual Value | Local Govt Assessed Value | School Assessed Value |
|---|---|---|---|---|---|---|---|
| R4517906 | 070713217002 | Residential | 2026 | 1 | 195,311 | 12,210 | 13,770 |
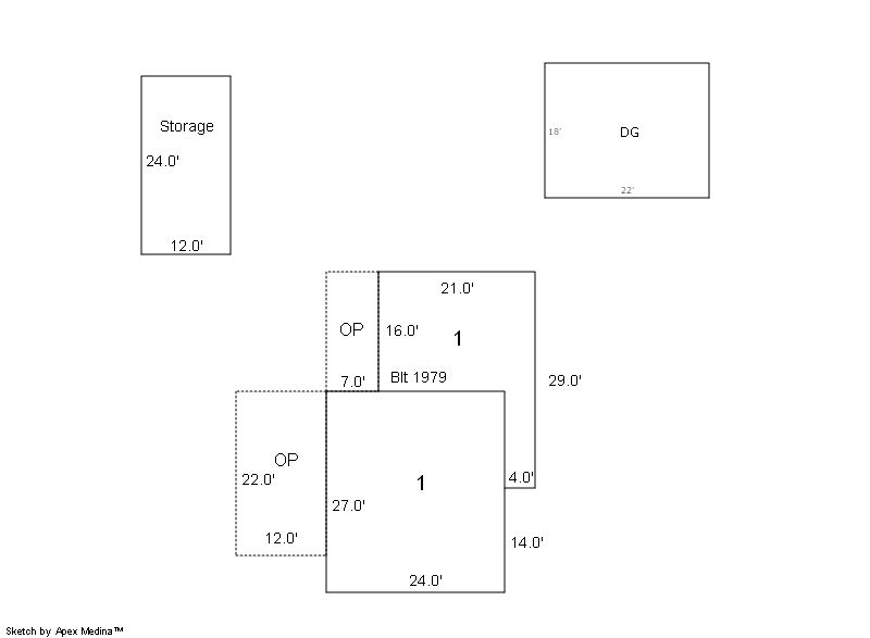
Building 1
| AccountNo | Building ID | Occupancy |
|---|---|---|
| R4517906 | 1 | Single Family Residential |
| ID | Type | NBHD | Occupancy | % Complete | Bedrooms | Baths |
|---|---|---|---|---|---|---|
| 1 | Residential | 9A1045 | Single Family Residential | 100 | 2 | 1.00 |
| ID | Exterior | Roof Cover | Interior | HVAC | Perimeter | Units | Unit Type | Make |
|---|---|---|---|---|---|---|---|---|
| 1 | Frame Hardboard | Composition Shingle | Drywall | Forced Air | 0 | 0 | NA | NA |
| ID | Square Ft | Condo SF | Total Basement SF | Finished Basement SF | Garage SF | Carport SF | Balcony SF | Porch SF |
|---|---|---|---|---|---|---|---|---|
| 1 | 1,036 | 0 | 0 | 0 | 396 | 0 | 0 | 376 |
| ID | Built As | Square Ft | Year Built | Stories | Length | Width |
|---|---|---|---|---|---|---|
| 1.00 | Ranch 1 Story | 1,036 | 1906 | 1 | 0 | 0 |
| ID | Detail Type | Description | Units |
|---|---|---|---|
| 1 | Add On | Flue Only | 1.00 |
| 1 | Fixture | Full Bath | 1.00 |
| 1 | Garage | Detached | 396.00 |
| 1 | Porch | Slab Roof Ceil | 376.00 |
| 1 | Storage | Wood | 288.00 |
| Account | Parcel | Account Type | Tax Year | Buildings | Actual Value | Local Govt Assessed Value | School Assessed Value |
|---|---|---|---|---|---|---|---|
| R4517906 | 070713217002 | Residential | 2026 | 1 | 195,311 | 12,210 | 13,770 |
| Type | Code | Description | Actual Value | Local Govt Assessed Value | School Assessed Value | Acres | Land SqFt |
|---|---|---|---|---|---|---|---|
| Improvement | 1212 | SINGLE FAMILY RESIDENTIAL IMPROVEMENTS | 139,311 | 8,710 | 9,820 | 0.000 | 0 |
| Land | 1112 | SINGLE FAMILY RESIDENTIAL-LAND | 56,000 | 3,500 | 3,950 | 0.283 | 12,320 |
| Totals | - | - | 195,311 | 12,210 | 13,770 | 0.283 | 12,320 |
Comparable sales for your Residential or Commercial property may be found using our SALES SEARCH TOOL
Values are updated annually on May 1st for Real Property and June 15th for Personal Property and Oil and Gas.
| Account | Parcel | Account Type | Tax Year | Buildings | Actual Value | Local Govt Assessed Value | School Assessed Value |
|---|---|---|---|---|---|---|---|
| R4517906 | 070713217002 | Residential | 2026 | 1 | 195,311 | 12,210 | 13,770 |
| Tax Area | District ID | District Name | Local Govt Mill Levy |
School Mill Levy |
Estimated Taxes |
|---|---|---|---|---|---|
| 0930 | 0700 | AIMS JUNIOR COLLEGE | 6.313 | 0.000 | $77.08 |
| 0930 | 0501 | AULT FIRE | 7.266 | 0.000 | $88.72 |
| 0930 | 0401 | AULT TOWN | 6.741 | 0.000 | $82.31 |
| 0930 | 1050 | HIGH PLAINS LIBRARY | 3.044 | 0.000 | $37.17 |
| 0930 | 0301 | NORTHERN COLORADO WATER (NCW) | 1.000 | 0.000 | $12.21 |
| 0930 | 0209 | SCHOOL DIST RE9-AULT | 0.000 | 34.176 | $470.60 |
| 0930 | 0100 | WELD COUNTY | 15.956 | 0.000 | $194.82 |
| Total | - | - | 40.32 | 34.176 | $962.91 |
The estimate of tax is based on the prior year mill levy and the 2025 projected assessment rates. Mill levies and tax estimates will be updated yearly on December 22nd for the current year. Additional information can be found at https://assessor.weld.gov



