Account: R4521786

April 1, 2026

Account Parcel Account Type Tax Year Buildings Actual Value Local Govt Assessed Value School Assessed Value
R4521786 105905413007 Residential 2026 1 324,856 20,310 22,910

Legal
JOH 21740 L2 BLK12 MARY C PARISH ADD

Subdivision Block Lot Land Economic Area
MARY C PARISH ADD 12 2 JOHNSTOWN

Property Address Property City Section Township Range
118 N 1ST ST JOHNSTOWN 05 04 67




Account Parcel Account Type Tax Year Buildings Actual Value Local Govt Assessed Value School Assessed Value
R4521786 105905413007 Residential 2026 1 324,856 20,310 22,910

Account Owner Name Address
R4521786 118 N 1ST STREET LLC PO BOX 103 FREDERICK, CO 805300103


Account Parcel Account Type Tax Year Buildings Actual Value Local Govt Assessed Value School Assessed Value
R4521786 105905413007 Residential 2026 1 324,856 20,310 22,910

Reception Rec Date Type Grantor Grantee Doc Fee Sale Date Sale Price
01979497 08-29-1984 WDN 0.00 01-01-1900 0
2095098 04-09-1987 WD YEATTS ANITA & JOHN STOLLEY DELBERT L & WANDA S 3.95 04-06-1987 39,500
2550563 05-30-1997 WD STOLLEY DELBERT L & WANDA S WENTZ BLAKE L 7.99 05-28-1997 79,900
2830184 03-06-2001 WD WENTZ BLAKE L AGOSTI KARI N 10.89 02-28-2001 108,900
3318997 09-01-2005 WD AGOSTI KARI N BODELL DON & 11.80 07-28-2005 118,000
3482604 06-11-2007 PTD BODELL DON & AEGIS MORTGAGE CORPORATION 0.00 06-11-2007 0
3526857 01-02-2008 SWD AEGIS MORTGAGE CORPORATION PETERSON KEVIN & 8.00 12-27-2007 80,000
3629616 06-12-2009 WD PETERSON KEVIN & PETERSON BONNIE POLK JONATHAN PAUL 10.70 06-08-2009 107,000
3740346 12-21-2010 PTD POLK JONATHON PAUL BANNER INVESTMENTS 0.00 12-20-2010 0
3764477 04-25-2011 WD BANNER INVESTMENTS LLC YOUNG MATTHEW E 10.80 04-19-2011 108,000
4275278 02-02-2017 SWDN YOUNG MATTHEW E; YOUNG HEATHER LE 118 N 1ST STREET LLC 0.00 12-30-2016 0
469022 NA SUB SUBDIVISION MARY C PARISH ADD 0.00 NA 0
X0011334 08-29-1984 CON STOLLEY DELBERT L & WANDA S 3.45 08-29-1984 34,500



Account Parcel Account Type Tax Year Buildings Actual Value Local Govt Assessed Value School Assessed Value
R4521786 105905413007 Residential 2026 1 324,856 20,310 22,910

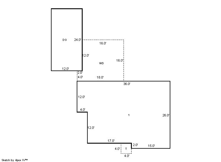
Building 1

AccountNo Building ID Occupancy
R4521786 1 Single Family Residential


ID Type NBHD Occupancy % Complete Bedrooms Baths
1 Residential 0J3075 Single Family Residential 100 2 1.00


ID Exterior Roof Cover Interior HVAC Perimeter Units Unit Type Make
1 Frame Hardboard Composition Shingle Plaster Forced Air 0 0 NA NA


ID Square Ft Condo SF Total Basement SF Finished Basement SF Garage SF Carport SF Balcony SF Porch SF
1 846 0 0 0 288 0 0 16


Built As Details for Building 1
ID Built As Square Ft Year Built Stories Length Width
1.00 Ranch 1 Story 846 1951 1 0 0


Additional Details for Building 1
ID Detail Type Description Units
1 Add On Shed Frame 48.00
1 Fixture Full Bath 1.00
1 Garage Detached 288.00
1 Porch Open Slab 16.00
1 Porch Wood Deck 264.00





Account Parcel Account Type Tax Year Buildings Actual Value Local Govt Assessed Value School Assessed Value
R4521786 105905413007 Residential 2026 1 324,856 20,310 22,910

Type Code Description Actual Value Local Govt Assessed Value School Assessed Value Acres Land SqFt
Improvement 1212 SINGLE FAMILY RESIDENTIAL IMPROVEMENTS 254,856 15,930 17,970 0.000 0
Land 1112 SINGLE FAMILY RESIDENTIAL-LAND 70,000 4,380 4,940 0.125 5,450
Totals - - 324,856 20,310 22,910 0.125 5,450


Account Parcel Account Type Tax Year Buildings Actual Value Local Govt Assessed Value School Assessed Value
R4521786 105905413007 Residential 2026 1 324,856 20,310 22,910

Tax Area District ID District Name Local Govt
Mill Levy
School
Mill Levy
Estimated
Taxes
0567 0700 AIMS JUNIOR COLLEGE 6.313 0.000 $128.22
0567 0510 FRONT RANGE FIRE RESCUE FIRE PROTECTION DISTRICT 11.483 0.000 $233.22
0567 0414 JOHNSTOWN TOWN 23.947 0.000 $486.36
0567 0301 NORTHERN COLORADO WATER (NCW) 1.000 0.000 $20.31
0567 0205 SCHOOL DIST RE5J-JOHNSTOWN 0.000 36.271 $830.97
0567 0901 THOMPSON RIVER REC 3.594 0.000 $72.99
0567 0100 WELD COUNTY 15.956 0.000 $324.07
Total - - 62.293 36.271 $2,096.14


The estimate of tax is based on the prior year mill levy and the 2025 projected assessment rates. Mill levies and tax estimates will be updated yearly on December 22nd for the current year. Additional information can be found at https://assessor.weld.gov










Select Reports to Print: