Account: R4623386

April 4, 2026

Account Parcel Account Type Tax Year Buildings Actual Value Local Govt Assessed Value School Assessed Value
R4623386 105911231026 Residential 2026 1 467,478 29,220 32,960

Legal
MIL W77-31 L31 BLK77 REPLAT PORTION WAL MAR SUB

Subdivision Block Lot Land Economic Area
WAL MAR SUB RPLT 77 31 WAL MAR

Property Address Property City Section Township Range
208 S NORMA AVE MILLIKEN 11 04 67




Account Parcel Account Type Tax Year Buildings Actual Value Local Govt Assessed Value School Assessed Value
R4623386 105911231026 Residential 2026 1 467,478 29,220 32,960

Account Owner Name Address
R4623386 HEHN JOHN 208 S NORMA AVE MILLIKEN, CO 805438124
R4623386 HEHN SHELLY


Account Parcel Account Type Tax Year Buildings Actual Value Local Govt Assessed Value School Assessed Value
R4623386 105911231026 Residential 2026 1 467,478 29,220 32,960

Reception Rec Date Type Grantor Grantee Doc Fee Sale Date Sale Price
01899487 08-03-1982 WDN 0.00 01-01-1900 0
02127458 01-08-1988 QCN 0.00 01-04-1988 0
02313027 12-03-1992 QCN 0.00 11-19-1992 0
02356450 10-22-1993 WD VANEK CAROLYN I D S CONSTRUCTION INC 1.23 10-21-1993 12,300
1728061 NA SUB SUBDIVISION WAL MAR 1ST RPLT 0.00 NA 0
2382056 04-05-1994 WD I D S CONSTRUCTION INC RENKEN AARON BRETT & CRYSTAL L 9.68 03-25-1994 96,800
2420060 12-22-1994 WD RENKEN AARON BRETT & CRYSTAL L AHLQUIST JULIE A & SCOTT A 11.20 12-15-1994 112,000
2728498 10-25-1999 WD AHLQUIST SCOTT A & JULIE A MILLER JERRY A & RONDA M 14.79 10-20-1999 147,900
3366748 03-01-2006 PTD MILLER JERRY A & RONDA M DEUTSCHE BANK NATIONAL 0.00 03-01-2006 0
3407461 07-31-2006 SWD DEUTSCHE BANK NATIONAL HEHN JOHN & 16.50 06-22-2006 165,000



Account Parcel Account Type Tax Year Buildings Actual Value Local Govt Assessed Value School Assessed Value
R4623386 105911231026 Residential 2026 1 467,478 29,220 32,960

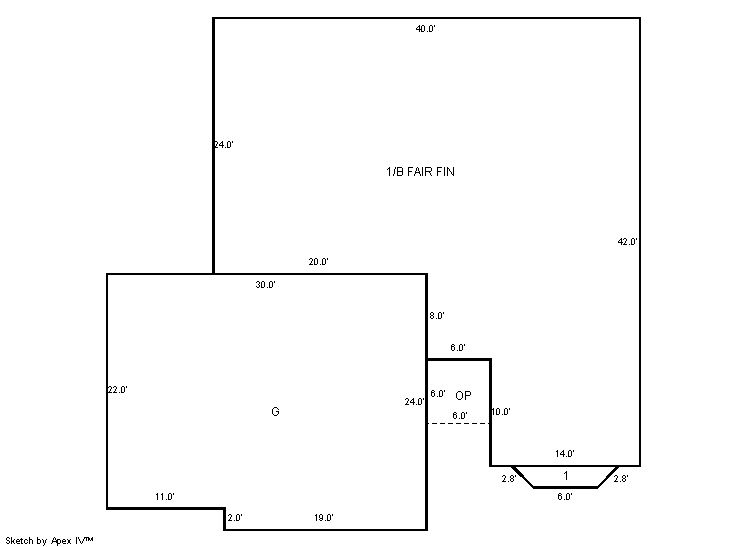
Building 1

AccountNo Building ID Occupancy
R4623386 1 Single Family Residential


ID Type NBHD Occupancy % Complete Bedrooms Baths
1 Residential 0M2071 Single Family Residential 100 5 3.00


ID Exterior Roof Cover Interior HVAC Perimeter Units Unit Type Make
1 Frame Hardboard Composition Shingle Drywall Forced Air 0 0 NA NA


ID Square Ft Condo SF Total Basement SF Finished Basement SF Garage SF Carport SF Balcony SF Porch SF
1 1,276 0 1,260 1,260 698 0 0 36


Built As Details for Building 1
ID Built As Square Ft Year Built Stories Length Width
1.00 Ranch 1 Story 1,276 1994 1 0 0


Additional Details for Building 1
ID Detail Type Description Units
1 Add On Fireplace Gas 1.00
1 Basement Fair Finish 1260.00
1 Basement Total Basement SF 1260.00
1 Fixture Full Bath 3.00
1 Garage Attached 698.00
1 Porch Slab Roof Ceil 36.00





Account Parcel Account Type Tax Year Buildings Actual Value Local Govt Assessed Value School Assessed Value
R4623386 105911231026 Residential 2026 1 467,478 29,220 32,960

Type Code Description Actual Value Local Govt Assessed Value School Assessed Value Acres Land SqFt
Improvement 1212 SINGLE FAMILY RESIDENTIAL IMPROVEMENTS 373,478 23,340 26,330 0.000 0
Land 1112 SINGLE FAMILY RESIDENTIAL-LAND 94,000 5,880 6,630 0.746 32,500
Totals - - 467,478 29,220 32,960 0.746 32,500


Account Parcel Account Type Tax Year Buildings Actual Value Local Govt Assessed Value School Assessed Value
R4623386 105911231026 Residential 2026 1 467,478 29,220 32,960

Tax Area District ID District Name Local Govt
Mill Levy
School
Mill Levy
Estimated
Taxes
5731 0700 AIMS JUNIOR COLLEGE 6.313 0.000 $184.47
5731 0510 FRONT RANGE FIRE RESCUE FIRE PROTECTION DISTRICT 11.483 0.000 $335.53
5731 1050 HIGH PLAINS LIBRARY 3.044 0.000 $88.95
5731 0306 LITTLE THOMPSON WATER (LTW) 0.000 0.000 $0.00
5731 0421 MILLIKEN TOWN 26.301 0.000 $768.52
5731 0301 NORTHERN COLORADO WATER (NCW) 1.000 0.000 $29.22
5731 0205 SCHOOL DIST RE5J-JOHNSTOWN 0.000 36.271 $1,195.49
5731 0901 THOMPSON RIVER REC 3.594 0.000 $105.02
5731 0100 WELD COUNTY 15.956 0.000 $466.23
Total - - 67.691 36.271 $3,173.42


The estimate of tax is based on the prior year mill levy and the 2025 projected assessment rates. Mill levies and tax estimates will be updated yearly on December 22nd for the current year. Additional information can be found at https://assessor.weld.gov










Select Reports to Print: