Account: R4625886

April 5, 2026

Account Parcel Account Type Tax Year Buildings Actual Value Local Govt Assessed Value School Assessed Value
R4625886 105911233003 Residential 2026 1 349,861 21,870 24,670

Legal
MIL W83-3 L3 BLK83 REPLAT PORTION WAL MAR SUB

Subdivision Block Lot Land Economic Area
WAL MAR SUB RPLT 83 3 WAL MAR

Property Address Property City Section Township Range
305 S NORMA AVE MILLIKEN 11 04 67




Account Parcel Account Type Tax Year Buildings Actual Value Local Govt Assessed Value School Assessed Value
R4625886 105911233003 Residential 2026 1 349,861 21,870 24,670

Account Owner Name Address
R4625886 MILLER STEVEN B 305 S NORMA AVE MILLIKEN, CO 805438127
R4625886 MILLER EDNA J


Account Parcel Account Type Tax Year Buildings Actual Value Local Govt Assessed Value School Assessed Value
R4625886 105911233003 Residential 2026 1 349,861 21,870 24,670

Reception Rec Date Type Grantor Grantee Doc Fee Sale Date Sale Price
01828264 06-24-1980 WDN 0.00 01-01-1900 0
1728061 NA SUB SUBDIVISION WAL MAR 1ST RPLT 0.00 NA 0
2460907 10-24-1995 QCN MILLER STEVEN B MILLER STEVEN B & EDNA J 0.00 10-19-1995 0



Account Parcel Account Type Tax Year Buildings Actual Value Local Govt Assessed Value School Assessed Value
R4625886 105911233003 Residential 2026 1 349,861 21,870 24,670

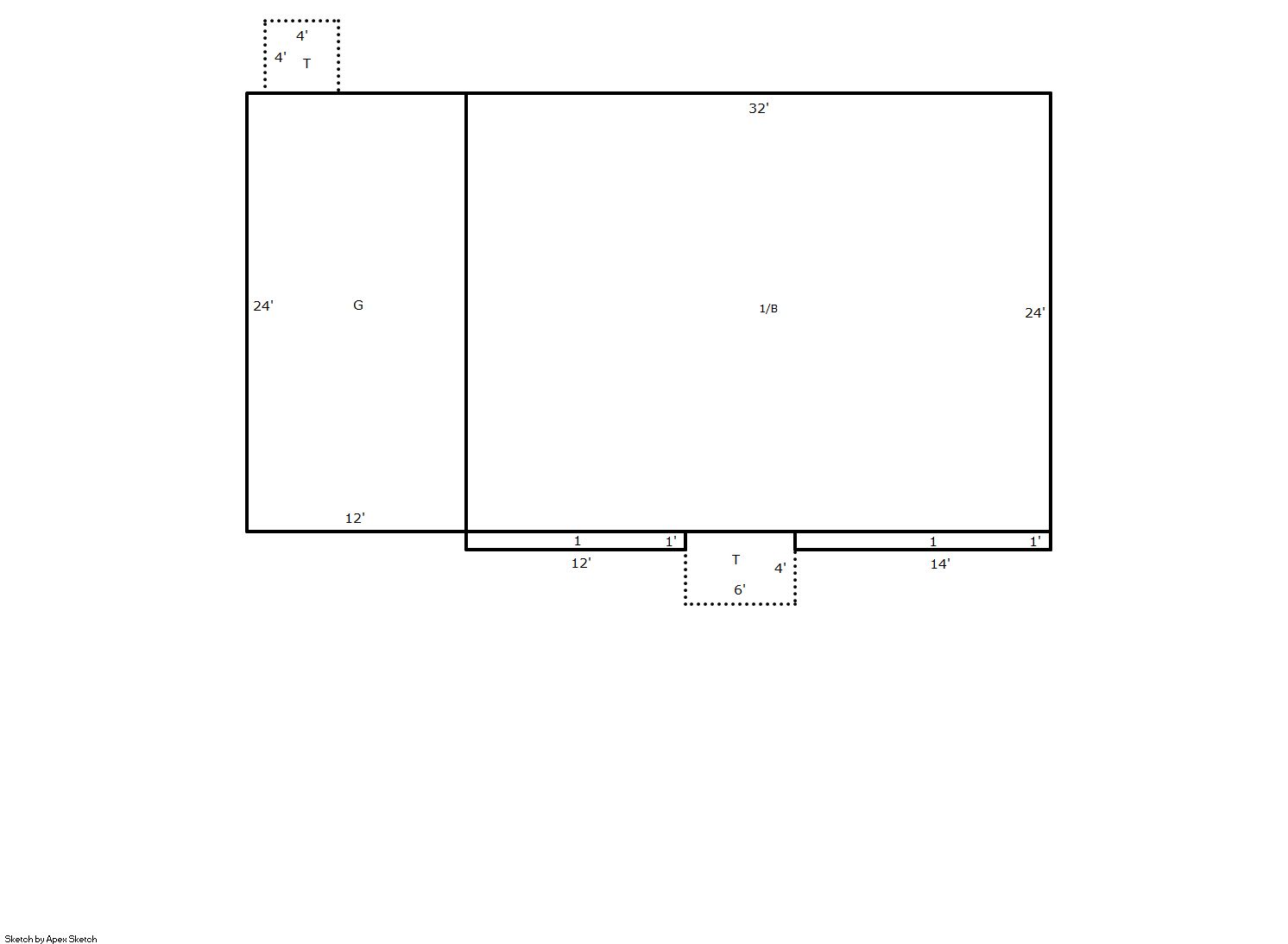
Building 1

AccountNo Building ID Occupancy
R4625886 1 Single Family Residential


ID Type NBHD Occupancy % Complete Bedrooms Baths
1 Residential 0M2071 Single Family Residential 100 3 1.00


ID Exterior Roof Cover Interior HVAC Perimeter Units Unit Type Make
1 Frame Hardboard Composition Shingle Drywall Electric Baseboard 116 0 NA NA


ID Square Ft Condo SF Total Basement SF Finished Basement SF Garage SF Carport SF Balcony SF Porch SF
1 794 0 768 0 288 0 0 40


Built As Details for Building 1
ID Built As Square Ft Year Built Stories Length Width
1.00 Bi Level 794 1980 2 0 0


Additional Details for Building 1
ID Detail Type Description Units
1 Basement Total Basement SF 768.00
1 Fixture Full Bath 1.00
1 Garage Attached 288.00
1 Porch Open Slab 40.00
1 Rough In Rough In 1.00





Account Parcel Account Type Tax Year Buildings Actual Value Local Govt Assessed Value School Assessed Value
R4625886 105911233003 Residential 2026 1 349,861 21,870 24,670

Type Code Description Actual Value Local Govt Assessed Value School Assessed Value Acres Land SqFt
Improvement 1212 SINGLE FAMILY RESIDENTIAL IMPROVEMENTS 255,861 15,990 18,040 0.000 0
Land 1112 SINGLE FAMILY RESIDENTIAL-LAND 94,000 5,880 6,630 0.187 8,125
Totals - - 349,861 21,870 24,670 0.187 8,125


Account Parcel Account Type Tax Year Buildings Actual Value Local Govt Assessed Value School Assessed Value
R4625886 105911233003 Residential 2026 1 349,861 21,870 24,670

Tax Area District ID District Name Local Govt
Mill Levy
School
Mill Levy
Estimated
Taxes
5731 0700 AIMS JUNIOR COLLEGE 6.313 0.000 $138.07
5731 0510 FRONT RANGE FIRE RESCUE FIRE PROTECTION DISTRICT 11.483 0.000 $251.13
5731 1050 HIGH PLAINS LIBRARY 3.044 0.000 $66.57
5731 0306 LITTLE THOMPSON WATER (LTW) 0.000 0.000 $0.00
5731 0421 MILLIKEN TOWN 26.301 0.000 $575.20
5731 0301 NORTHERN COLORADO WATER (NCW) 1.000 0.000 $21.87
5731 0205 SCHOOL DIST RE5J-JOHNSTOWN 0.000 36.271 $894.81
5731 0901 THOMPSON RIVER REC 3.594 0.000 $78.60
5731 0100 WELD COUNTY 15.956 0.000 $348.96
Total - - 67.691 36.271 $2,375.21


The estimate of tax is based on the prior year mill levy and the 2025 projected assessment rates. Mill levies and tax estimates will be updated yearly on December 22nd for the current year. Additional information can be found at https://assessor.weld.gov










Select Reports to Print: