Account: R4709507
April 4, 2026
| Account | Parcel | Account Type | Tax Year | Buildings | Actual Value | Local Govt Assessed Value | School Assessed Value |
|---|---|---|---|---|---|---|---|
| R4709507 | 131322419001 | Commercial | 2026 | 3 | 2,279,533 | 615,470 | 615,470 |
| Legal |
|---|
| FRE IPM L3A INDIAN PEAKS L3 BLK3 MINOR |
| Subdivision | Block | Lot | Land Economic Area |
|---|---|---|---|
| INDIAN PEAKS LOT 3 BLOCK 3 MINOR SUB | 3A | FREDERICK INDIAN PEAKS |
| Property Address | Property City | Section | Township | Range |
|---|---|---|---|---|
| 8119 INDIAN PEAKS AVE | FREDERICK | 22 | 02 | 68 |
| Account | Parcel | Account Type | Tax Year | Buildings | Actual Value | Local Govt Assessed Value | School Assessed Value |
|---|---|---|---|---|---|---|---|
| R4709507 | 131322419001 | Commercial | 2026 | 3 | 2,279,533 | 615,470 | 615,470 |
| Account | Owner Name | Address |
|---|---|---|
| R4709507 | IPEAKS LLC | C/O SUZANNE MICHAELS 14800 E MONCRIEFF PL AURORA, CO 800111211 |
| R4709507 | JAH LLC (34.5% INT) |
| Account | Parcel | Account Type | Tax Year | Buildings | Actual Value | Local Govt Assessed Value | School Assessed Value |
|---|---|---|---|---|---|---|---|
| R4709507 | 131322419001 | Commercial | 2026 | 3 | 2,279,533 | 615,470 | 615,470 |
| Reception | Rec Date | Type | Grantor | Grantee | Doc Fee | Sale Date | Sale Price |
|---|---|---|---|---|---|---|---|
| 3463406 | NA | SUB | SUBDIVISION | INDIAN PEAKS LOT 3 BLK3 MINOR | 0.00 | NA | 0 |
| 3514196 | 10-30-2007 | WD | B & H LTD LLC | LPW PROPERTY MANAGEMENT (2/3 INT) & | 95.00 | 10-24-2007 | 950,000 |
| 3559598 | 06-09-2008 | SURV | B & H LTD LLC | LPW PROPERTY MANAGEMENT (2/3 INT) & | 0.00 | 06-09-2008 | 0 |
| 3665242 | 12-16-2009 | QCN | LAMB LINDA D | LPW PROPERTY MANAGEMENT INC | 0.00 | 11-04-2009 | 0 |
| 3737776 | 12-09-2010 | QCN | LAMB LINDA D LIMITED PARTNERSHIP | LPW PROPERTY MANAGEMENT INC | 0.00 | 12-03-2010 | 0 |
| 3914405 | 03-04-2013 | SWD | LPW PROPERTY MANAGEMENT INC | 8119 INDIAN PEAKS LLC | 115.00 | 02-28-2013 | 1,150,000 |
| 4516120 | 08-20-2019 | SWDN | 8119 INDIAN PEAKS LLC | TECTA LLC (75%); SOLO LHC LLC (15%); STADLER MYRON (10%) | 0.00 | 05-28-2019 | 0 |
| 4516158 | 08-20-2019 | SWD | STADLER MYRON (10%) | SOLO LHC LLC (25%) | 17.40 | 06-01-2019 | 174,000 |
| 4809106 | 03-10-2022 | SWD | SOLO LHC LLC (25%); TECTA LLC (75%) | IPEAKS LLC; JAH LLC (34.5% INT) | 257.50 | 03-04-2022 | 2,575,000 |
*If the hyperlink for the reception number does not work, try a manual search in the Clerk and Recorder records. Use the Grantor or Grantee in your search.
| Account | Parcel | Account Type | Tax Year | Buildings | Actual Value | Local Govt Assessed Value | School Assessed Value |
|---|---|---|---|---|---|---|---|
| R4709507 | 131322419001 | Commercial | 2026 | 3 | 2,279,533 | 615,470 | 615,470 |
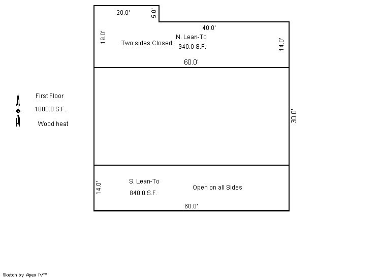
Building 1
| AccountNo | Building ID | Occupancy |
|---|---|---|
| R4709507 | 1 | Warehouse |
| ID | Type | NBHD | Occupancy | % Complete | Bedrooms | Baths |
|---|---|---|---|---|---|---|
| 1 | Commercial | 3915 | Warehouse | 100 | 0 | 0.00 |
| ID | Exterior | Roof Cover | Interior | HVAC | Perimeter | Units | Unit Type | Make |
|---|---|---|---|---|---|---|---|---|
| 1 | NA | NA | NA | Package Unit | 396 | 0 | NA | NA |
| ID | Square Ft | Condo SF | Total Basement SF | Finished Basement SF | Garage SF | Carport SF | Balcony SF | Porch SF |
|---|---|---|---|---|---|---|---|---|
| 1 | 6,560 | 0 | 0 | 0 | 0 | 0 | 0 | 0 |
| ID | Built As | Square Ft | Year Built | Stories | Length | Width |
|---|---|---|---|---|---|---|
| 1.00 | Light Industrial Shell Buildings | 2,160 | 1995 | 1 | 0 | 0 |
| 1.00 | Office Building | 1,040 | 1995 | 1 | 0 | 0 |
| 1.00 | Office Building | 3,360 | 1995 | 1 | 0 | 0 |
| ID | Detail Type | Description | Units |
|---|---|---|---|
| 1 | Add On | Asphalt Average | 9500.00 |
| 1 | Add On | Chain Link Fence 6Ft. | 360.00 |
| 1 | Add On | Chain Link Fence 8ft | 1250.00 |
| 1 | Add On | Com Canopies Steel Average | 5566.00 |
| 1 | Add On | Concrete Slab Average | 5700.00 |
Building 2
| AccountNo | Building ID | Occupancy |
|---|---|---|
| R4709507 | 2 | Warehouse |
| ID | Type | NBHD | Occupancy | % Complete | Bedrooms | Baths |
|---|---|---|---|---|---|---|
| 2 | Commercial | 3915 | Warehouse | 100 | 0 | 0.00 |
| ID | Exterior | Roof Cover | Interior | HVAC | Perimeter | Units | Unit Type | Make |
|---|---|---|---|---|---|---|---|---|
| 2 | NA | NA | NA | None | 180 | 0 | NA | NA |
| ID | Square Ft | Condo SF | Total Basement SF | Finished Basement SF | Garage SF | Carport SF | Balcony SF | Porch SF |
|---|---|---|---|---|---|---|---|---|
| 2 | 3,580 | 0 | 0 | 0 | 0 | 0 | 0 | 0 |
| ID | Built As | Square Ft | Year Built | Stories | Length | Width |
|---|---|---|---|---|---|---|
| 2.00 | Lean-tos | 1,780 | 1995 | 1 | 0 | 0 |
| 2.00 | Light Commercial Utility | 1,800 | 1995 | 1 | 0 | 0 |
No Additional Details for Building 2
Building 3
| AccountNo | Building ID | Occupancy |
|---|---|---|
| R4709507 | 3 | Warehouse |
| ID | Type | NBHD | Occupancy | % Complete | Bedrooms | Baths |
|---|---|---|---|---|---|---|
| 3 | Commercial | 3915 | Warehouse | 100 | 0 | 0.00 |
| ID | Exterior | Roof Cover | Interior | HVAC | Perimeter | Units | Unit Type | Make |
|---|---|---|---|---|---|---|---|---|
| 3 | NA | NA | NA | None | 296 | 0 | NA | NA |
| ID | Square Ft | Condo SF | Total Basement SF | Finished Basement SF | Garage SF | Carport SF | Balcony SF | Porch SF |
|---|---|---|---|---|---|---|---|---|
| 3 | 4,800 | 0 | 0 | 0 | 0 | 0 | 0 | 0 |
| ID | Built As | Square Ft | Year Built | Stories | Length | Width |
|---|---|---|---|---|---|---|
| 3.00 | Light Industrial Shell Buildings | 4,800 | 2007 | 1 | 0 | 0 |
No Additional Details for Building 3
| Account | Parcel | Account Type | Tax Year | Buildings | Actual Value | Local Govt Assessed Value | School Assessed Value |
|---|---|---|---|---|---|---|---|
| R4709507 | 131322419001 | Commercial | 2026 | 3 | 2,279,533 | 615,470 | 615,470 |
| Type | Code | Description | Actual Value | Local Govt Assessed Value | School Assessed Value | Acres | Land SqFt |
|---|---|---|---|---|---|---|---|
| Improvement | 2235 | WAREHOUSE/STORAGE-IMPS | 1,674,341 | 452,070 | 452,070 | 0.000 | 0 |
| Land | 2135 | WAREHOUSE/STORAGE-LAND | 605,192 | 163,400 | 163,400 | 3.269 | 142,398 |
| Totals | - | - | 2,279,533 | 615,470 | 615,470 | 3.269 | 142,398 |
Comparable sales for your Residential or Commercial property may be found using our SALES SEARCH TOOL
Values are updated annually on May 1st for Real Property and June 15th for Personal Property and Oil and Gas.
| Account | Parcel | Account Type | Tax Year | Buildings | Actual Value | Local Govt Assessed Value | School Assessed Value |
|---|---|---|---|---|---|---|---|
| R4709507 | 131322419001 | Commercial | 2026 | 3 | 2,279,533 | 615,470 | 615,470 |
| Tax Area | District ID | District Name | Local Govt Mill Levy |
School Mill Levy |
Estimated Taxes |
|---|---|---|---|---|---|
| 1430 | 0408 | FREDERICK TOWN | 6.555 | 0.000 | $4,034.41 |
| 1430 | 0507 | FREDERICK-FIRESTONE FIRE | 15.559 | 0.000 | $9,576.10 |
| 1430 | 1050 | HIGH PLAINS LIBRARY | 3.044 | 0.000 | $1,873.49 |
| 1430 | 0301 | NORTHERN COLORADO WATER (NCW) | 1.000 | 0.000 | $615.47 |
| 1430 | 0213 | SCHOOL DIST RE1J-LONGMONT | 0.000 | 57.717 | $35,523.08 |
| 1430 | 0100 | WELD COUNTY | 15.956 | 0.000 | $9,820.44 |
| Total | - | - | 42.114 | 57.717 | $61,442.99 |
The estimate of tax is based on the prior year mill levy and the 2025 projected assessment rates. Mill levies and tax estimates will be updated yearly on December 22nd for the current year. Additional information can be found at https://assessor.weld.gov





