Account: R4837686
April 1, 2026
| Account | Parcel | Account Type | Tax Year | Buildings | Actual Value | Local Govt Assessed Value | School Assessed Value |
|---|---|---|---|---|---|---|---|
| R4837686 | 120934000031 | Residential | 2026 | 2 | 481,315 | 30,080 | 33,940 |
| Legal |
|---|
| 21323-A PT E2SE4 34 3 67 BEG N89D E 24' FROM SW COR N01D W 210' N89D E 210' S01D E 210' S89D W 210' TO BEG |
| Subdivision | Block | Lot | Land Economic Area |
|---|---|---|---|
| NW ECON 4 RURAL |
| Property Address | Property City | Section | Township | Range |
|---|---|---|---|---|
| 9747 COUNTY ROAD 26 | WELD | 34 | 03 | 67 |
| Account | Parcel | Account Type | Tax Year | Buildings | Actual Value | Local Govt Assessed Value | School Assessed Value |
|---|---|---|---|---|---|---|---|
| R4837686 | 120934000031 | Residential | 2026 | 2 | 481,315 | 30,080 | 33,940 |
| Account | Owner Name | Address |
|---|---|---|
| R4837686 | MERRILL FAMILY TRUST | 17829 W REDFIELD RD SURPRISE, AZ 853887595 |
| Account | Parcel | Account Type | Tax Year | Buildings | Actual Value | Local Govt Assessed Value | School Assessed Value |
|---|---|---|---|---|---|---|---|
| R4837686 | 120934000031 | Residential | 2026 | 2 | 481,315 | 30,080 | 33,940 |
| Reception | Rec Date | Type | Grantor | Grantee | Doc Fee | Sale Date | Sale Price |
|---|---|---|---|---|---|---|---|
| 2139364 | 04-28-1988 | WD | RICHARDSON ALVA L & HAZEL A | ASHENBRENNER EDWARD E & MARGAR | 6.50 | 04-25-1988 | 65,000 |
| 2313610 | 12-07-1992 | WD | ASHENBRENNER EDWARD E & MARGAR | MERRILL JILL B | 9.40 | 11-25-1992 | 94,000 |
| 3780337 | 07-15-2011 | SURV | SURVEY | SURVEY | 0.00 | 07-15-2011 | 0 |
| 4018061 | 05-22-2014 | BN | MERRILL JILL | HEIL JACOB SCOTT | 0.00 | 05-07-2014 | 0 |
| 4154837 | 11-02-2015 | RBN | MERILL JILL B | MERILL JILL B | 0.00 | 10-13-2015 | 0 |
| 4163037 | 12-04-2015 | SWDN | MERRILL JILL B | MERRILL FAMILY TRUST | 0.00 | 11-18-2015 | 0 |
*If the hyperlink for the reception number does not work, try a manual search in the Clerk and Recorder records. Use the Grantor or Grantee in your search.
| Account | Parcel | Account Type | Tax Year | Buildings | Actual Value | Local Govt Assessed Value | School Assessed Value |
|---|---|---|---|---|---|---|---|
| R4837686 | 120934000031 | Residential | 2026 | 2 | 481,315 | 30,080 | 33,940 |
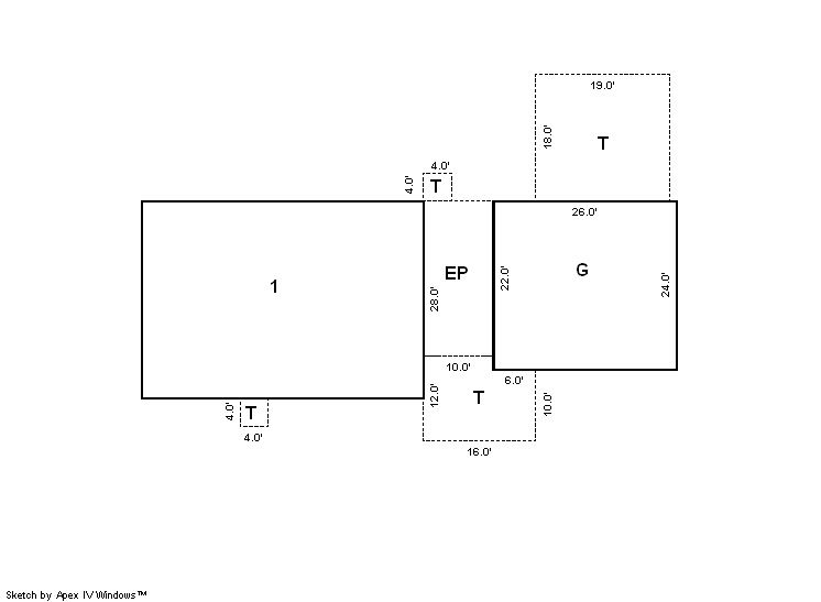
Building 1
| AccountNo | Building ID | Occupancy |
|---|---|---|
| R4837686 | 1 | Single Family Residential |
| ID | Type | NBHD | Occupancy | % Complete | Bedrooms | Baths |
|---|---|---|---|---|---|---|
| 1 | Residential | 4R1013 | Single Family Residential | 100 | 3 | 1.00 |
| ID | Exterior | Roof Cover | Interior | HVAC | Perimeter | Units | Unit Type | Make |
|---|---|---|---|---|---|---|---|---|
| 1 | Frame Hardboard | Composition Shingle | Drywall | Hot Water Baseboard | 0 | 0 | NA | NA |
| ID | Square Ft | Condo SF | Total Basement SF | Finished Basement SF | Garage SF | Carport SF | Balcony SF | Porch SF |
|---|---|---|---|---|---|---|---|---|
| 1 | 1,120 | 0 | 0 | 0 | 624 | 0 | 0 | 220 |
| ID | Built As | Square Ft | Year Built | Stories | Length | Width |
|---|---|---|---|---|---|---|
| 1.00 | Ranch 1 Story | 1,120 | 1972 | 1 | 0 | 0 |
| ID | Detail Type | Description | Units |
|---|---|---|---|
| 1 | Fixture | Full Bath | 1.00 |
| 1 | Garage | Attached | 624.00 |
| 1 | Porch | Encl Solid Wall | 220.00 |
| 1 | Porch | Open Slab | 554.00 |
Building 2
| AccountNo | Building ID | Occupancy |
|---|---|---|
| R4837686 | 2 | Shed - Utility |
| ID | Type | NBHD | Occupancy | % Complete | Bedrooms | Baths |
|---|---|---|---|---|---|---|
| 2 | Out Building | NA | Shed - Utility | 100 | 0 | 0.00 |
| ID | Exterior | Roof Cover | Interior | HVAC | Perimeter | Units | Unit Type | Make |
|---|---|---|---|---|---|---|---|---|
| 2 | NA | NA | NA | None | 0 | 0 | NA | NA |
| ID | Square Ft | Condo SF | Total Basement SF | Finished Basement SF | Garage SF | Carport SF | Balcony SF | Porch SF |
|---|---|---|---|---|---|---|---|---|
| 2 | 520 | 0 | 0 | 0 | 0 | 0 | 0 | 0 |
| ID | Built As | Square Ft | Year Built | Stories | Length | Width |
|---|---|---|---|---|---|---|
| 2.00 | Shed - Utility | 520 | 1982 | 0 | 0 | 0 |
No Additional Details for Building 2
| Account | Parcel | Account Type | Tax Year | Buildings | Actual Value | Local Govt Assessed Value | School Assessed Value |
|---|---|---|---|---|---|---|---|
| R4837686 | 120934000031 | Residential | 2026 | 2 | 481,315 | 30,080 | 33,940 |
| Type | Code | Description | Actual Value | Local Govt Assessed Value | School Assessed Value | Acres | Land SqFt |
|---|---|---|---|---|---|---|---|
| Improvement | 1212 | SINGLE FAMILY RESIDENTIAL IMPROVEMENTS | 360,532 | 22,530 | 25,420 | 0.000 | 0 |
| Land | 1112 | SINGLE FAMILY RESIDENTIAL-LAND | 120,783 | 7,550 | 8,520 | 1.000 | 43,560 |
| Totals | - | - | 481,315 | 30,080 | 33,940 | 1.000 | 43,560 |
Comparable sales for your Residential or Commercial property may be found using our SALES SEARCH TOOL
Values are updated annually on May 1st for Real Property and June 15th for Personal Property and Oil and Gas.
| Account | Parcel | Account Type | Tax Year | Buildings | Actual Value | Local Govt Assessed Value | School Assessed Value |
|---|---|---|---|---|---|---|---|
| R4837686 | 120934000031 | Residential | 2026 | 2 | 481,315 | 30,080 | 33,940 |
| Tax Area | District ID | District Name | Local Govt Mill Levy |
School Mill Levy |
Estimated Taxes |
|---|---|---|---|---|---|
| 2192 | 0700 | AIMS JUNIOR COLLEGE | 6.313 | 0.000 | $189.90 |
| 2192 | 0302 | CENTRAL COLORADO WATER (CCW) | 0.980 | 0.000 | $29.48 |
| 2192 | 0309 | CENTRAL COLORADO WATER SUBDISTRICT (CCS) | 1.462 | 0.000 | $43.98 |
| 2192 | 0305 | CENTRAL WELD COUNTY WATER (CWC) | 0.000 | 0.000 | $0.00 |
| 2192 | 1050 | HIGH PLAINS LIBRARY | 3.044 | 0.000 | $91.56 |
| 2192 | 0301 | NORTHERN COLORADO WATER (NCW) | 1.000 | 0.000 | $30.08 |
| 2192 | 1201 | PLATTE VALLEY CONSERVATION | 0.000 | 0.000 | $0.00 |
| 2192 | 0516 | PLATTEVILLE-GILCREST FIRE | 7.540 | 0.000 | $226.80 |
| 2192 | 0201 | SCHOOL DIST RE1-GILCREST | 0.000 | 15.382 | $522.07 |
| 2192 | 0100 | WELD COUNTY | 15.956 | 0.000 | $479.96 |
| Total | - | - | 36.295 | 15.382 | $1,613.82 |
The estimate of tax is based on the prior year mill levy and the 2025 projected assessment rates. Mill levies and tax estimates will be updated yearly on December 22nd for the current year. Additional information can be found at https://assessor.weld.gov



