Account: R4848207

April 5, 2026

Account Parcel Account Type Tax Year Buildings Actual Value Local Govt Assessed Value School Assessed Value
R4848207 131312303177 Residential 2026 1 527,340 32,960 37,180

Legal
FIR 2NP L177 NEIGHBORS POINT FG #2

Subdivision Block Lot Land Economic Area
NEIGHBORS POINT FG#2 177 NEIGHBORS POINT

Property Address Property City Section Township Range
5361 NEIGHBORS PKWY FIRESTONE 12 02 68




Account Parcel Account Type Tax Year Buildings Actual Value Local Govt Assessed Value School Assessed Value
R4848207 131312303177 Residential 2026 1 527,340 32,960 37,180

Account Owner Name Address
R4848207 VAN DYKE DOROTHY 5361 NEIGHBORS PKWY FIRESTONE, CO 805044521


Account Parcel Account Type Tax Year Buildings Actual Value Local Govt Assessed Value School Assessed Value
R4848207 131312303177 Residential 2026 1 527,340 32,960 37,180

Reception Rec Date Type Grantor Grantee Doc Fee Sale Date Sale Price
3472263 NA SUB SUBDIVISION NEIGHBORS POINT FG #2 0.00 NA 0
3602290 01-30-2009 QCN WELD CO PUBLIC TRUSTEE FIRST NATIONAL BANK 0.00 01-29-2009 0
3682942 03-25-2010 SWD FIRST NATIONAL BANK MSP CORPORATION 270.80 03-18-2010 2,708,000
3899883 01-02-2013 SWD MSP CORPORATION WILLOWOOD CORPORATION 870.00 12-31-2012 8,700,000
4018103 05-22-2014 WD WILLOWOOD CORPORATION MELODY HOMES INC 1,084.17 05-22-2014 10,841,700
4216555 07-06-2016 SWD MELODY HOMES INC VAN DYKE DOROTHY 33.93 06-29-2016 339,300
5025820 04-28-2025 BN VAN DYKE DOROTHY VAN DYKE DOROTHY 0.00 04-28-2025 0



Account Parcel Account Type Tax Year Buildings Actual Value Local Govt Assessed Value School Assessed Value
R4848207 131312303177 Residential 2026 1 527,340 32,960 37,180

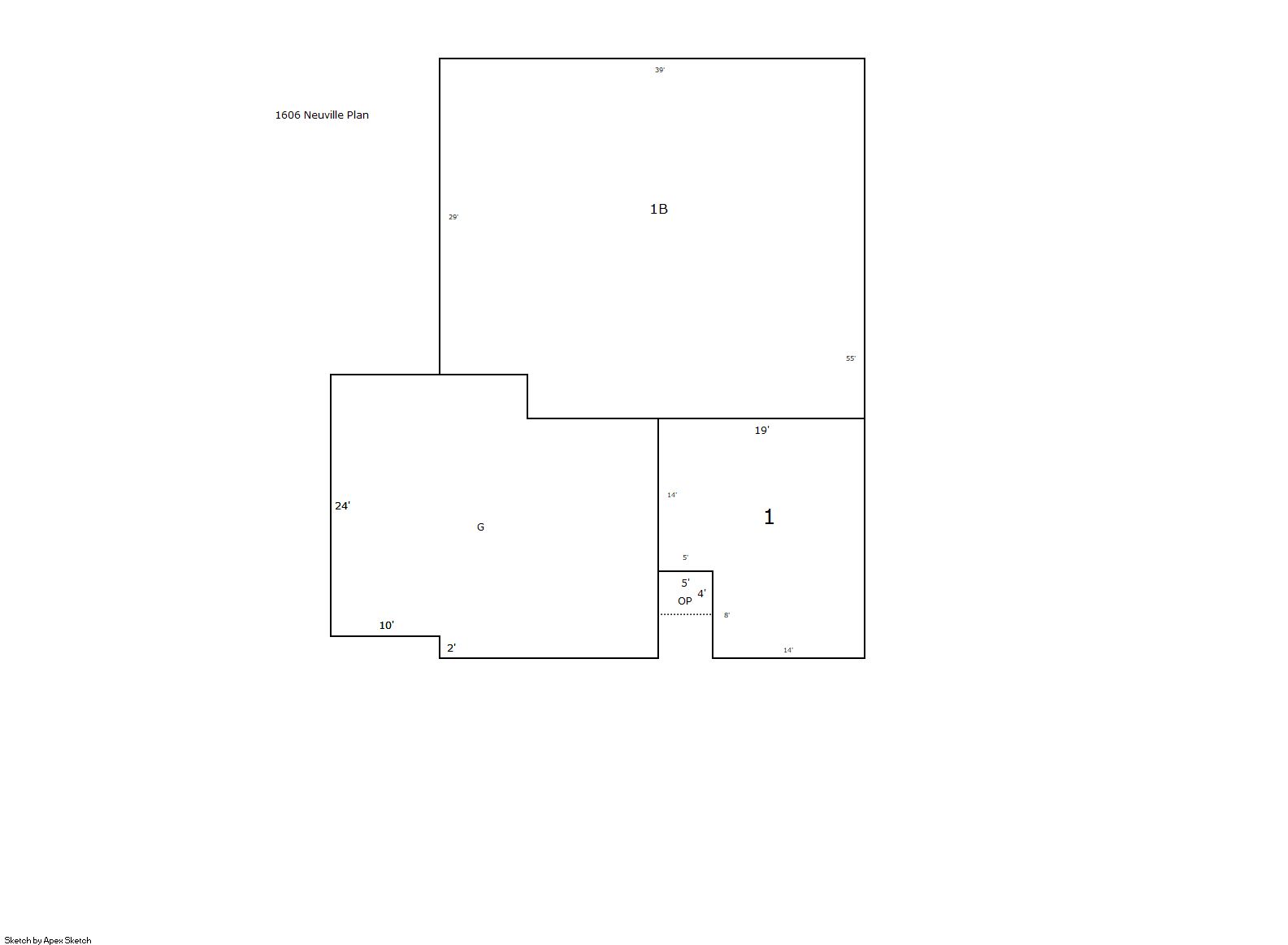
Building 1

AccountNo Building ID Occupancy
R4848207 1 Single Family Residential


ID Type NBHD Occupancy % Complete Bedrooms Baths
1 Residential 3F1032 Single Family Residential 100 3 2.00


ID Exterior Roof Cover Interior HVAC Perimeter Units Unit Type Make
1 Frame Siding Composition Shingle Drywall Central Air to Air 188 0 NA NA


ID Square Ft Condo SF Total Basement SF Finished Basement SF Garage SF Carport SF Balcony SF Porch SF
1 1,633 0 1,255 0 712 0 0 20


Built As Details for Building 1
ID Built As Square Ft Year Built Stories Length Width
1.00 Ranch 1 Story 1,633 2016 1 0 0


Additional Details for Building 1
ID Detail Type Description Units
1 Basement Total Basement SF 1255.00
1 Fixture Full Bath 2.00
1 Garage Attached 712.00
1 Porch Slab Roof Ceil 20.00
1 Rough In Rough In 1.00





Account Parcel Account Type Tax Year Buildings Actual Value Local Govt Assessed Value School Assessed Value
R4848207 131312303177 Residential 2026 1 527,340 32,960 37,180

Type Code Description Actual Value Local Govt Assessed Value School Assessed Value Acres Land SqFt
Improvement 1212 SINGLE FAMILY RESIDENTIAL IMPROVEMENTS 409,340 25,580 28,860 0.000 0
Land 1112 SINGLE FAMILY RESIDENTIAL-LAND 118,000 7,380 8,320 0.189 8,250
Totals - - 527,340 32,960 37,180 0.189 8,250


Account Parcel Account Type Tax Year Buildings Actual Value Local Govt Assessed Value School Assessed Value
R4848207 131312303177 Residential 2026 1 527,340 32,960 37,180

Tax Area District ID District Name Local Govt
Mill Levy
School
Mill Levy
Estimated
Taxes
5478 0900 CARBON VALLEY REC 4.427 0.000 $145.91
5478 0406 FIRESTONE TOWN 6.805 0.000 $224.29
5478 0507 FREDERICK-FIRESTONE FIRE 15.559 0.000 $512.82
5478 1050 HIGH PLAINS LIBRARY 3.044 0.000 $100.33
5478 1202 LONGMONT CONSERVATION 0.000 0.000 $0.00
5478 0301 NORTHERN COLORADO WATER (NCW) 1.000 0.000 $32.96
5478 0953 NORTHERN FIRESTONE URBAN RENEWAL (NFURA) 0.000 0.000 $0.00
5478 1514 NP125 METRO 61.429 0.000 $2,024.70
5478 0213 SCHOOL DIST RE1J-LONGMONT 0.000 57.717 $2,145.92
5478 0620 ST VRAIN SANITATION 0.316 0.000 $10.42
5478 0100 WELD COUNTY 15.956 0.000 $525.91
Total - - 108.536 57.717 $5,723.26


The estimate of tax is based on the prior year mill levy and the 2025 projected assessment rates. Mill levies and tax estimates will be updated yearly on December 22nd for the current year. Additional information can be found at https://assessor.weld.gov










Select Reports to Print: