Account: R4901407
April 4, 2026
| Account | Parcel | Account Type | Tax Year | Buildings | Actual Value | Local Govt Assessed Value | School Assessed Value |
|---|---|---|---|---|---|---|---|
| R4901407 | 080730401005 | Exempt | 2026 | 1 | 376,739 | 83,190 | 83,910 |
| Legal |
|---|
| WIN WVWIE L5 WATER VALLEY WEST - IMAGO ENTERPRISES MINOR |
| Subdivision | Block | Lot | Land Economic Area |
|---|---|---|---|
| WATER VALLEY WEST IMAGO ENTERPRISES MINOR SUB PLAT | 5 | WINDSOR RURAL |
| Property Address | Property City | Section | Township | Range |
|---|---|---|---|---|
| 1500 NEW LIBERTY RD | WINDSOR | 30 | 06 | 67 |
| Account | Parcel | Account Type | Tax Year | Buildings | Actual Value | Local Govt Assessed Value | School Assessed Value |
|---|---|---|---|---|---|---|---|
| R4901407 | 080730401005 | Exempt | 2026 | 1 | 376,739 | 83,190 | 83,910 |
| Account | Owner Name | Address |
|---|---|---|
| R4901407 | WINDSOR TOWN OF | 301 WALNUT ST PO BOX 627 WINDSOR, CO 805505141 |
| Account | Parcel | Account Type | Tax Year | Buildings | Actual Value | Local Govt Assessed Value | School Assessed Value |
|---|---|---|---|---|---|---|---|
| R4901407 | 080730401005 | Exempt | 2026 | 1 | 376,739 | 83,190 | 83,910 |
| Reception | Rec Date | Type | Grantor | Grantee | Doc Fee | Sale Date | Sale Price |
|---|---|---|---|---|---|---|---|
| 3490429 | NA | SUB | SUBDIVISION | WATER VALLEY WEST IMAGO ENTERPRISES MINOR | 0.00 | NA | 0 |
| 3490431 | 07-16-2007 | SWDN | RAINDANCE AQUATIC INVESTMENTS LLC | WINDSOR TOWN OF | 0.00 | 05-17-2007 | 0 |
*If the hyperlink for the reception number does not work, try a manual search in the Clerk and Recorder records. Use the Grantor or Grantee in your search.
| Account | Parcel | Account Type | Tax Year | Buildings | Actual Value | Local Govt Assessed Value | School Assessed Value |
|---|---|---|---|---|---|---|---|
| R4901407 | 080730401005 | Exempt | 2026 | 1 | 376,739 | 83,190 | 83,910 |
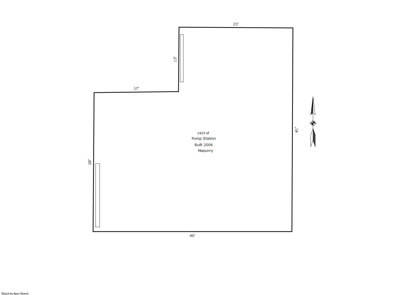
Building 1
| AccountNo | Building ID | Occupancy |
|---|---|---|
| R4901407 | 1 | Warehouse |
| ID | Type | NBHD | Occupancy | % Complete | Bedrooms | Baths |
|---|---|---|---|---|---|---|
| 1 | Commercial | 2907 | Warehouse | 100 | NA | 0.00 |
| ID | Exterior | Roof Cover | Interior | HVAC | Perimeter | Units | Unit Type | Make |
|---|---|---|---|---|---|---|---|---|
| 1 | NA | NA | NA | Space Heater | 162 | 0 | NA | NA |
| ID | Square Ft | Condo SF | Total Basement SF | Finished Basement SF | Garage SF | Carport SF | Balcony SF | Porch SF |
|---|---|---|---|---|---|---|---|---|
| 1 | 1,423 | 0 | 0 | 0 | 0 | 0 | 0 | 0 |
| ID | Built As | Square Ft | Year Built | Stories | Length | Width |
|---|---|---|---|---|---|---|
| 1.00 | Equipment Building-Commercial | 1,423 | 2006 | 1 | 0 | 0 |
| ID | Detail Type | Description | Units |
|---|---|---|---|
| 1 | Add On | Chain Link Fence 6Ft. | 1550.00 |
| 1 | Add On | Concrete Slab Average | 280.00 |
| Account | Parcel | Account Type | Tax Year | Buildings | Actual Value | Local Govt Assessed Value | School Assessed Value |
|---|---|---|---|---|---|---|---|
| R4901407 | 080730401005 | Exempt | 2026 | 1 | 376,739 | 83,190 | 83,910 |
| Type | Code | Description | Actual Value | Local Govt Assessed Value | School Assessed Value | Acres | Land SqFt |
|---|---|---|---|---|---|---|---|
| Improvement | 9240 | EXEMPT-POLITICAL RESIDENTIAL IMPS | 89,307 | 5,580 | 6,300 | 0.000 | 0 |
| Land | 9149 | EXEMPT-POLITICAL NON RESIDENTIAL LAND | 287,432 | 77,610 | 77,610 | 5.770 | 251,341 |
| Totals | - | - | 376,739 | 83,190 | 83,910 | 5.770 | 251,341 |
Comparable sales for your Residential or Commercial property may be found using our SALES SEARCH TOOL
Values are updated annually on May 1st for Real Property and June 15th for Personal Property and Oil and Gas.
| Account | Parcel | Account Type | Tax Year | Buildings | Actual Value | Local Govt Assessed Value | School Assessed Value |
|---|---|---|---|---|---|---|---|
| R4901407 | 080730401005 | Exempt | 2026 | 1 | 376,739 | 83,190 | 83,910 |
| Tax Area | District ID | District Name | Local Govt Mill Levy |
School Mill Levy |
Estimated Taxes |
|---|---|---|---|---|---|
| 0436 | 0700 | AIMS JUNIOR COLLEGE | 6.313 | 0.000 | $525.18 |
| 0436 | 1051 | CLEARVIEW LIBRARY | 3.546 | 0.000 | $294.99 |
| 0436 | 0301 | NORTHERN COLORADO WATER (NCW) | 1.000 | 0.000 | $83.19 |
| 0436 | 0204 | SCHOOL DIST RE4-WINDSOR | 0.000 | 46.646 | $3,914.07 |
| 0436 | 0100 | WELD COUNTY | 15.956 | 0.000 | $1,327.38 |
| 0436 | 1200 | WEST GREELEY CONSERVATION | 0.414 | 0.000 | $34.44 |
| 0436 | 0428 | WINDSOR TOWN | 12.030 | 0.000 | $1,000.78 |
| 0436 | 0521 | WINDSOR-SEVERANCE FIRE | 8.535 | 0.000 | $710.03 |
| Total | - | - | 47.794 | 46.646 | $7,890.05 |
The estimate of tax is based on the prior year mill levy and the 2025 projected assessment rates. Mill levies and tax estimates will be updated yearly on December 22nd for the current year. Additional information can be found at https://assessor.weld.gov



