Account: R4937607
April 4, 2026
| Account | Parcel | Account Type | Tax Year | Buildings | Actual Value | Local Govt Assessed Value | School Assessed Value |
|---|---|---|---|---|---|---|---|
| R4937607 | 131333439005 | Residential | 2026 | 1 | 584,103 | 36,510 | 41,180 |
| Legal |
|---|
| FRE 5WH L5 BLK2 WYNDHAM HILL FG 5 (WYNDHAM HILL ANNEX) |
| Subdivision | Block | Lot | Land Economic Area |
|---|---|---|---|
| WYNDHAM HILL FG#5 FINAL PLAT | 2 | 5 | WYNDHAM HILLS |
| Property Address | Property City | Section | Township | Range |
|---|---|---|---|---|
| 6040 MINERS PEAK CIR | FREDERICK | 33 | 02 | 68 |
| Account | Parcel | Account Type | Tax Year | Buildings | Actual Value | Local Govt Assessed Value | School Assessed Value |
|---|---|---|---|---|---|---|---|
| R4937607 | 131333439005 | Residential | 2026 | 1 | 584,103 | 36,510 | 41,180 |
| Account | Owner Name | Address |
|---|---|---|
| R4937607 | WHITTENBURG JAMES K | 6040 MINERS PEAK CIR FREDERICK, CO 805169700 |
| R4937607 | ESTRADA GUADALUPE R |
| Account | Parcel | Account Type | Tax Year | Buildings | Actual Value | Local Govt Assessed Value | School Assessed Value |
|---|---|---|---|---|---|---|---|
| R4937607 | 131333439005 | Residential | 2026 | 1 | 584,103 | 36,510 | 41,180 |
| Reception | Rec Date | Type | Grantor | Grantee | Doc Fee | Sale Date | Sale Price |
|---|---|---|---|---|---|---|---|
| 3505504 | NA | SUB | SUBDIVISION | WYNDHAM HILL FG #5 | 0.00 | NA | 0 |
| 3951942 | 07-31-2013 | WD | FREDERICK DEVELOPMENT COMPANY INC | LENNAR COLORADO LLC | 464.63 | 07-25-2013 | 4,646,300 |
| 4045250 | 09-11-2014 | SWD | LENNAR COLORADO LLC | GREEN LISA B | 33.50 | 08-29-2014 | 335,000 |
| 4254126 | 11-16-2016 | WD | GREEN LISA B | WHITTENBURG JAMES K; ESTRADA GUADALUPE R | 38.85 | 11-14-2016 | 388,500 |
*If the hyperlink for the reception number does not work, try a manual search in the Clerk and Recorder records. Use the Grantor or Grantee in your search.
| Account | Parcel | Account Type | Tax Year | Buildings | Actual Value | Local Govt Assessed Value | School Assessed Value |
|---|---|---|---|---|---|---|---|
| R4937607 | 131333439005 | Residential | 2026 | 1 | 584,103 | 36,510 | 41,180 |
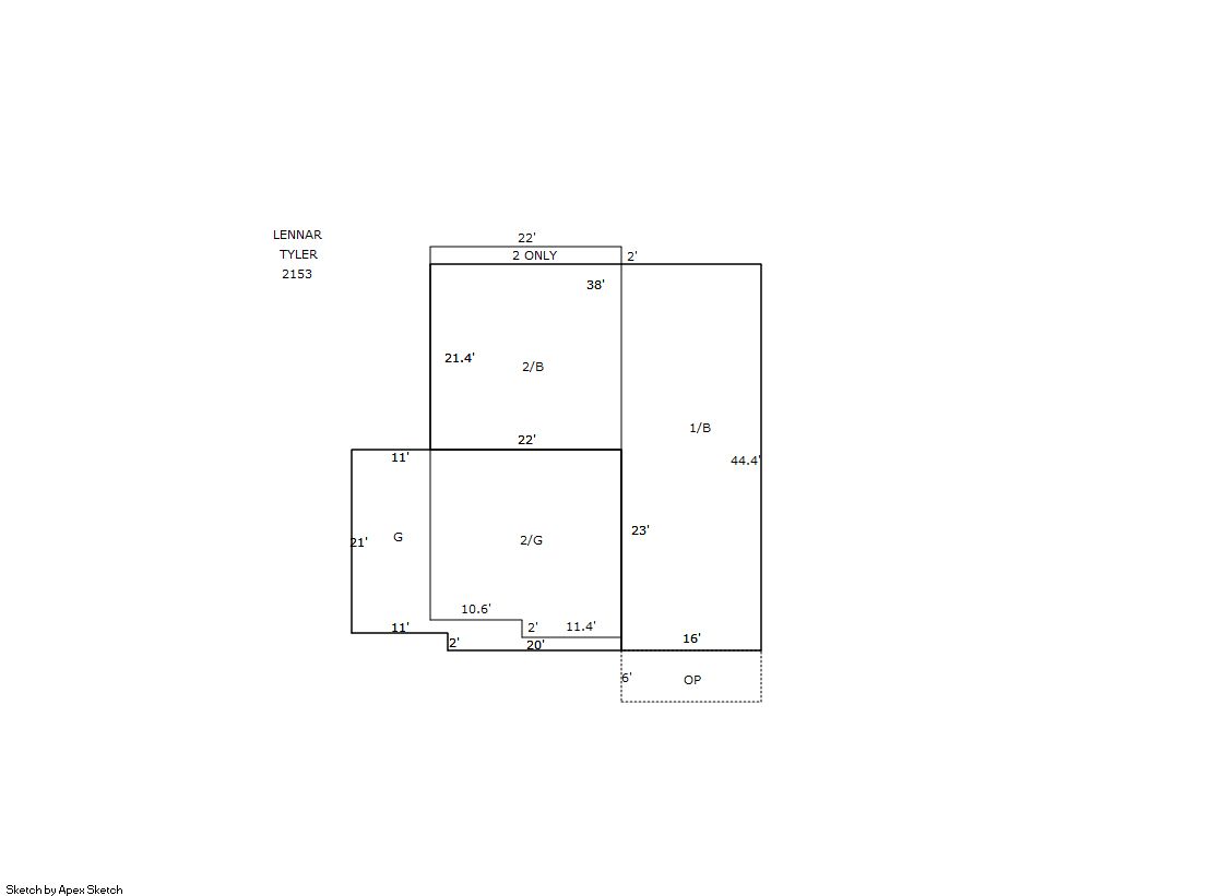
Building 1
| AccountNo | Building ID | Occupancy |
|---|---|---|
| R4937607 | 1 | Single Family Residential |
| ID | Type | NBHD | Occupancy | % Complete | Bedrooms | Baths |
|---|---|---|---|---|---|---|
| 1 | Residential | 3K2030 | Single Family Residential | 100 | 4 | 3.00 |
| ID | Exterior | Roof Cover | Interior | HVAC | Perimeter | Units | Unit Type | Make |
|---|---|---|---|---|---|---|---|---|
| 1 | Frame Hardboard | Composition Shingle | Drywall | Central Air to Air | 299 | 0 | NA | NA |
| ID | Square Ft | Condo SF | Total Basement SF | Finished Basement SF | Garage SF | Carport SF | Balcony SF | Porch SF |
|---|---|---|---|---|---|---|---|---|
| 1 | 2,150 | 0 | 1,181 | 0 | 691 | 0 | 0 | 96 |
| ID | Built As | Square Ft | Year Built | Stories | Length | Width |
|---|---|---|---|---|---|---|
| 1.00 | 2 Story | 2,150 | 2014 | 1 | 0 | 0 |
| ID | Detail Type | Description | Units |
|---|---|---|---|
| 1 | Add On | Fireplace Gas | 1.00 |
| 1 | Basement | Total Basement SF | 1181.00 |
| 1 | Fixture | Full Bath | 3.00 |
| 1 | Garage | Attached | 691.00 |
| 1 | Porch | Slab Roof Ceil | 96.00 |
| 1 | Rough In | Rough In | 1.00 |
| Account | Parcel | Account Type | Tax Year | Buildings | Actual Value | Local Govt Assessed Value | School Assessed Value |
|---|---|---|---|---|---|---|---|
| R4937607 | 131333439005 | Residential | 2026 | 1 | 584,103 | 36,510 | 41,180 |
| Type | Code | Description | Actual Value | Local Govt Assessed Value | School Assessed Value | Acres | Land SqFt |
|---|---|---|---|---|---|---|---|
| Improvement | 1212 | SINGLE FAMILY RESIDENTIAL IMPROVEMENTS | 469,103 | 29,320 | 33,070 | 0.000 | 0 |
| Land | 1112 | SINGLE FAMILY RESIDENTIAL-LAND | 115,000 | 7,190 | 8,110 | 0.152 | 6,600 |
| Totals | - | - | 584,103 | 36,510 | 41,180 | 0.152 | 6,600 |
Comparable sales for your Residential or Commercial property may be found using our SALES SEARCH TOOL
Values are updated annually on May 1st for Real Property and June 15th for Personal Property and Oil and Gas.
| Account | Parcel | Account Type | Tax Year | Buildings | Actual Value | Local Govt Assessed Value | School Assessed Value |
|---|---|---|---|---|---|---|---|
| R4937607 | 131333439005 | Residential | 2026 | 1 | 584,103 | 36,510 | 41,180 |
| Tax Area | District ID | District Name | Local Govt Mill Levy |
School Mill Levy |
Estimated Taxes |
|---|---|---|---|---|---|
| 4118 | 0900 | CARBON VALLEY REC | 4.427 | 0.000 | $161.63 |
| 4118 | 0408 | FREDERICK TOWN | 6.555 | 0.000 | $239.32 |
| 4118 | 0507 | FREDERICK-FIRESTONE FIRE | 15.559 | 0.000 | $568.06 |
| 4118 | 1050 | HIGH PLAINS LIBRARY | 3.044 | 0.000 | $111.14 |
| 4118 | 0311 | LEFT HAND WATER | 0.000 | 0.000 | $0.00 |
| 4118 | 1202 | LONGMONT CONSERVATION | 0.000 | 0.000 | $0.00 |
| 4118 | 0301 | NORTHERN COLORADO WATER (NCW) | 1.000 | 0.000 | $36.51 |
| 4118 | 0213 | SCHOOL DIST RE1J-LONGMONT | 0.000 | 57.717 | $2,376.79 |
| 4118 | 0620 | ST VRAIN SANITATION | 0.316 | 0.000 | $11.54 |
| 4118 | 0100 | WELD COUNTY | 15.956 | 0.000 | $582.55 |
| 4118 | 1357 | WYNDHAM HILL METRO 2 | 63.054 | 0.000 | $2,302.10 |
| Total | - | - | 109.911 | 57.717 | $6,389.64 |
The estimate of tax is based on the prior year mill levy and the 2025 projected assessment rates. Mill levies and tax estimates will be updated yearly on December 22nd for the current year. Additional information can be found at https://assessor.weld.gov


