Account: R4945707

April 5, 2026

Account Parcel Account Type Tax Year Buildings Actual Value Local Govt Assessed Value School Assessed Value
R4945707 072115300004 Agricultural 2026 2 269,144 19,270 21,330

Legal
S2SW4 15-7-59 DESC SW4 SEC 15 N00D10E 1631.28' N89D34E 2668.41' S00D34W 1636.12' S89D40W 2652.49' TO POB

Subdivision Block Lot Land Economic Area
NE ECON 7 RURAL

Property Address Property City Section Township Range
39140 COUNTY ROAD 115 WELD 15 07 59




Account Parcel Account Type Tax Year Buildings Actual Value Local Govt Assessed Value School Assessed Value
R4945707 072115300004 Agricultural 2026 2 269,144 19,270 21,330

Account Owner Name Address
R4945707 ARCHULETA JESSE 39140 COUNTY ROAD 115 NEW RAYMER, CO 807429153
R4945707 ARCHULETA STEPHANIE


Account Parcel Account Type Tax Year Buildings Actual Value Local Govt Assessed Value School Assessed Value
R4945707 072115300004 Agricultural 2026 2 269,144 19,270 21,330

Reception Rec Date Type Grantor Grantee Doc Fee Sale Date Sale Price
3483733 06-15-2007 QCN ASHBAUGH KEITH V & ARCHULETA JESSE & 0.00 06-08-2007 0



Account Parcel Account Type Tax Year Buildings Actual Value Local Govt Assessed Value School Assessed Value
R4945707 072115300004 Agricultural 2026 2 269,144 19,270 21,330

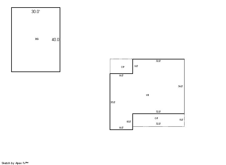
Building 1

AccountNo Building ID Occupancy
R4945707 1 Single Family Residential on Ag


ID Type NBHD Occupancy % Complete Bedrooms Baths
1 Residential 7R0001 Single Family Residential on Ag 100 3 2.00


ID Exterior Roof Cover Interior HVAC Perimeter Units Unit Type Make
1 Frame Hardboard Composition Shingle Drywall Forced Air 0 0 NA NA


ID Square Ft Condo SF Total Basement SF Finished Basement SF Garage SF Carport SF Balcony SF Porch SF
1 1,578 0 1,578 0 1,200 0 0 382


Built As Details for Building 1
ID Built As Square Ft Year Built Stories Length Width
1.00 Ranch 1 Story 1,578 2007 1 0 0


Additional Details for Building 1
ID Detail Type Description Units
1 Basement Total Basement SF 1578.00
1 Fixture Full Bath 2.00
1 Garage Detached 1200.00
1 Porch Slab Roof Ceil 382.00
1 Rough In Rough In 1.00



Building 2

AccountNo Building ID Occupancy
R4945707 2 Equipment Building


ID Type NBHD Occupancy % Complete Bedrooms Baths
2 Out Building NA Equipment Building 100 0 0.00


ID Exterior Roof Cover Interior HVAC Perimeter Units Unit Type Make
2 NA NA NA None 156 0 NA NA


ID Square Ft Condo SF Total Basement SF Finished Basement SF Garage SF Carport SF Balcony SF Porch SF
2 1,440 0 0 0 0 0 0 0


Built As Details for Building 2
ID Built As Square Ft Year Built Stories Length Width
2.00 Equipment Building 1,440 2011 1 48 30

No Additional Details for Building 2






Account Parcel Account Type Tax Year Buildings Actual Value Local Govt Assessed Value School Assessed Value
R4945707 072115300004 Agricultural 2026 2 269,144 19,270 21,330

Type Code Description Actual Value Local Govt Assessed Value School Assessed Value Acres Land SqFt
Improvement 4277 FARM/RANCH RESIDENCE-IMPS 257,318 16,080 18,140 0.000 0
Improvement 4279 FARM RANCH SUPPORT BLDGS 10,439 2,820 2,820 0.000 0
Land 4147 GRAZING LAND-AGRICULTURAL 1,387 370 370 99.771 4,346,025
Totals - - 269,144 19,270 21,330 99.771 4,346,025


Account Parcel Account Type Tax Year Buildings Actual Value Local Govt Assessed Value School Assessed Value
R4945707 072115300004 Agricultural 2026 2 269,144 19,270 21,330

Tax Area District ID District Name Local Govt
Mill Levy
School
Mill Levy
Estimated
Taxes
1102 0700 AIMS JUNIOR COLLEGE 6.313 0.000 $121.65
1102 1050 HIGH PLAINS LIBRARY 3.044 0.000 $58.66
1102 0523 RAYMER-STONEHAM FIRE 2.588 0.000 $49.87
1102 0211 SCHOOL DIST RE11J-NEW RAYMER 0.000 5.779 $123.27
1102 0100 WELD COUNTY 15.956 0.000 $307.47
1102 1200 WEST GREELEY CONSERVATION 0.414 0.000 $7.98
Total - - 28.315 5.779 $668.90


The estimate of tax is based on the prior year mill levy and the 2025 projected assessment rates. Mill levies and tax estimates will be updated yearly on December 22nd for the current year. Additional information can be found at https://assessor.weld.gov










Select Reports to Print: