Account: R4973308
April 1, 2026
| Account | Parcel | Account Type | Tax Year | Buildings | Actual Value | Local Govt Assessed Value | School Assessed Value |
|---|---|---|---|---|---|---|---|
| R4973308 | 120728102130 | Residential | 2026 | 1 | 570,857 | 35,680 | 40,250 |
| Legal |
|---|
| MEA 2LR L130 LIBERTY RANCH FG #2 |
| Subdivision | Block | Lot | Land Economic Area |
|---|---|---|---|
| LIBERTY RANCH FG#2 | 130 | LIBERTY RANCH |
| Property Address | Property City | Section | Township | Range |
|---|---|---|---|---|
| 13575 HORSESHOE CIR | MEAD | 28 | 03 | 68 |
| Account | Parcel | Account Type | Tax Year | Buildings | Actual Value | Local Govt Assessed Value | School Assessed Value |
|---|---|---|---|---|---|---|---|
| R4973308 | 120728102130 | Residential | 2026 | 1 | 570,857 | 35,680 | 40,250 |
| Account | Owner Name | Address |
|---|---|---|
| R4973308 | 13575 HORSESHOE LLC | 9077 FOXFIRE ST FIRESTONE, CO 805043528 |
| Account | Parcel | Account Type | Tax Year | Buildings | Actual Value | Local Govt Assessed Value | School Assessed Value |
|---|---|---|---|---|---|---|---|
| R4973308 | 120728102130 | Residential | 2026 | 1 | 570,857 | 35,680 | 40,250 |
| Reception | Rec Date | Type | Grantor | Grantee | Doc Fee | Sale Date | Sale Price |
|---|---|---|---|---|---|---|---|
| 3506801 | NA | SUB | SUBDIVISION | LIBERTY RANCH FG #2 | 0.00 | NA | 0 |
| 3736715 | 12-06-2010 | WDN | CENTEX HOMES | LR INVESTMENTS LLC | 0.00 | 12-01-2010 | 0 |
| 3861549 | 07-26-2012 | SWD | LR INVESTMENTS LLC | LORSON SOUTH LAND CORP | 100.00 | 07-25-2012 | 1,000,000 |
| 3959585 | 08-28-2013 | SWD | LORSON SOUTH LAND CORP | SAINT AUBYN HOMES LLC | 390.00 | 08-26-2013 | 3,900,000 |
| 4025599 | 06-23-2014 | SWD | SAINT AUBYN HOMES LLC | PAUSTIAN MICHAEL D | 30.60 | 05-21-2014 | 306,000 |
| 4310403 | 06-15-2017 | WD | PAUSTIAN MICHAEL D; PAUSTIAN STEPHANIE L | MOHRMANN RYAN; MOHRMANN RACHEL | 37.77 | 06-12-2017 | 377,700 |
| 4629351 | 09-14-2020 | SWD | MOHRMANN RYAN; MOHRMANN RACHEL | BALDWIN COLIN; BALDWIN BRANDI | 43.25 | 08-31-2020 | 432,500 |
| 4645665 | 10-29-2020 | QCN | BALDWIN COLIN; BALDWIN BRANDI | 13575 HORSESHOE LLC | 0.00 | 10-08-2020 | 0 |
*If the hyperlink for the reception number does not work, try a manual search in the Clerk and Recorder records. Use the Grantor or Grantee in your search.
| Account | Parcel | Account Type | Tax Year | Buildings | Actual Value | Local Govt Assessed Value | School Assessed Value |
|---|---|---|---|---|---|---|---|
| R4973308 | 120728102130 | Residential | 2026 | 1 | 570,857 | 35,680 | 40,250 |
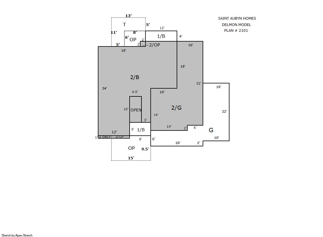
Building 1
| AccountNo | Building ID | Occupancy |
|---|---|---|
| R4973308 | 1 | Single Family Residential |
| ID | Type | NBHD | Occupancy | % Complete | Bedrooms | Baths |
|---|---|---|---|---|---|---|
| 1 | Residential | 3M3058 | Single Family Residential | 100 | 4 | 3.00 |
| ID | Exterior | Roof Cover | Interior | HVAC | Perimeter | Units | Unit Type | Make |
|---|---|---|---|---|---|---|---|---|
| 1 | Frame Hardboard | Composition Shingle | Drywall | Central Air to Air | 0 | 0 | NA | NA |
| ID | Square Ft | Condo SF | Total Basement SF | Finished Basement SF | Garage SF | Carport SF | Balcony SF | Porch SF |
|---|---|---|---|---|---|---|---|---|
| 1 | 2,195 | 0 | 912 | 0 | 840 | 0 | 0 | 95 |
| ID | Built As | Square Ft | Year Built | Stories | Length | Width |
|---|---|---|---|---|---|---|
| 1.00 | 2 Story | 2,195 | 2014 | 2 | 0 | 0 |
| ID | Detail Type | Description | Units |
|---|---|---|---|
| 1 | Add On | Fireplace Gas | 1.00 |
| 1 | Basement | Total Basement SF | 912.00 |
| 1 | Fixture | Full Bath | 2.00 |
| 1 | Fixture | Half Bath | 1.00 |
| 1 | Garage | Attached | 840.00 |
| 1 | Porch | Open Slab | 95.00 |
| 1 | Porch | Slab Roof Ceil | 190.00 |
| 1 | Rough In | Rough In | 1.00 |
| Account | Parcel | Account Type | Tax Year | Buildings | Actual Value | Local Govt Assessed Value | School Assessed Value |
|---|---|---|---|---|---|---|---|
| R4973308 | 120728102130 | Residential | 2026 | 1 | 570,857 | 35,680 | 40,250 |
| Type | Code | Description | Actual Value | Local Govt Assessed Value | School Assessed Value | Acres | Land SqFt |
|---|---|---|---|---|---|---|---|
| Improvement | 1212 | SINGLE FAMILY RESIDENTIAL IMPROVEMENTS | 435,857 | 27,240 | 30,730 | 0.000 | 0 |
| Land | 1112 | SINGLE FAMILY RESIDENTIAL-LAND | 135,000 | 8,440 | 9,520 | 0.161 | 7,020 |
| Totals | - | - | 570,857 | 35,680 | 40,250 | 0.161 | 7,020 |
Comparable sales for your Residential or Commercial property may be found using our SALES SEARCH TOOL
Values are updated annually on May 1st for Real Property and June 15th for Personal Property and Oil and Gas.
| Account | Parcel | Account Type | Tax Year | Buildings | Actual Value | Local Govt Assessed Value | School Assessed Value |
|---|---|---|---|---|---|---|---|
| R4973308 | 120728102130 | Residential | 2026 | 1 | 570,857 | 35,680 | 40,250 |
| Tax Area | District ID | District Name | Local Govt Mill Levy |
School Mill Levy |
Estimated Taxes |
|---|---|---|---|---|---|
| 3481 | 1050 | HIGH PLAINS LIBRARY | 3.044 | 0.000 | $108.61 |
| 3481 | 1387 | LIBERTY RANCH METRO | 72.366 | 0.000 | $2,582.02 |
| 3481 | 1202 | LONGMONT CONSERVATION | 0.000 | 0.000 | $0.00 |
| 3481 | 0312 | LONGS PEAK WATER | 0.000 | 0.000 | $0.00 |
| 3481 | 0420 | MEAD TOWN | 11.522 | 0.000 | $411.10 |
| 3481 | 0512 | MOUNTAIN VIEW FIRE PROTECTION DISTRICT | 16.342 | 0.000 | $583.08 |
| 3481 | 0301 | NORTHERN COLORADO WATER (NCW) | 1.000 | 0.000 | $35.68 |
| 3481 | 0213 | SCHOOL DIST RE1J-LONGMONT | 0.000 | 57.717 | $2,323.11 |
| 3481 | 0303 | ST VRAIN LEFT HAND WATER (SVW) | 1.406 | 0.000 | $50.17 |
| 3481 | 0620 | ST VRAIN SANITATION | 0.316 | 0.000 | $11.27 |
| 3481 | 0100 | WELD COUNTY | 15.956 | 0.000 | $569.31 |
| Total | - | - | 121.952 | 57.717 | $6,674.36 |
The estimate of tax is based on the prior year mill levy and the 2025 projected assessment rates. Mill levies and tax estimates will be updated yearly on December 22nd for the current year. Additional information can be found at https://assessor.weld.gov


