Account: R5074286

April 1, 2026

Account Parcel Account Type Tax Year Buildings Actual Value Local Govt Assessed Value School Assessed Value
R5074286 130518000005 Agricultural 2026 5 550,740 49,050 52,890

Legal
8391-D S2S2SW4 18 2 64 (.50R2.75SHT)

Subdivision Block Lot Land Economic Area
ECON 5 RURAL

Property Address Property City Section Township Range
9006 COUNTY ROAD 49 WELD 18 02 64




Account Parcel Account Type Tax Year Buildings Actual Value Local Govt Assessed Value School Assessed Value
R5074286 130518000005 Agricultural 2026 5 550,740 49,050 52,890

Account Owner Name Address
R5074286 STEWART THOMAS JOHN 9006 COUNTY ROAD 49 HUDSON, CO 806429508
R5074286 STEWART MINDY


Account Parcel Account Type Tax Year Buildings Actual Value Local Govt Assessed Value School Assessed Value
R5074286 130518000005 Agricultural 2026 5 550,740 49,050 52,890

Reception Rec Date Type Grantor Grantee Doc Fee Sale Date Sale Price
02048053 03-28-1986 QCN 0.00 01-01-1900 0
2192334 09-20-1989 WD LA MARCA OLGA GYURMAN JAMES KENNETH & MARIA 2.50 09-12-1989 25,000
2881285 09-06-2001 WD GYURMAN JAMES KENNETH & MARIA ELSIE ALARCON JOSE ALEJANDRO & MIREYA 37.99 09-05-2001 379,900
4325527 08-09-2017 WD ALARCON MIREYA; ALARCON JOSE ALEJANDRO STEWART THOMAS JOHN; STEWART MINDY 54.00 06-09-2017 540,000



Account Parcel Account Type Tax Year Buildings Actual Value Local Govt Assessed Value School Assessed Value
R5074286 130518000005 Agricultural 2026 5 550,740 49,050 52,890

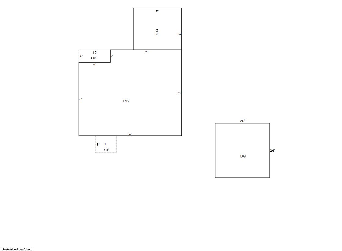
Building 1

AccountNo Building ID Occupancy
R5074286 1 Single Family Residential on Ag


ID Type NBHD Occupancy % Complete Bedrooms Baths
1 Residential 5R0006 Single Family Residential on Ag 100 2 2.00


ID Exterior Roof Cover Interior HVAC Perimeter Units Unit Type Make
1 Frame Masonry Veneer Composition Shingle Drywall Forced Air 180 0 NA NA


ID Square Ft Condo SF Total Basement SF Finished Basement SF Garage SF Carport SF Balcony SF Porch SF
1 1,919 0 1,919 0 676 0 0 90


Built As Details for Building 1
ID Built As Square Ft Year Built Stories Length Width
1.00 Ranch 1 Story 1,919 1990 1 0 0


Additional Details for Building 1
ID Detail Type Description Units
1 Add On Flue Only 1.00
1 Add On Heat Evaporative Coolers 1.00
1 Basement Total Basement SF 1919.00
1 Fixture Full Bath 2.00
1 Garage Attached 460.00
1 Garage Detached 676.00
1 Porch Open Slab 80.00
1 Porch Slab Roof Ceil 90.00
1 Rough In Rough In 2.00



Building 2

AccountNo Building ID Occupancy
R5074286 2 Utility Building


ID Type NBHD Occupancy % Complete Bedrooms Baths
2 Out Building NA Utility Building 100 0 0.00


ID Exterior Roof Cover Interior HVAC Perimeter Units Unit Type Make
2 Concrete Block NA NA None 108 0 NA NA


ID Square Ft Condo SF Total Basement SF Finished Basement SF Garage SF Carport SF Balcony SF Porch SF
2 704 0 0 0 0 0 0 0


Built As Details for Building 2
ID Built As Square Ft Year Built Stories Length Width
2.00 Utility Building 704 1992 1 32 22

No Additional Details for Building 2




Building 3

AccountNo Building ID Occupancy
R5074286 3 Shed - Cattle


ID Type NBHD Occupancy % Complete Bedrooms Baths
3 Out Building NA Shed - Cattle 100 NA 0.00


ID Exterior Roof Cover Interior HVAC Perimeter Units Unit Type Make
3 NA NA NA NA 60 0 NA NA


ID Square Ft Condo SF Total Basement SF Finished Basement SF Garage SF Carport SF Balcony SF Porch SF
3 448 0 0 0 0 0 0 0


Built As Details for Building 3
ID Built As Square Ft Year Built Stories Length Width
3.00 Shed - Cattle 448 1992 1 32 14

No Additional Details for Building 3




Building 4

AccountNo Building ID Occupancy
R5074286 4 Equipment Building


ID Type NBHD Occupancy % Complete Bedrooms Baths
4 Out Building NA Equipment Building 100 NA 0.00


ID Exterior Roof Cover Interior HVAC Perimeter Units Unit Type Make
4 NA NA NA NA 200 0 NA NA


ID Square Ft Condo SF Total Basement SF Finished Basement SF Garage SF Carport SF Balcony SF Porch SF
4 2,400 0 0 0 0 0 0 0


Built As Details for Building 4
ID Built As Square Ft Year Built Stories Length Width
4.00 Equipment Building 2,400 2008 1 60 40

No Additional Details for Building 4




Building 5

AccountNo Building ID Occupancy
R5074286 5 Equipment Building


ID Type NBHD Occupancy % Complete Bedrooms Baths
5 Out Building NA Equipment Building 100 NA 0.00


ID Exterior Roof Cover Interior HVAC Perimeter Units Unit Type Make
5 NA NA NA NA NA 0 NA NA


ID Square Ft Condo SF Total Basement SF Finished Basement SF Garage SF Carport SF Balcony SF Porch SF
5 2,560 0 0 0 0 0 0 0


Built As Details for Building 5
ID Built As Square Ft Year Built Stories Length Width
5.00 Equipment Building 2,560 2019 1 64 40


Additional Details for Building 5
ID Detail Type Description Units
5 Add On OB Open Shelter Lean To Wood 640.00





Account Parcel Account Type Tax Year Buildings Actual Value Local Govt Assessed Value School Assessed Value
R5074286 130518000005 Agricultural 2026 5 550,740 49,050 52,890

Type Code Description Actual Value Local Govt Assessed Value School Assessed Value Acres Land SqFt
Improvement 4277 FARM/RANCH RESIDENCE-IMPS 480,240 30,020 33,860 0.000 0
Improvement 4279 FARM RANCH SUPPORT BLDGS 69,199 18,680 18,680 0.000 0
Land 4147 GRAZING LAND-AGRICULTURAL 1,301 350 350 36.750 1,600,830
Totals - - 550,740 49,050 52,890 36.750 1,600,830


Account Parcel Account Type Tax Year Buildings Actual Value Local Govt Assessed Value School Assessed Value
R5074286 130518000005 Agricultural 2026 5 550,740 49,050 52,890

Tax Area District ID District Name Local Govt
Mill Levy
School
Mill Levy
Estimated
Taxes
2443 0700 AIMS JUNIOR COLLEGE 6.313 0.000 $309.65
2443 0302 CENTRAL COLORADO WATER (CCW) 0.980 0.000 $48.07
2443 0309 CENTRAL COLORADO WATER SUBDISTRICT (CCS) 1.462 0.000 $71.71
2443 1050 HIGH PLAINS LIBRARY 3.044 0.000 $149.31
2443 0509 HUDSON FIRE 12.237 0.000 $600.22
2443 0203 SCHOOL DIST RE3J-KEENESBURG 0.000 15.822 $836.83
2443 1208 SOUTHEAST WELD CONSERVATION 0.000 0.000 $0.00
2443 0100 WELD COUNTY 15.956 0.000 $782.64
Total - - 39.992 15.822 $2,798.43


The estimate of tax is based on the prior year mill levy and the 2025 projected assessment rates. Mill levies and tax estimates will be updated yearly on December 22nd for the current year. Additional information can be found at https://assessor.weld.gov










Select Reports to Print: