Account: R5087486

April 1, 2026

Account Parcel Account Type Tax Year Buildings Actual Value Local Govt Assessed Value School Assessed Value
R5087486 130526200014 Residential 2026 2 455,996 28,500 32,140

Legal
KEE 8692-F PT NW4 26 2 64 BEG NE COR BLK32 WESTVIEW ADD KEENESBURG S89D56'W 158' TO TRUE POB S89D56'W 184' S0D15'E 471' TO PT ON N R/W LN US HWY #6 S89D55'E 184' N0D15'W 471.45' TO TRUE POB

Subdivision Block Lot Land Economic Area
KEENESBURG TOWN 32 NORTH KEENESBURG

Property Address Property City Section Township Range
90 N CEDAR ST KEENESBURG 26 02 64




Account Parcel Account Type Tax Year Buildings Actual Value Local Govt Assessed Value School Assessed Value
R5087486 130526200014 Residential 2026 2 455,996 28,500 32,140

Account Owner Name Address
R5087486 GRUNEWALD AVIS I REVOCABLE TRUST 6125 E INDIAN SCHOOL RD APT 141 SCOTTSDALE, AZ 852515478


Account Parcel Account Type Tax Year Buildings Actual Value Local Govt Assessed Value School Assessed Value
R5087486 130526200014 Residential 2026 2 455,996 28,500 32,140

Reception Rec Date Type Grantor Grantee Doc Fee Sale Date Sale Price
01805528 10-05-1979 WDN 0.00 01-01-1900 0
4033787 07-28-2014 AFFD GEIST JANA K GRUNEWALD HARRIS L 0.00 07-14-2013 0
4033788 07-28-2014 SWDN GRUNEWALD AVIS I GRUNEWALD AVIS I REVOCABLE TRUST 0.00 07-11-2014 0



Account Parcel Account Type Tax Year Buildings Actual Value Local Govt Assessed Value School Assessed Value
R5087486 130526200014 Residential 2026 2 455,996 28,500 32,140

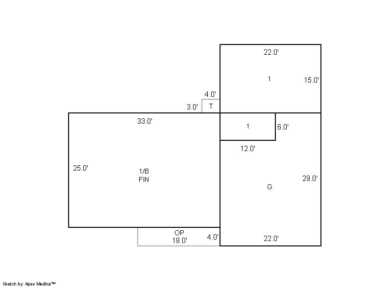
Building 1

AccountNo Building ID Occupancy
R5087486 1 Single Family Residential


ID Type NBHD Occupancy % Complete Bedrooms Baths
1 Residential 5K0007 Single Family Residential 100 2 2.00


ID Exterior Roof Cover Interior HVAC Perimeter Units Unit Type Make
1 Frame Masonry Veneer Composition Shingle Drywall Forced Air 0 0 NA NA


ID Square Ft Condo SF Total Basement SF Finished Basement SF Garage SF Carport SF Balcony SF Porch SF
1 1,155 0 825 825 566 0 0 12


Built As Details for Building 1
ID Built As Square Ft Year Built Stories Length Width
1.00 Ranch 1 Story 1,155 1959 1 0 0


Additional Details for Building 1
ID Detail Type Description Units
1 Add On Fireplace Wood 1.00
1 Basement Finished 825.00
1 Basement Total Basement SF 825.00
1 Fixture Full Bath 2.00
1 Garage Attached 566.00
1 Porch Open Slab 12.00
1 Porch Slab Roof Ceil 72.00



Building 2

AccountNo Building ID Occupancy
R5087486 2 Shed - Utility


ID Type NBHD Occupancy % Complete Bedrooms Baths
2 Out Building NA Shed - Utility 100 0 0.00


ID Exterior Roof Cover Interior HVAC Perimeter Units Unit Type Make
2 NA NA NA None 138 0 NA NA


ID Square Ft Condo SF Total Basement SF Finished Basement SF Garage SF Carport SF Balcony SF Porch SF
2 2,200 0 0 0 0 0 0 0


Built As Details for Building 2
ID Built As Square Ft Year Built Stories Length Width
2.00 Shed - Utility 2,200 1970 0 50 44

No Additional Details for Building 2






Account Parcel Account Type Tax Year Buildings Actual Value Local Govt Assessed Value School Assessed Value
R5087486 130526200014 Residential 2026 2 455,996 28,500 32,140

Type Code Description Actual Value Local Govt Assessed Value School Assessed Value Acres Land SqFt
Improvement 1212 SINGLE FAMILY RESIDENTIAL IMPROVEMENTS 344,438 21,530 24,280 0.000 0
Land 1112 SINGLE FAMILY RESIDENTIAL-LAND 111,558 6,970 7,860 2.000 87,120
Totals - - 455,996 28,500 32,140 2.000 87,120


Account Parcel Account Type Tax Year Buildings Actual Value Local Govt Assessed Value School Assessed Value
R5087486 130526200014 Residential 2026 2 455,996 28,500 32,140

Tax Area District ID District Name Local Govt
Mill Levy
School
Mill Levy
Estimated
Taxes
0303 0700 AIMS JUNIOR COLLEGE 6.313 0.000 $179.92
0303 0302 CENTRAL COLORADO WATER (CCW) 0.980 0.000 $27.93
0303 1050 HIGH PLAINS LIBRARY 3.044 0.000 $86.75
0303 0415 KEENESBURG TOWN 22.000 0.000 $627.00
0303 0308 LOST CREEK GROUNDWATER (LCGW) 0.945 0.000 $26.93
0303 0518 S. E. WELD FIRE 10.470 0.000 $298.40
0303 0203 SCHOOL DIST RE3J-KEENESBURG 0.000 15.822 $508.52
0303 0100 WELD COUNTY 15.956 0.000 $454.75
Total - - 59.708 15.822 $2,210.20


The estimate of tax is based on the prior year mill levy and the 2025 projected assessment rates. Mill levies and tax estimates will be updated yearly on December 22nd for the current year. Additional information can be found at https://assessor.weld.gov










Select Reports to Print: